Prodej rodinného domu, Librantice, 96 m2 (ID: 4116099)

Librantice

7 449 000 Kč /za nemovitost HYPOTÉKA od 33 293 Kč /za měsíc

(v ceně kompletní právní služby, včetně vkladů kupních smluv na katastr, neplatíte provizi za zprostředkování, včetně DPH)

Prémioví partneři v Libranticích

Informace k domu

Společnost CANABA v současné době kompletně dokončuje výstavbu lokality Librantice, ve které Vám nabízíme prodej nízkoenergetických rodinných domů UNO, které se již několik let těší největší oblibě.

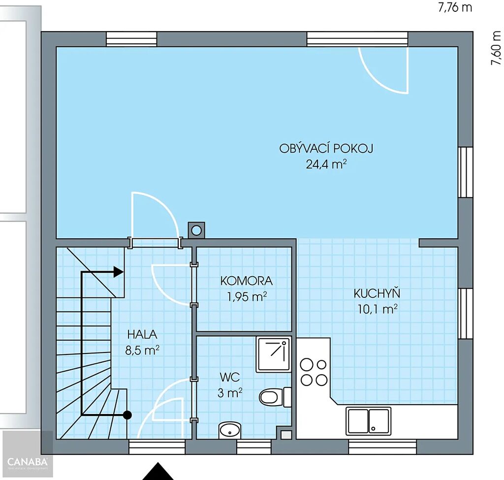
Dispozice domu 4+1 s užitnou plochou téměř 100 m², s velkou zahradou 421 m² poskytují dostatek prostoru pro spokojený život celé rodiny.

V přízemí se nachází vstupní hala, prostorný obývací pokoj s terasovými dveřmi na zahradu a účelně oddělenou kuchyní. Nechybí zde krbový komín, rodinný dům je koncipován tak, aby byl nízkoenergetický a zajistil svým majitelům minimální náklady na vytápění. Kromě toho je v přízemí praktická koupelna se sprchovým koutem a toaletou a komora připravená pro umístění pračky.

V patře je hlavní ložnice, dva samostatné dětské pokoje a další koupelna s vanou a druhou toaletou. Jednotlivé místnosti propojuje galerie, kam je možné umístit šatník.

Dům bude za uvedenou cenu kompletně stavebně dokončen, nyní je připraven k individuálnímu výběru interiéru - obkladů, dlažeb, zařizovacích předmětů, podlahových krytin a interiérových dveří. Nový majitel si dům může dokončit podle svých představ. Samozřejmě je možné si dokončení výše uvedených prací přiobjednat, stavebně pak bude dům dokončen do 2 měsíců od výběru interiéru. V rámci komplexních služeb a pro vaše pohodlí zajistíme zcela zdarma kolaudaci i zápis dokončené stavby do katastru nemovitostí.

Pro práci, studium i zábavu jsou koncové rozvody multimédií ve všech pokojích.

Cena je konečná včetně pozemku, přístupového chodníku, parkovacích míst, inženýrských sítí na pozemku a DPH.

Součástí našich služeb je zajištění nejvýhodnější hypotéky, a to zdarma, a zajištění zvýhodněné ceny kuchyňské linky zn. Oresi včetně spotřebičů.

Strategická poloha Librantic zajišťuje svým obyvatelům klidný život v přírodě bez ruchu města, které je však dostupné jen 10 minut cesty autem. Můžete si tedy dopřát klidu s možností využívat všechny benefity, které velké krajské město Hradec Králové nabízí.

Výborná dopravní dostupnost – přímé autobusové spojení s Hradcem Králové, případně je možné využít cyklostezku až do centra města. Nechybí ani kompletní občanská vybavenost – v obci se nachází základní a mateřská škola, samoobsluha, obecní úřad, zubní ordinace, praktický lékař, knihovna, tenisové a volejbalové kurty, hospůdka "Na Hřišti", vyhlášený golfový areál "Na Vrších" s golfovou školou pro děti i dospělé.

Přijeďte se podívat do Centra vzorových domů, navštivte náš nový vzorový dům UNO a projděte si dům svých snů na vlastní oči. Objednat se můžete na našich webových stránkách Canaba.

Parametry domu

Cena
7 449 000 Kč /za nemovitost Spočítat hypotéku
Poznámka k ceně
v ceně kompletní právní služby, včetně vkladů kupních smluv na katastr, neplatíte provizi za zprostředkování, včetně DPH
Aktualizováno
22. 11. 2025
Adresa
Librantice
ID
01383
Stavba
Cihlová
Stav objektu
Ve výstavbě
Druh objektu
Samostatný
Užitná plocha
96 m2
Plocha pozemku
421 m2
Třída energetické náročnosti
B - Velmi úsporná
Ukazatel energetické náročnosti
78 kWh/m2 za rok

Kontaktovat makléře

Realitní kancelář

CANABA a.s.

Štětkova 1001/5, Praha, Nusle

Chystáte se prodat nemovitost?
Pomůžeme Vám!

Máte zájem o tento dům?

Tímto, v souladu s nařízením Evropského parlamentu a Rady (EU) 2016/679, v platném znění, prohlašuji, že mi je alespoň 16 let a uděluji tak svůj souhlas se zpracováním zadaných údajů (jméno, telefon, e-mail, ip adresa) společnosti B3 Technology, s.r.o., IČ: 07330600, se sídlem Novostavby 126/23, 435 11 Lom (správce dat), za účelem předání dotazu z tohoto formuláře Vámi vybranému inzerentovi a zpětného kontaktování mé osoby. Osobní údaje bude správce zpracovávat manuálně i automaticky přímo prostřednictvím svých zaměstnanců. Informace předané tímto formulářem budou uloženy v databázi správce maximálně po dobu 10 let. Odvolání souhlasu s uložením a zpracováním poskytnutých dat lze e-mailem na info@videobydleni.cz. V případě podezření na neoprávněné použití Vámi poskytnutých údajů máte právo předat podnět k šetření Úřadu pro ochranu osobních údajů. Více informací
Chystáte se prodat nemovitost?
Pomůžeme Vám!

Inzerát si prohlédlo 1 lidí

Prodejce

Ing. Adriana Čarnecká

Ing. Adriana Čarnecká

Hlídací pes

Chcete dostávat emailem podobné nabídky prodeje rodinných domů v Libranticích?

Podobné nemovitosti


Nevyhovuje Vám typ domu? Podívejte se na jiné kategorie domů.


Vybrané články z našeho blogu