Pronájem bytu 2+kk, Liberec, Česká, 40 m2

Česká, Liberec XXV-Vesec

15 900 Kč /za měsíc Získejte výhodnou HYPOTÉKU

(+ zálohy na služby 4000 kč + elektřina, vratná kauce 20000 kč, provize 15900 kč + DPH)

Prémioví partneři v Liberci

Rekonstrukce

Úklidové služby

Informace k bytu

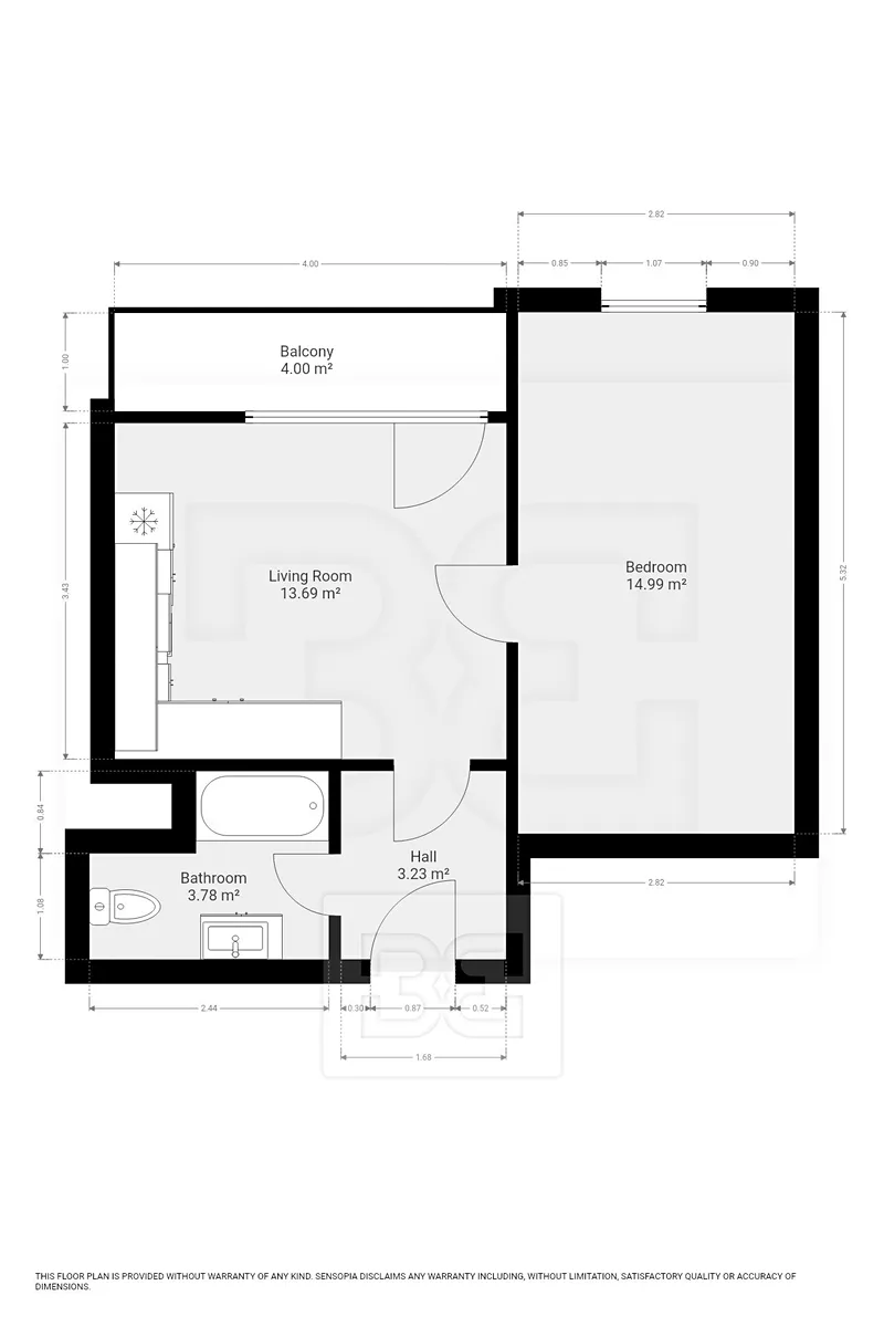
Nabízíme k pronájmu krásný a kompletně zrekonstruovaný byt 2+kk o výměře 40 m², který se nachází v klidné části Liberce, v ulici Česká.
Byt prošel nedávnou detailní rekonstrukcí, díky čemuž působí velmi moderním a čistým dojmem.

Součástí bytu je nová kuchyňská linka vybavená všemi potřebnými spotřebiči – myčkou, pračkou, lednicí, troubou i varnou deskou. Byt se jinak pronajímá nevybavený. V předsíni se nachází praktická vestavěná šatní skříň.

Velkou výhodou je balkon s příjemným a nerušeným výhledem do okolí.
Dům je zateplený, velmi dobře udržovaný a nabízí klidné bydlení v žádané lokalitě.

Lokalita nabízí veškerou občanskou vybavenost – obchody, restaurace, služby, poštu i lékárnu. V docházkové vzdálenosti se nachází autobusová zastávka. V blízkém okolí je rovněž široká nabídka volnočasových aktivit.



Měsíční nájem - 15900 Kč, záloha za služby spojené s užíváním bytu 4000 Kč + elektřina, kauce 20000 kč, provize 15900 kč + dph.



Velkou výhodou pro potenciální nájemce je, že byt je v profesionální správě společnosti Bohemian Estates, jenž správu pro majitele tohoto bytu vykonává. Nájemci je k dispozici kontaktní osoba, která obratem řeší veškeré záležitosti s nájmem spojené (pravidelná údržba i havarijní zásahy vlastními techniky, vyúčtování, dodatky, apod.). Nájemci je tak zajištěno bezproblémové užívání bytu s kompletním servisem.

Parametry bytu

Cena
15 900 Kč /za měsíc
Poznámka k ceně
+ zálohy na služby 4000 kč + elektřina, vratná kauce 20000 kč, provize 15900 kč + DPH
Aktualizováno
23. 11. 2025
Adresa
Česká, Liberec XXV-Vesec
ID
N08571
Stavba
Panelová
Stav objektu
Velmi dobrý
Patro
3.
Vybaveno
Ne
Lokalita objektu
Klidná část obce
Vlastnictví
Osobní
Užitná plocha
40 m2
Třída energetické náročnosti
C - Úsporná
Ukazatel energetické náročnosti
120 kWh/m2 za rok
Elektřina
230V
Komunikace
Asfaltová
Doprava
Vlak, Dálnice, Silnice, MHD, Autobus
Voda
Vodovod
Topné těleso
Radiátory
Zdroj topení
Ústřední dálkové
Zdroj teplé vody
Centrální dálkový ohřev
Balkon
Výtah

Kontaktovat makléře

Máte zájem o tento byt?

Tímto, v souladu s nařízením Evropského parlamentu a Rady (EU) 2016/679, v platném znění, prohlašuji, že mi je alespoň 16 let a uděluji tak svůj souhlas se zpracováním zadaných údajů (jméno, telefon, e-mail, ip adresa) společnosti B3 Technology, s.r.o., IČ: 07330600, se sídlem Novostavby 126/23, 435 11 Lom (správce dat), za účelem předání dotazu z tohoto formuláře Vámi vybranému inzerentovi a zpětného kontaktování mé osoby. Osobní údaje bude správce zpracovávat manuálně i automaticky přímo prostřednictvím svých zaměstnanců. Informace předané tímto formulářem budou uloženy v databázi správce maximálně po dobu 10 let. Odvolání souhlasu s uložením a zpracováním poskytnutých dat lze e-mailem na info@videobydleni.cz. V případě podezření na neoprávněné použití Vámi poskytnutých údajů máte právo předat podnět k šetření Úřadu pro ochranu osobních údajů. Více informací
Chystáte se prodat nemovitost?
Pomůžeme Vám!

Inzerát si prohlédlo 0 lidí

Prodejce

Lukáš Kubát

Lukáš Kubát

Hlídací pes

Chcete dostávat emailem podobné nabídky pronájmu bytů 2+kk v Liberci?

Podobné nemovitosti


Nevyhovuje Vám typ bytu? Podívejte se na jiné kategorie bytů.


Vybrané články z našeho blogu