Prodej bytu 4+1, Praha, 195 m2 (ID: 4117258)

Praha 1

Cena na vyžádání /za nemovitost Získejte výhodnou HYPOTÉKU
Prémioví partneři v Praze 1

Stěhovací služby

Výkup a prodej starého nábytku

Pojištění a finance

Informace k bytu

Zcela unikátní penthouse se nachází v rezidenci, která nedávno prošla citlivou rekonstrukcí. V jednání o rezervaci.
Noblesní, secesní dům, ve kterém se byt nachází, je zasazen v jedné z nejlukrativnějších částí Prahy 1. Klenotem projektu je zrenovovaná zahrada ve vnitrobloku, která je k dispozici všem svým rezidentům.

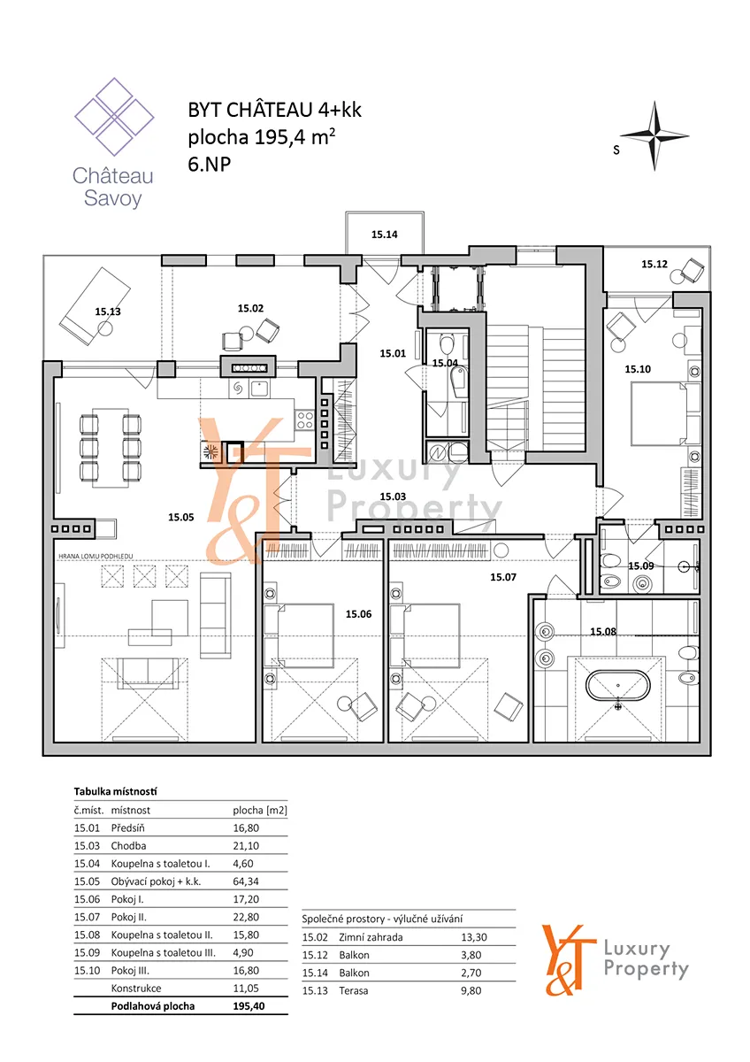
Krásný, světlý byt s výškou stropu 3,88m je situován v posledním nadzemním podlaží této unikátní rezidence. Přístupný je přes schodiště nebo výtahem, který vás zaveze přímo do bytu. Dispozičně je řešen jako 4+1 s orientací na západní a východní stranu. Prostorný obývací pokoj, který Vás ohromí svojí velikostí a výhledem na Pražský hrad je spojený s kuchyní značky Poliform s vestavěnými spotřebiči značky Miele a nabízí vstup na velkorysou terasu se zimní zahradou a výhledem do upraveného vnitrobloku. Master ložnice má úctyhodných 22 m2 s en-suite koupelnou, kde najdete vanu i sprchový kout. Druhá ložnice s východní orientací má vlastní balkón s orientací do vnitrobloku a en-suite koupelnu. Třetí ložnici lze využít např. pro hosty nebo jako pracovnu. K tomuto pokoji lze využít koupelnu s toaletou, která je přístupná ze vstupní haly, která také poskytuje dostatek úložného prostoru, vstup na balkón a terasu. Při rekonstrukci byly použity materiály nejvyšší kvality jako například dřevěná dubová podlaha, sanita značky Alessi či baterie od firmy Grohe. V koupelnách jsou použity velkoformátové italské obklady. Skvostný design podtrhuje LED osvětlení, chodbu i plynový krb v obývacím pokoji, který je z luxusního mramoru (Golden spider). Pro zajištění maximálního komfortu je samozřejmostí klimatizace značky LG, audio systém zabudovaný ve stropě a alarm. K bytu je na prodej i nebytový prostor o velikosti 11m2 s velkým oknem do zahrady v přízemí domu .K bytu lze dokoupit 3 parkovací stání v podzemních garážích domu přístupné přímo do chodby domu.

Penthouse se nachází v bezpečné vzdálenosti od řeky Vltavy a z terasy či balkónů není slyšet žádný hluk od dopravy. Prestižní adresa umožňuje majitelům penthousu žít v centru města a přitom mimo veškerý turistický ruch. V nejbližším okolí se najdou vyhlášené restaurace a také stylová kavárna Savoy. V těsné blízkostí domu nevedou žádné turistické trasy.

Více fotografií naleznete na našich webových stránkách

Energetická třída G je uvedena dočasně, vzhledem k novele zákona č. 406/2000 Sb. O hospodaření s energií. Po dodání energetického štítku bude uvedena skutečná energetická třída této nemovitosti.

Parametry bytu

Cena
Cena na vyžádání Spočítat hypotéku
Aktualizováno
5. 5. 2026
Adresa
Praha 1
ID
Y&T-5WAR
Stavba
Smíšená
Stav objektu
Velmi dobrý
Patro
6. z 6
Vlastnictví
Osobní
Užitná plocha
195 m2
Podlahová plocha
226 m2
Balkon
Garáž
Sklep
Terasa
Výtah

Kontaktovat makléře

Máte zájem o tento byt?

Tímto, v souladu s nařízením Evropského parlamentu a Rady (EU) 2016/679, v platném znění, prohlašuji, že mi je alespoň 16 let a uděluji tak svůj souhlas se zpracováním zadaných údajů (jméno, telefon, e-mail, ip adresa) společnosti B3 Technology, s.r.o., IČ: 07330600, se sídlem Novostavby 126/23, 435 11 Lom (správce dat), za účelem předání dotazu z tohoto formuláře Vámi vybranému inzerentovi a zpětného kontaktování mé osoby. Osobní údaje bude správce zpracovávat manuálně i automaticky přímo prostřednictvím svých zaměstnanců. Informace předané tímto formulářem budou uloženy v databázi správce maximálně po dobu 10 let. Odvolání souhlasu s uložením a zpracováním poskytnutých dat lze e-mailem na info@videobydleni.cz. V případě podezření na neoprávněné použití Vámi poskytnutých údajů máte právo předat podnět k šetření Úřadu pro ochranu osobních údajů. Více informací
Chystáte se prodat nemovitost?
Pomůžeme Vám!
Theleadway banner

Inzerát si prohlédlo 89 lidí

Prodejce

Adéla Zábojníková

Adéla Zábojníková

Hlídací pes

Chcete dostávat emailem podobné nabídky prodeje bytů 4+1 v Praze 1?

Podobné nemovitosti


Nevyhovuje Vám typ bytu? Podívejte se na jiné kategorie bytů.


Vybrané články z našeho blogu