Pronájem bytu 2+1, Pardubice - Zelené Předměstí, Benešovo náměstí, 58 m2

Benešovo náměstí, Zelené Předměstí

8 500 Kč /za měsíc Získejte výhodnou HYPOTÉKU

(+ 4.000 Kč zálohy na energie a služby)

Prémioví partneři v Pardubicích

Informace k bytu

Dobrý den, hledáte krátkodobé ubytování v Pardubicích a potřebujete vyřešit ubytování i za cenu kratšího termínu pronájmu? Možná právě Vás by mohla zaujmout naše nabídka.

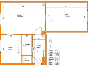
Jedná se o pronájem bytu 2+1, který se nachází ve zvýšeném přízemí zděného bytové domu v Pardubicích v ulici Benešovo náměstí, na sídlišti zvaném Višňovka. Byt se pronajímá jako kompletně zařízený (jak je uvedeno na fotografiích) včetně nábytku, spotřebičů, nádobí apod. Jedná se totiž o neobvyklou nabídku pronájmu, a to pouze v termínu od 9.1.2026 do 31.5.2026. Důvodem pronájmu v tomto termínu je zahraniční cesta majitelů, kteří chtějí pomoci vyřešit bydlení lidem, kterým budou důvěřovat, že se o jejich byt postarají včetně potřebného nakrmení dvou terarijních hadů. Na oplátku je zvýhodněna výše nájmu, a to pouhých 8.500 Kč + 4.000 Kč záloha na energie. Peněžitá jistota (vratná kauce) činní 25.000 Kč. Provize realitní kanceláře je také snížena na 5.000 Kč.

Jak bylo psáno výše, jedná se o pronájem nájemci, ve kterého bude vložena důvěra, protože bude užívat plně vybavenou domácnost majitelů včetně nakrmení dvou terarijních hadů (krmení je bezpečné a proběhne zaškolení). Hledáme tedy ideálně studentský pár, který nemá vyřešené bydlení a pomůže mu nabídnutý termín. Nemáme zájem o nájemce s dalším domácím zvířetem. Pronájem také není úplně vhodný jako spolubydlení nebo bydlení s dětmi.

Děkuji za pozornost. Václav Růžička, realitní specialista.

Pronajímatel si vyhrazuje právo na výběr nájemce dle vlastních kritérií.

Parametry bytu

Cena
8 500 Kč /za měsíc
Poznámka k ceně
+ 4.000 Kč zálohy na energie a služby
Aktualizováno
24. 11. 2025
Adresa
Benešovo náměstí, Zelené Předměstí
ID
XA-439
Stavba
Cihlová
Stav objektu
Dobrý
Patro
1. z 4
Vybaveno
Ano
Typ objektu
Patrový
Vlastnictví
Osobní
Užitná plocha
58 m2
Podlahová plocha
54 m2
Plyn
Plynovod
Odpad
Veřejná kanalizace
Topení
Ústřední dálkové
Komunikace
Asfaltová
Telekomunikace
Internet
Voda
Vodovod
Bezbarierový přístup

Kontaktovat makléře

Realitní kancelář

RV Reality

Bratranců Veverkových 355, Pardubice, Zelené Předměstí

Chystáte se prodat nemovitost?
Pomůžeme Vám!

Máte zájem o tento byt?

Tímto, v souladu s nařízením Evropského parlamentu a Rady (EU) 2016/679, v platném znění, prohlašuji, že mi je alespoň 16 let a uděluji tak svůj souhlas se zpracováním zadaných údajů (jméno, telefon, e-mail, ip adresa) společnosti B3 Technology, s.r.o., IČ: 07330600, se sídlem Novostavby 126/23, 435 11 Lom (správce dat), za účelem předání dotazu z tohoto formuláře Vámi vybranému inzerentovi a zpětného kontaktování mé osoby. Osobní údaje bude správce zpracovávat manuálně i automaticky přímo prostřednictvím svých zaměstnanců. Informace předané tímto formulářem budou uloženy v databázi správce maximálně po dobu 10 let. Odvolání souhlasu s uložením a zpracováním poskytnutých dat lze e-mailem na info@videobydleni.cz. V případě podezření na neoprávněné použití Vámi poskytnutých údajů máte právo předat podnět k šetření Úřadu pro ochranu osobních údajů. Více informací
Chystáte se prodat nemovitost?
Pomůžeme Vám!

Inzerát si prohlédlo 1 lidí

Prodejce

Václav Růžička

Václav Růžička

Hlídací pes

Chcete dostávat emailem podobné nabídky pronájmu bytů 2+1 v Pardubicích?

Podobné nemovitosti


Nevyhovuje Vám typ bytu? Podívejte se na jiné kategorie bytů.


Vybrané články z našeho blogu