Pronájem bytu 3+kk, Turnov, Fučíkova, 60 m2

Fučíkova, Turnov

16 000 Kč /za měsíc Získejte výhodnou HYPOTÉKU
Prémioví partneři v Turnově

Rekonstrukce

Úklidové služby

Informace k bytu

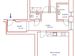
Nabízíme k pronájmu jednotku č. 1 (3kk) v 1.NP zděného domu v Turnově. Dům, v němž se jednotka nachází, prošel v roce 2025 rozsáhlou rekonstrukcí a je ve velmi dobrém stavebně-technickém stavu. Jednotka je včetně příslušenství a je velmi pěkně a moderně řešena. K jednotce náleží jedno parkovací stání na pozemku u domu. V místě je kompletní občanská vybavenost. Skládá se tříměsíční vratná kauce a v jednotce se nesmí kouřit. K měsíčnímu nájmu se platí zálohy na energie ve výši 5.000 Kč/měsíc.

Parametry bytu

Cena
16 000 Kč /za měsíc
Aktualizováno
24. 11. 2025
Adresa
Fučíkova, Turnov
ID
N6760
Stavba
Cihlová
Stav objektu
Po rekonstrukci
Patro
1. z 3
Vybaveno
Částečně
Lokalita objektu
Klidná část obce
Vlastnictví
Osobní
Užitná plocha
60 m2
Podlahová plocha
68 m2
Třída energetické náročnosti
G - Mimořádně nehospodárná
Elektřina
230V, 400V
Plyn
Plynovod
Topení
Ústřední plynové
Doprava
Vlak, Dálnice, Silnice, MHD, Autobus
Voda
Vodovod
Sklep
Výtah
Parkování

Kontaktovat makléře

Máte zájem o tento byt?

Tímto, v souladu s nařízením Evropského parlamentu a Rady (EU) 2016/679, v platném znění, prohlašuji, že mi je alespoň 16 let a uděluji tak svůj souhlas se zpracováním zadaných údajů (jméno, telefon, e-mail, ip adresa) společnosti B3 Technology, s.r.o., IČ: 07330600, se sídlem Novostavby 126/23, 435 11 Lom (správce dat), za účelem předání dotazu z tohoto formuláře Vámi vybranému inzerentovi a zpětného kontaktování mé osoby. Osobní údaje bude správce zpracovávat manuálně i automaticky přímo prostřednictvím svých zaměstnanců. Informace předané tímto formulářem budou uloženy v databázi správce maximálně po dobu 10 let. Odvolání souhlasu s uložením a zpracováním poskytnutých dat lze e-mailem na info@videobydleni.cz. V případě podezření na neoprávněné použití Vámi poskytnutých údajů máte právo předat podnět k šetření Úřadu pro ochranu osobních údajů. Více informací
Chystáte se prodat nemovitost?
Pomůžeme Vám!

Inzerát si prohlédlo 0 lidí

Prodejce

Norbert  Polách

Norbert Polách

Hlídací pes

Chcete dostávat emailem podobné nabídky pronájmu bytů 3+kk v Turnově?

Podobné nemovitosti


Nevyhovuje Vám typ bytu? Podívejte se na jiné kategorie bytů.


Vybrané články z našeho blogu