Pronájem rodinného domu, Opatovice, Sportovní, 76 m2

Sportovní, Opatovice

14 500 Kč /za měsíc Získejte výhodnou HYPOTÉKU
Prémioví partneři v Opatovicích

Informace k domu

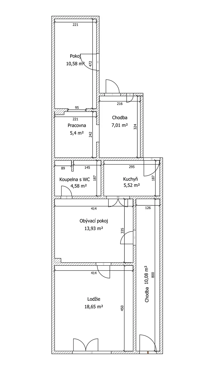
Nabízíme k pronájmu částečně zařízený rodinný dům s dispozicí 4+1 v Opatovicích. Celková plocha činí 157 m² a součástí je malý uzavřený dvorek.

Dispozice:
Chodba, obývací pokoj, ze kterého je vstup do koupelny se sprchovým koutem a toaletou, a dále do ložnice. Z chodby je vstup do kuchyně, do pracovny a do dalšího pokoje. Z chodby je také vstup na uzavřený dvorek, který poskytuje absolutní soukromí, a k dispozici je rovněž komora.
Dům se pronajímá částečně zařízený.

Obec Opatovice se nachází 14 km jižně od Brna a má dobrou občanskou vybavenost. Nachází se zde mateřská škola, základní škola, restaurace, obchod, kozí farma a další. Dopravní dostupnost do Brna je zajištěna IDS, dojezd autem je přibližně 15 minut.

Parametry domu

Cena
14 500 Kč /za měsíc
Aktualizováno
24. 11. 2025
Adresa
Sportovní, Opatovice
ID
00050
Stavba
Cihlová
Stav objektu
Dobrý
Druh objektu
Řadový
Lokalita objektu
Klidná část obce
Užitná plocha
76 m2
Plocha pozemku
157 m2
Třída energetické náročnosti
G - Mimořádně nehospodárná
Elektřina
230V
Plyn
Plynovod
Odpad
Veřejná kanalizace
Topení
Ústřední plynové
Voda
Studna
Zdroj topení
Plynový kotel
Zdroj teplé vody
Bojler - elektro
Výtah
Bezbarierový přístup

Kontaktovat makléře

Realitní kancelář

VIOLET REAL

U Leskavy 788/31, Brno, Starý Lískovec

Chystáte se prodat nemovitost?
Pomůžeme Vám!

Máte zájem o tento dům?

Tímto, v souladu s nařízením Evropského parlamentu a Rady (EU) 2016/679, v platném znění, prohlašuji, že mi je alespoň 16 let a uděluji tak svůj souhlas se zpracováním zadaných údajů (jméno, telefon, e-mail, ip adresa) společnosti B3 Technology, s.r.o., IČ: 07330600, se sídlem Novostavby 126/23, 435 11 Lom (správce dat), za účelem předání dotazu z tohoto formuláře Vámi vybranému inzerentovi a zpětného kontaktování mé osoby. Osobní údaje bude správce zpracovávat manuálně i automaticky přímo prostřednictvím svých zaměstnanců. Informace předané tímto formulářem budou uloženy v databázi správce maximálně po dobu 10 let. Odvolání souhlasu s uložením a zpracováním poskytnutých dat lze e-mailem na info@videobydleni.cz. V případě podezření na neoprávněné použití Vámi poskytnutých údajů máte právo předat podnět k šetření Úřadu pro ochranu osobních údajů. Více informací
Chystáte se prodat nemovitost?
Pomůžeme Vám!

Inzerát si prohlédlo 0 lidí

Prodejce

Zlatka Bedřichová

Zlatka Bedřichová

Hlídací pes

Chcete dostávat emailem podobné nabídky pronájmu rodinných domů v Opatovicích (okr. Brno-venkov)?

Podobné nemovitosti


Nevyhovuje Vám typ domu? Podívejte se na jiné kategorie domů.


Vybrané články z našeho blogu