Prodej rodinného domu, Vrbová Lhota, Na Kovárně, 113 m2

Na Kovárně, Vrbová Lhota

6 990 000 Kč /za nemovitost HYPOTÉKA od 31 241 Kč /za měsíc
Prémioví partneři v Vrbové Lhotě

Informace k domu

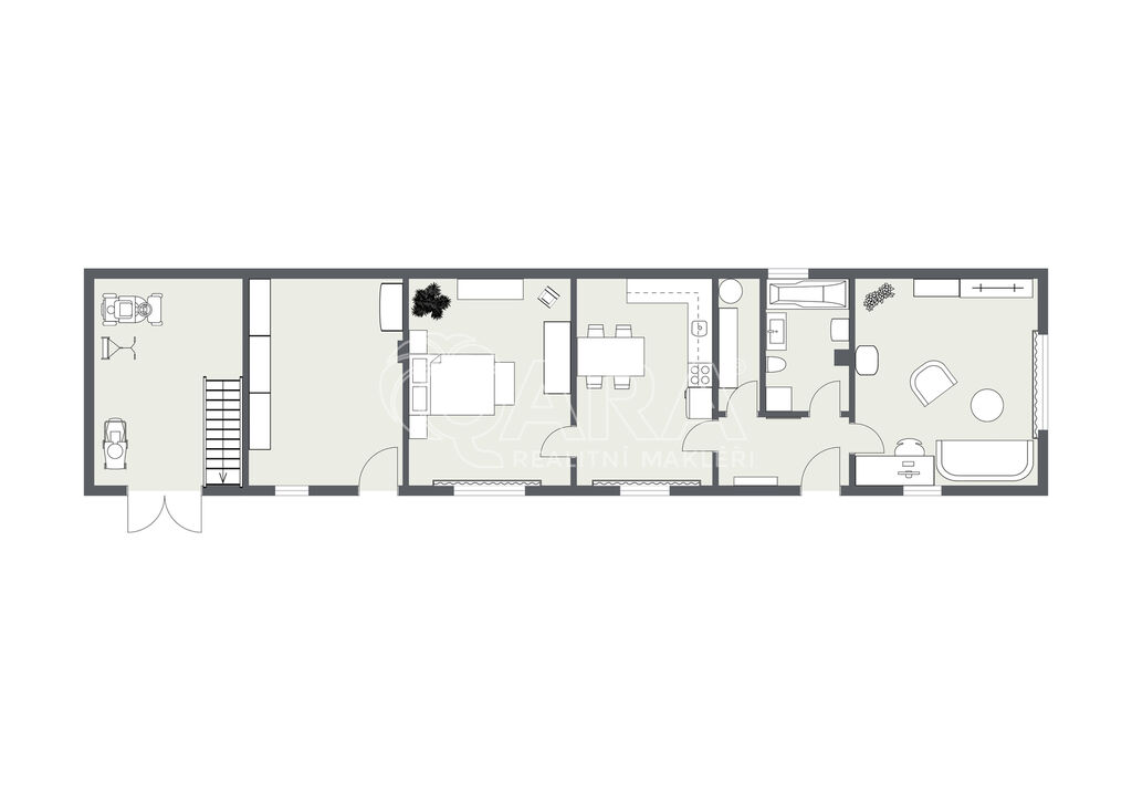
Prodej rodinného domu 3+kk s velkorysou zahradou, garáží, dílnou a velkým potenciálem pro další rozšíření v malebné obci Vrbová Lhota v okrese Nymburk. Podlahová plocha domu činí 113 m2, pozemek o výměře 1345 m2.

Vrbová Lhota je obec nedaleko Poděbrad s veškerou občanskou vybaveností v blízkosti. Velkou výhodou je skvělá dostupnost po dálnici D11 – z Prahy jste tu do 30 minut. Pokud hledáte dům v klidném prostředí a zároveň s rychlým spojením do města, tato nabídka je pro vás ideální.

Dispozice - dům má dvě podlaží
V přízemí se nachází obytná část - obývací pokoj se severovýchodní orientací, s kamny a výhledem do zeleně, prostorná kuchyň, ložnice, komora/technická místnost, koupelna s vanou a toaletou a vstupní chodba. V přízemí je dále technická místnost s kotlem, která je přístupná samostatným vchodem ze zahrady. Na tomto podlaží se nachází také dřevník, který je přístavbou domu.
V patře je velkorysá půda nabízející skrytý potenciál pro rozšíření domu o další 2-3 místnosti.

Doplňkové stavby
K dispozici je samostatná garáž s vjezdem z ulice a s průchodem do zahrady. V garáži je v podlaze montážní jáma, což ocení domácí kutilové. Ke garáži náleží dílna také se vstupem ze zahrady.
Na zahradě je dvoupodlažní hospodářská budova, ve které se nachází sklep, chlév, kurník a úložné prostory.

Zahrada a zázemí
Zahrada je rozdělená do dvou částí. Přední část u domu je osázena okrasnými rostlinami, slouží zejména pro relax a potěchu oka. V této části zahrady se nachází garáž, hospodářská budova a studna. Druhá část zahrady nabízí dostatek prostoru pro zahradničení i volnočasové aktivity, zákoutí s posezením a několik vzrostlých stromů.

Technické řešení
Dům je vytápěný elektrokotlem, v obývacím pokoji jsou kamna na dřevo (typu Petry) a v ložnici je příprava na krbová kamna. Ohřev vody je zajištěn bojlerem. Zdroj vody je z vlastní studny, která je na pozemku. Hloubka study cca 6 m. Na pozemek je nově přivedena také přípojka k vodovodnímu řadu. Dům je napojený na kanalizaci.
V posledních letech dům prošel rekonstrukcí – nová střecha, nová elektroinstalace a elektrokotel. Výměna oken a dveří, plovoucí podlahy, proběhla také rekonstrukce koupelny.

Lokalita:
Vrbová Lhota je klidná obec se skvělým napojením na dálnici D11 v blízkosti města Poděbrady či Nymburk, kde je veškerá občanská vybavenost. Ve Vrbové Lhotě je autobus, který vás za pár minut dopraví právě do Poděbrad nebo do sousední obce Pečky, kde je retail park se supermarketem a dalšími obchody. Okolí je zároveň ideální pro procházky a odpočinek v přírodě – Naučná stezka Pňovský luh, Poděbradské jezero, Hradiště Libice na Cidlinou.

Budu se těšit na setkání na prohlídce.

Parametry domu

Cena
6 990 000 Kč /za nemovitost Spočítat hypotéku
Aktualizováno
24. 11. 2025
Adresa
Na Kovárně, Vrbová Lhota
ID
VFR0122
Stavba
Cihlová
Stav objektu
Velmi dobrý
Typ objektu
Patrový
Druh objektu
Samostatný
Užitná plocha
113 m2
Zastavěná plocha
149 m2
Plocha pozemku
1345 m2
Třída energetické náročnosti
G - Mimořádně nehospodárná
Odpad
Veřejná kanalizace
Komunikace
Asfaltová
Voda
Studna
Převod do OV

Kontaktovat makléře

Realitní kancelář

Logo QARA, s.r.o.

QARA, s.r.o.

Šafaříkova 201/17, Praha

Chystáte se prodat nemovitost?
Pomůžeme Vám!

Máte zájem o tento dům?

Tímto, v souladu s nařízením Evropského parlamentu a Rady (EU) 2016/679, v platném znění, prohlašuji, že mi je alespoň 16 let a uděluji tak svůj souhlas se zpracováním zadaných údajů (jméno, telefon, e-mail, ip adresa) společnosti B3 Technology, s.r.o., IČ: 07330600, se sídlem Novostavby 126/23, 435 11 Lom (správce dat), za účelem předání dotazu z tohoto formuláře Vámi vybranému inzerentovi a zpětného kontaktování mé osoby. Osobní údaje bude správce zpracovávat manuálně i automaticky přímo prostřednictvím svých zaměstnanců. Informace předané tímto formulářem budou uloženy v databázi správce maximálně po dobu 10 let. Odvolání souhlasu s uložením a zpracováním poskytnutých dat lze e-mailem na info@videobydleni.cz. V případě podezření na neoprávněné použití Vámi poskytnutých údajů máte právo předat podnět k šetření Úřadu pro ochranu osobních údajů. Více informací
Chystáte se prodat nemovitost?
Pomůžeme Vám!

Inzerát si prohlédlo 1 lidí

Prodejce

Veronika Fialová

Veronika Fialová

Hlídací pes

Chcete dostávat emailem podobné nabídky prodeje rodinných domů v Vrbové Lhotě?

Podobné nemovitosti


Nevyhovuje Vám typ domu? Podívejte se na jiné kategorie domů.


Vybrané články z našeho blogu