Prodej rodinného domu, Částkov, 278 m2

Částkov

4 500 000 Kč /za nemovitost HYPOTÉKA od 20 112 Kč /za měsíc
Prémioví partneři v Částkově

Informace k domu

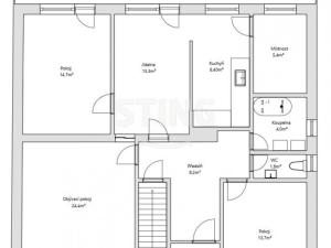
Nabízíme k prodeji prostorný rodinný dům v obci Částkov, který poskytne budoucím majitelům mnoho možností pro vlastní dispoziční i designové řešení. Celková výměra pozemku činí 600 m2, zastavěná plocha domu je 131 m2.

Dům, řešený jako polovina dvojdomku, byl stavěn a dokončen v období kolem roku 1990, je kompletně podsklepen a nabízí opravdu velkorysé zázemí (užitná plocha domu je 278 m2, obytná plocha je 111 m2).


V suterénu se nachází garáž, prádelna, technické místnosti a přímý vstup na zahradu.

V přízemí je situováno zádveří, chodba, bytová jednotka 4+1 doplněná o hobby místnost, koupelna s vanou a samostatné WC.

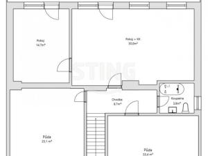
Podkroví tvoří obývací pokoj s kuchyňským koutem, ložnice a další prostory připravené k vybudování sociálního zázemí a dalších místností dle potřeb nových vlastníků.

Parkování je možné v garáži a dále na vlastním pozemku ve vjezdu vedle domu.

Inženýrské sítě: elektřina, voda ze studny, možnost napojení na veřejný vodovod i plyn. Vytápění zajišťuje elektrický kotel.

Dům byl průběžně udržován a částečně modernizován — v přízemí a suterénu byla vyměněna část původních oken a dveří, provedena rekonstrukce koupelny a WC. Jinak je nemovitost určena ke kompletní rekonstrukci, která umožní přizpůsobit dům současným požadavkům na kvalitní bydlení.

Zahrada poskytuje dostatek prostoru pro zahradničení, odpočinek i rodinné aktivity.

Částkov se nachází pouhých 12 km od Uherského Hradiště, 18 km od Zlína a nabízí klidné bydlení v obci s aktivním kulturním a společenským životem.

Pro více informací či sjednání prohlídky nás neváhejte kontaktovat. Doporučujeme osobní návštěvu. Do konce listopadu 2025 nabízíme prostřednictvím našeho partnera úrokové sazby od 4,29 % p.a. Více informací Vám sdělí náš specialista na prohlídce.

Parametry domu

Cena
4 500 000 Kč /za nemovitost Spočítat hypotéku
Aktualizováno
25. 11. 2025
Adresa
Částkov
ID
133880
Stavba
Cihlová
Stav objektu
Dobrý
Typ objektu
Patrový
Druh objektu
Samostatný
Lokalita objektu
Klidná část obce
Užitná plocha
278 m2
Zastavěná plocha
131 m2
Podlahová plocha
111 m2
Plocha pozemku
600 m2
Třída energetické náročnosti
G - Mimořádně nehospodárná
Elektřina
230V, 400V
Odpad
Jímka
Topení
Ústřední elektrické
Komunikace
Asfaltová
Doprava
Silnice, Autobus
Voda
Studna
Balkon
Garáž

Kontaktovat makléře

Máte zájem o tento dům?

Tímto, v souladu s nařízením Evropského parlamentu a Rady (EU) 2016/679, v platném znění, prohlašuji, že mi je alespoň 16 let a uděluji tak svůj souhlas se zpracováním zadaných údajů (jméno, telefon, e-mail, ip adresa) společnosti B3 Technology, s.r.o., IČ: 07330600, se sídlem Novostavby 126/23, 435 11 Lom (správce dat), za účelem předání dotazu z tohoto formuláře Vámi vybranému inzerentovi a zpětného kontaktování mé osoby. Osobní údaje bude správce zpracovávat manuálně i automaticky přímo prostřednictvím svých zaměstnanců. Informace předané tímto formulářem budou uloženy v databázi správce maximálně po dobu 10 let. Odvolání souhlasu s uložením a zpracováním poskytnutých dat lze e-mailem na info@videobydleni.cz. V případě podezření na neoprávněné použití Vámi poskytnutých údajů máte právo předat podnět k šetření Úřadu pro ochranu osobních údajů. Více informací
Chystáte se prodat nemovitost?
Pomůžeme Vám!

Inzerát si prohlédlo 3 lidí

Prodejce

Petra Vlachynská

Petra Vlachynská

Hlídací pes

Chcete dostávat emailem podobné nabídky prodeje rodinných domů v Částkově (okr. Uherské Hradiště)?

Podobné nemovitosti


Nevyhovuje Vám typ domu? Podívejte se na jiné kategorie domů.


Vybrané články z našeho blogu