Prodej rodinného domu, Kolová, 90 m2 (ID: 4118856)

Kolová

8 990 000 Kč /za nemovitost HYPOTÉKA od 40 180 Kč /za měsíc
Prémioví partneři v Kolové

Informace k domu

Nabízíme k prodeji zcela nový rodinný dům 4+kk v oblíbené obci Kolová, jen pár minut od Karlových Varů.
Dům je nově dokončený, nikdy neobývaný a připravený k okamžitému nastěhování. Stačí jen dokončit kuchyňskou linku, terénní úpravy a oplocení.

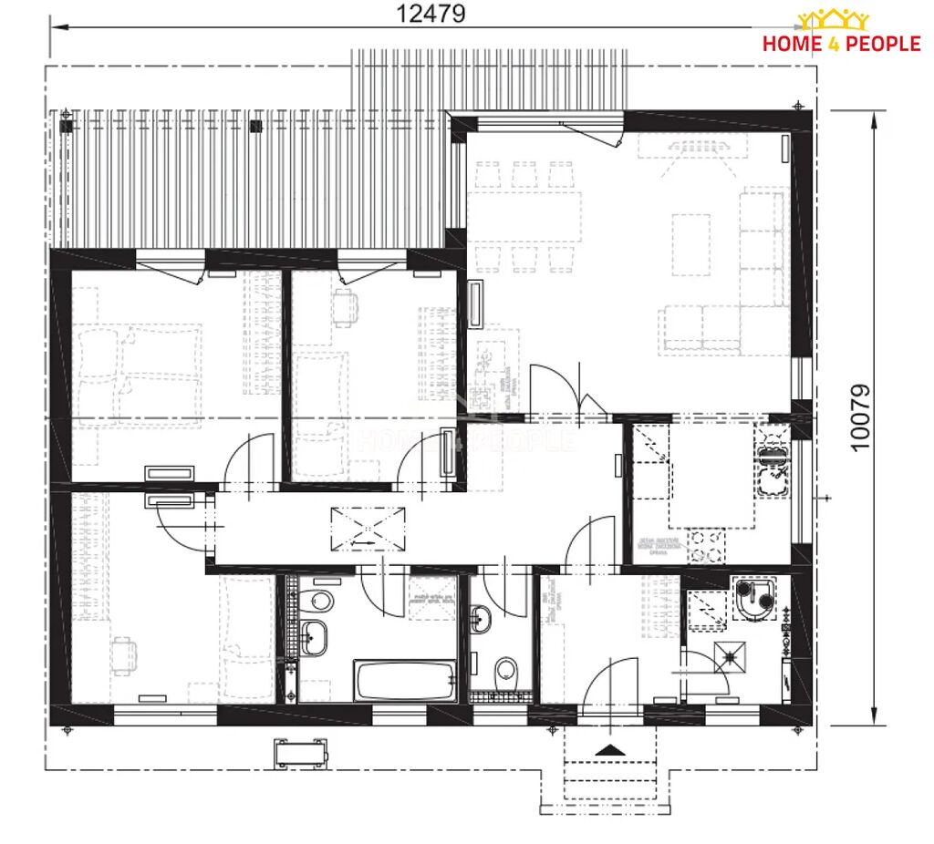
Dům o dispozici 4+kk s užitnou plochou 90 m² stojí na rovinatém pozemku o rozloze přibližně 1 000 m². Součástí je také terasa o velikosti 14,5 m², kterou je potřeba dokončit a parkování je možné přímo na vlastním pozemku. Stavba byla dokončena v roce 2025.

Dispozičně je dům řešen velmi prakticky. Nachází se zde zádveří o výměře 5 m², chodba o velikosti 11 m², samostatné WC o rozloze 2,30 m² a koupelna s dalším WC o velikosti 6 m². Ložnice má 12 m², první pokoj 10 m² a druhý pokoj 9 m². Z obou pokojů je přímý vstup na terasu. Dominantou domu je prostorný obývací pokoj o výměře 24,5 m², na který navazuje kuchyně o velikosti 6,5 m², která je připravená k dokončení podle představ nového majitele. V zadní části domu se nachází technická místnost o rozloze 3,5 m², kde je umístěn bojler a příprava pro další technologie.

Mezi hlavní výhody domu patří to, že se jedná o zcela novou stavbu od českého výrobce, která nabízí kvalitní a úsporné bydlení. Interiér je proveden v nadstandardu – najdete zde vinylové podlahy, antracitové detaily (vypínače, zásuvky, okna). Obývací pokoj doplňuje velké francouzské okno HS - portál s bezbariérovým vstupem na zahradu a současně je v obývacím pokoji možnost instalace krbových kamen. Dům je vybaven trojskly, v každé místnosti klimatizací a podlahovým topením. Kromě toho je zde příprava pro fotovoltaiku, dobíjecí zásuvku pro elektromobil, venkovní žaluzie.

Obec Kolová nabízí klidné bydlení obklopené přírodou, přesto se skvělou dostupností do Karlových Varů. V obci je MHD, škola, obchod, pošta, nedaleko se nachází golfové hřiště a celkově jde o ideální místo pro rodiny i ty, kteří hledají klidné, pohodové bydlení v blízkosti města. V případě dotazů, mě neváhejte kontaktovat. Ev. číslo: 32020.

Parametry domu

Cena
8 990 000 Kč /za nemovitost Spočítat hypotéku
Aktualizováno
26. 2. 2026
Adresa
Kolová
ID
32020
Stavba
Dřevěná
Stav objektu
Novostavba
Druh objektu
Samostatný
Užitná plocha
90 m2
Zastavěná plocha
125 m2
Plocha pozemku
909 m2
Třída energetické náročnosti
B - Velmi úsporná
Elektřina
230V
Odpad
Veřejná kanalizace
Topení
Podlahové
Voda
Vodovod
Parkování

Kontaktovat makléře

Realitní kancelář

MICKA Reality, s.r.o.

Hřímalého 805/3, Plzeň, Jižní Předměstí

Chystáte se prodat nemovitost?
Pomůžeme Vám!

Máte zájem o tento dům?

Tímto, v souladu s nařízením Evropského parlamentu a Rady (EU) 2016/679, v platném znění, prohlašuji, že mi je alespoň 16 let a uděluji tak svůj souhlas se zpracováním zadaných údajů (jméno, telefon, e-mail, ip adresa) společnosti B3 Technology, s.r.o., IČ: 07330600, se sídlem Novostavby 126/23, 435 11 Lom (správce dat), za účelem předání dotazu z tohoto formuláře Vámi vybranému inzerentovi a zpětného kontaktování mé osoby. Osobní údaje bude správce zpracovávat manuálně i automaticky přímo prostřednictvím svých zaměstnanců. Informace předané tímto formulářem budou uloženy v databázi správce maximálně po dobu 10 let. Odvolání souhlasu s uložením a zpracováním poskytnutých dat lze e-mailem na info@videobydleni.cz. V případě podezření na neoprávněné použití Vámi poskytnutých údajů máte právo předat podnět k šetření Úřadu pro ochranu osobních údajů. Více informací
Chystáte se prodat nemovitost?
Pomůžeme Vám!

Inzerát si prohlédlo 10 lidí

Prodejce

Martin Halámek

Martin Halámek

Hlídací pes

Chcete dostávat emailem podobné nabídky prodeje rodinných domů v Kolové?

Podobné nemovitosti


Nevyhovuje Vám typ domu? Podívejte se na jiné kategorie domů.


Vybrané články z našeho blogu