Pronájem bytu 1+1, Praha - Břevnov, Patočkova, 40 m2 (ID: 4119023)

Patočkova, Praha, Břevnov

18 500 Kč /za měsíc Získejte výhodnou HYPOTÉKU
Prémioví partneři v Praze 6

Stěhovací služby

Výkup a prodej starého nábytku

Informace k bytu

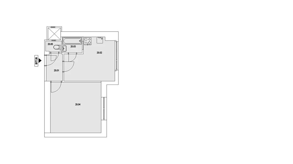
Nabízíme k dlouhodobému pronájmu nově zrekonstruovaný byt 1+1, který se nachází v lokalitě Praha 6 - Břevnov. Byt o celkové ploše 40 m2, se nachází v 4. patře cihlového domu a skládá se z obývacího pokoje a kuchyně s okny do zahrady. Dále je zde předsíň, koupelna a samostatné WC.
Kuchyně je vybavena kuchyňskou linkou s elektrickou troubou a plynovým vařičem. V pokoji jsou nově renovované parkety. V kuchyni a předsíni je plovoucí podlaha, v koupelně a WC je dlažba. K vytápění slouží přímotopné radiátory. V okolí bytu je dostupná veškerá občanská i dopravní vybavenost. Stanice tramvají a autobusů směr metro “A“ Hradčanská nebo Malostranská je 5 -7 min chůze. V blízkosti se nachází park Ladronka a obora Hvězda.
Cena měsíčního nájmu je 18.500,- Kč. Poplatky za služby jsou cca 800,-Kč (studená voda, odpad, výtah, úklid a osvětlení společných prostor), náklady na spotřebu el. energie a plynu odhadujeme na cca 3.000,- Kč (vytápění, ohřev teplé vody, vaření a osvětlení). Na nájemce bude převedena smlouva na dodávku el. energie a plynu. Podmínkou uzavření smlouvy je složení vratné kauce ve výši dvou měsíčních nájmů.
Máme zájem o slušné a spolehlivé nájemníky. Preferujeme dlouhodobý pronájem a nekuřáky bez domácích mazlíčků. Byt bude k nastěhování od 15.12.2025 V případě zájmu nám prosím zašlete kontakt na vás.

Jsme společnost zabývající se dlouhodobým pronájmem bytových jednotek, kdy vždy vlastníme celý dům a nájemní smlouvy uzavíráme s minimální platností jednoho roku, kdy při oboustranné spokojenosti smlouvy prodlužujeme. Dále neplatíte žádnou provizi za zprostředkování.

Parametry bytu

Cena
18 500 Kč /za měsíc
Aktualizováno
26. 11. 2025
Adresa
Patočkova, Praha, Břevnov
ID
14174120
Stavba
Cihlová
Stav objektu
Velmi dobrý
Patro
5.
Vlastnictví
Osobní
Užitná plocha
40 m2

Kontaktovat makléře

Máte zájem o tento byt?

Tímto, v souladu s nařízením Evropského parlamentu a Rady (EU) 2016/679, v platném znění, prohlašuji, že mi je alespoň 16 let a uděluji tak svůj souhlas se zpracováním zadaných údajů (jméno, telefon, e-mail, ip adresa) společnosti B3 Technology, s.r.o., IČ: 07330600, se sídlem Novostavby 126/23, 435 11 Lom (správce dat), za účelem předání dotazu z tohoto formuláře Vámi vybranému inzerentovi a zpětného kontaktování mé osoby. Osobní údaje bude správce zpracovávat manuálně i automaticky přímo prostřednictvím svých zaměstnanců. Informace předané tímto formulářem budou uloženy v databázi správce maximálně po dobu 10 let. Odvolání souhlasu s uložením a zpracováním poskytnutých dat lze e-mailem na info@videobydleni.cz. V případě podezření na neoprávněné použití Vámi poskytnutých údajů máte právo předat podnět k šetření Úřadu pro ochranu osobních údajů. Více informací
Chystáte se prodat nemovitost?
Pomůžeme Vám!

Inzerát si prohlédlo 1 lidí

Prodejce

Martin Kacvinský

Martin Kacvinský

Hlídací pes

Chcete dostávat emailem podobné nabídky pronájmu bytů 1+1 v Praze 6?

Podobné nemovitosti


Nevyhovuje Vám typ bytu? Podívejte se na jiné kategorie bytů.


Vybrané články z našeho blogu