Prodej rodinného domu, Cvikov - Naděje, 210 m2

Cvikov, Naděje

14 890 000 Kč HYPOTÉKA od 66 549 Kč /za měsíc

(včetně provize RK)

Prémioví partneři v Cvikově

Rekonstrukce

Úklidové služby

Informace k domu

Prodej rodinného domu 210 m², Cvikov - Naděje

Stylová roubená chalupa uprostřed nádherné mystické přírody v oblíbené chráněné krajinné oblasti Lužických hor o dispozicí 7+1 s podlahovou plochou 210 m² s 5 koupelnami, kachlovými kamny, infrasaunou, garáží, terasou s úžasným panoramatickým výhledem na lesy a louky a nerušeným soukromím. To vše na pozemku o výměře 1 471 m² v malebné vísce Naděje, jen kousek od Cvikova.

Stylová chalupa (postavena a zkolaudována jako rodinný dům) je zcela nově vystavěna v roce 2007, v přízemí zděná s tloušťkou zdí 60 cm (cihly Porotherm 45 cm + zateplena 10 cm minerální vatou a 5 cm vnějším dřevěným obkladem ve stylu roubení) v místech bez dřevěného obkladu je polystyren 10 cm s tepelnou omítkou 2 cm. Patro je postaveno jako dřevostavba, strop je dřevěný se záklopem. Energetická kategorie Úsporná - C.

V celém domě je rozvedeno ústřední topení, hlavním zdrojem vytápění je nové kvalitní tepelné čerpadlo Daikin s instalací na jaře 2025 s možnosti dálkového ovládání. Současně lze také topit kachlovými kamny na dřevo s teplovodním výměníkem rovněž napojeným na topný systém. Okna izolační plastová, na střeše tašky Bramac. Dům je napojen na elektřinu, odpad sveden do jímky, zdrojem pitné a užitkové vody je vlastní vrtaná studna na pozemku. Chalupa je připojena na wifi a zabezpečovací zařízení napojené na pult centrální ochrany.

V přízemí se nachází prostorný obývací pokoj s kuchyní a ostrůvkem s barovým pultem, velký jídelní stůl pojme min. 12 osob. Dominantou chalupy jsou stylová kachlová kamna s kvalitní krbovou vložkou značky Brunner, která zdobí obývací pokoj a navozují pocit klidu a domácího pohodlí. Z obývacího pokoje je hezký výhled do krajiny. V přízemí se dále nachází 2 samostatné ložnice, koupelna se sprchovým koutem a WC, kde je nyní také umístěna pračka a sušička. Po obou stranách vstupu najdete velké vestavěné skříně pro uložení oblečení a bot.
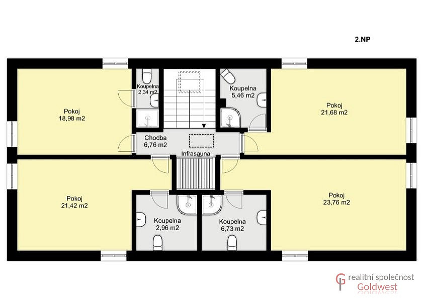
V prvním patře se nachází 4 samostatné velké pokoje, každý s vlastní koupelnu s WC a sprchovým koutem. V patře je umístěna infrasauna, kde můžete relaxovat a užívat si pohody a tepla po celý rok.

Samozřejmostí je prostorná terasa s panoramatickým výhledem do krajiny, která vybízí k relaxování venku a přitom v soukromí. Venkovní posezení, gril, lehátka nebo zahradní nářadí je možno skladovat v zahradním skladu. Pozemek je oplocen po celém svém obvodu, vjezdová brána osazena pohonem na dálkové ovládání. Na zpevněné zatravněné ploše před garáží lze pohodlně zaparkovat 4 vozidla a páté přímo v garáži.

Chalupa je ve výborném technickém stavu, je velmi udržovaná, slouží výlučně jako soukromá chalupa a nikdy nebyla předmětem pronájmu.
Skvělé místo jako výchozí bod pro výlety do přírody od které vás nedělí vůbec nic, např. k přehradě Naděje. Lokalita je kulturně a historicky bohatá, je vyhlášená svou sklářskou tradicí. Krajina zde má kouzlo, poetiku i tajemství, které můžete objevovat o víkendech nebo zde i trvale žít.

Díky umístění Naděje v pohraničí ve velmi krátkém čase dojedete do sousedního Německa (jen 15 min. ) nebo i Polska (cca. 30 min. ).
A pro milovníky golfu je cca. 6 min. jízdy Golf club Malevil se stylovou restaurací, bowlingem nebo malou zoo, který nabízí volnočasové a zábavní aktivity nejen pro dospělé, ale i pro děti. Nový Bor jen 15 min autem a např. lyžování v Liberci 35 min.

Jedná se o velmi žádanou a oblíbenou lokalitu se stavební uzávěrou CHKO, chalupa je celoročně přístupná po zpevněné udržované komunikaci.

Parametry domu

Cena
14 890 000 Kč Spočítat hypotéku
Poznámka k ceně
včetně provize RK
Aktualizováno
26. 11. 2025
Adresa
Cvikov, Naděje
ID
00026
Stavba
Cihlová
Stav objektu
Dobrý
Vybaveno
Ano
Druh objektu
Samostatný
Lokalita objektu
Klidná část obce
Užitná plocha
210 m2
Plocha pozemku
1471 m2
Třída energetické náročnosti
C - Úsporná
Ukazatel energetické náročnosti
88 kWh/m2 za rok

Kontaktovat makléře

Máte zájem o tento dům?

Tímto, v souladu s nařízením Evropského parlamentu a Rady (EU) 2016/679, v platném znění, prohlašuji, že mi je alespoň 16 let a uděluji tak svůj souhlas se zpracováním zadaných údajů (jméno, telefon, e-mail, ip adresa) společnosti B3 Technology, s.r.o., IČ: 07330600, se sídlem Novostavby 126/23, 435 11 Lom (správce dat), za účelem předání dotazu z tohoto formuláře Vámi vybranému inzerentovi a zpětného kontaktování mé osoby. Osobní údaje bude správce zpracovávat manuálně i automaticky přímo prostřednictvím svých zaměstnanců. Informace předané tímto formulářem budou uloženy v databázi správce maximálně po dobu 10 let. Odvolání souhlasu s uložením a zpracováním poskytnutých dat lze e-mailem na info@videobydleni.cz. V případě podezření na neoprávněné použití Vámi poskytnutých údajů máte právo předat podnět k šetření Úřadu pro ochranu osobních údajů. Více informací
Chystáte se prodat nemovitost?
Pomůžeme Vám!

Inzerát si prohlédlo 0 lidí

Prodejce

Mgr. Radoslav Krupka

Mgr. Radoslav Krupka

Hlídací pes

Chcete dostávat emailem podobné nabídky prodeje rodinných domů v Cvikově?

Podobné nemovitosti


Nevyhovuje Vám typ domu? Podívejte se na jiné kategorie domů.


Vybrané články z našeho blogu