Soccer reality

Pronájem skladu, Jirny, Tovární, 447 m2

Tovární, Jirny

37 995 Kč /za měsíc Získejte výhodnou HYPOTÉKU

(Provize realitní kanceláře je jeden měsíční nájem)

Prémioví partneři v Jirnech

Informace k nemovitosti

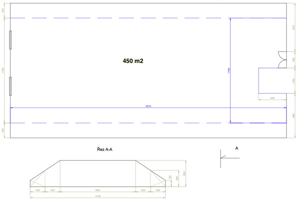
Nabízíme k pronájmu sklad o podlahové ploše 447 m² ve 2.patře s výtahem o nosnosti 1000Kg v komerčním areálu na adrese Tovární 26, Praha východ Jirny. Skladový prostor je ve druhém patře celkem o rozloze 447 m². Prostor je přístupný nákladním výtahem s nosností 1 000 kg a schodištěm, příjezd nákladních vozidel k rampě která disponuje dostatečným manipulačním prostorem pro vozidla do 5 t. Sklad je vybaven topením pro temperování proti zamrznutí a v přízemí jsou k dispozici společné toalety. Průkaz energetické náročnosti zatím nebyl vydán, proto je administrativně uvedena jako třída G – úsporná, což neodráží skutečnou spotřebu energie.
Výborná dopravní dostupnost – snadné napojení na dálnici D11 a Pražský okruh, dobrá dostupnost do centra Prahy i do průmyslových zón v okolí, zastávka MHD přímo před budovou (směr Černý Most, Brandýs nad Labem, Úvaly a další směry).

Parametry nemovitosti

Cena
37 995 Kč /za měsíc
Poznámka k ceně
Provize realitní kanceláře je jeden měsíční nájem
Aktualizováno
29. 3. 2026
Adresa
Tovární, Jirny
ID
11604
Stavba
Smíšená
Stav objektu
Velmi dobrý
Typ objektu
Patrový
Druh objektu
Samostatný
Lokalita objektu
Centrum obce
Užitná plocha
447 m2
Zastavěná plocha
447 m2
Podlahová plocha
447 m2
Plocha pozemku
447 m2
Třída energetické náročnosti
G - Mimořádně nehospodárná
Elektřina
230V, 400V
Plyn
Plynovod
Parkování

Kontaktovat makléře

Máte zájem o tuto nemovistost?

Tímto, v souladu s nařízením Evropského parlamentu a Rady (EU) 2016/679, v platném znění, prohlašuji, že mi je alespoň 16 let a uděluji tak svůj souhlas se zpracováním zadaných údajů (jméno, telefon, e-mail, ip adresa) společnosti B3 Technology, s.r.o., IČ: 07330600, se sídlem Novostavby 126/23, 435 11 Lom (správce dat), za účelem předání dotazu z tohoto formuláře Vámi vybranému inzerentovi a zpětného kontaktování mé osoby. Osobní údaje bude správce zpracovávat manuálně i automaticky přímo prostřednictvím svých zaměstnanců. Informace předané tímto formulářem budou uloženy v databázi správce maximálně po dobu 10 let. Odvolání souhlasu s uložením a zpracováním poskytnutých dat lze e-mailem na info@videobydleni.cz. V případě podezření na neoprávněné použití Vámi poskytnutých údajů máte právo předat podnět k šetření Úřadu pro ochranu osobních údajů. Více informací
Chystáte se prodat nemovitost?
Pomůžeme Vám!

Inzerát si prohlédlo 13 lidí

Prodejce

Luboš Borovka

Luboš Borovka

Hlídací pes

Chcete dostávat emailem podobné nabídky pronájmu skladů v Jirnech?

Podobné nemovitosti


Nevyhovuje Vám typ nemovitosti? Podívejte se na jiné kategorie komerčních.


Vybrané články z našeho blogu