Prodej bytu 2+kk, Vrbno pod Pradědem, Žižkova, 60 m2 (ID: 4120009)

Žižkova, Vrbno pod Pradědem

4 490 000 Kč /za nemovitost HYPOTÉKA od 20 068 Kč /za měsíc
Prémioví partneři v Vrbně pod Pradědem

Informace k bytu

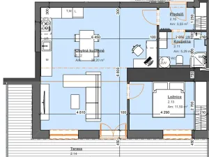
Tento zcela nový, krásný, horský byt je určen jak k celoročnímu bydlení, tak i pro rekreaci. Má promyšlený půdorys, vysoký standard zpracování, potřebné zázemí pro uložení sportovního vybavení, včetně lyžárny a sklepní kóje v suterénu domu. Jeho příjemným doplňkem je parkovací stání, jenž je v ceně bytu a velkorysá terasa. Byt je orientován na jihovýchod a nachází se ve druhém nadzemním podlaží. V prostoru kuchyňské linky jsou připraveny vývody na 230 V, teplé a studené vody, odpady a osvětlení. Bytový dům disponuje výtahem a společnou kolárnou. Město Vrbno pod Pradědem se rozprostírá na soutoku Bílé, Střední a Černé Opavy v podhůří nejvyššího pohoří Moravy a Slezska Jeseníků. V jeho blízkosti se nacházejí lázně Karlova Studánka a nejvyšší hora Jeseníků Praděd. Město je právem nazýváno branou do Jeseníků, prochází jím hranice Chráněné krajinné oblasti Jeseníky.

Parametry bytu

Cena
4 490 000 Kč /za nemovitost Spočítat hypotéku
Aktualizováno
27. 11. 2025
Adresa
Žižkova, Vrbno pod Pradědem
ID
0083-NP04262
Stavba
Cihlová
Stav objektu
Po rekonstrukci
Patro
2. z 3
Vybaveno
Ne
Lokalita objektu
Klidná část obce
Vlastnictví
Osobní
Užitná plocha
60 m2
Zastavěná plocha
779 m2
Podlahová plocha
92 m2
Třída energetické náročnosti
C - Úsporná
Elektřina
230V
Odpad
Veřejná kanalizace
Komunikace
Asfaltová
Telekomunikace
Kabelové rozvody
Doprava
Vlak, Silnice, Autobus
Voda
Vodovod
Topné těleso
Podlahové vytápění
Zdroj teplé vody
Bojler - elektro
Sklep
Terasa
Výtah
Parkování

Kontaktovat makléře

Realitní kancelář

RE/MAX Elite Reality

Gen. Svobody 98/15, Šumperk

Chystáte se prodat nemovitost?
Pomůžeme Vám!

Máte zájem o tento byt?

Tímto, v souladu s nařízením Evropského parlamentu a Rady (EU) 2016/679, v platném znění, prohlašuji, že mi je alespoň 16 let a uděluji tak svůj souhlas se zpracováním zadaných údajů (jméno, telefon, e-mail, ip adresa) společnosti B3 Technology, s.r.o., IČ: 07330600, se sídlem Novostavby 126/23, 435 11 Lom (správce dat), za účelem předání dotazu z tohoto formuláře Vámi vybranému inzerentovi a zpětného kontaktování mé osoby. Osobní údaje bude správce zpracovávat manuálně i automaticky přímo prostřednictvím svých zaměstnanců. Informace předané tímto formulářem budou uloženy v databázi správce maximálně po dobu 10 let. Odvolání souhlasu s uložením a zpracováním poskytnutých dat lze e-mailem na info@videobydleni.cz. V případě podezření na neoprávněné použití Vámi poskytnutých údajů máte právo předat podnět k šetření Úřadu pro ochranu osobních údajů. Více informací
Chystáte se prodat nemovitost?
Pomůžeme Vám!

Inzerát si prohlédlo 1 lidí

Prodejce

David Kotrla

David Kotrla

Hlídací pes

Chcete dostávat emailem podobné nabídky prodeje bytů 2+kk v Vrbně pod Pradědem?

Podobné nemovitosti


Nevyhovuje Vám typ bytu? Podívejte se na jiné kategorie bytů.


Vybrané články z našeho blogu