Prodej pozemku pro bydlení, Hynčina, 2595 m2

Hynčina, Křižanov

1 720 000 Kč /za nemovitost HYPOTÉKA od 7 687 Kč /za měsíc
Prémioví partneři v Hynčině

Informace k pozemku

Hledáte klidné místo, kde budete mít minimum sousedů a přímý kontakt s přírodou? Pokud ano, tak je tohle místo ideální volba pro ty, kdo hledají únik od ruchu města. Oblast nabízí klid a možnost poznání venkovské krajiny Jeseníků.
Vlastník prodá rozsáhlý stavební pozemek nacházející se v malebné obci Křižanov u Zábřehu. Křižanov je malá osada v obci Hynčina, okres Šumperk, s bohatou historií, která se nachází v krásné přírodě na pomezí Jeseníků a Zábřežské vrchoviny.
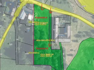
Celková výměra pozemku činí 2.595m2. Vzhledem k výměře a dostatečné šířce pozemku je možné stávající parcelu rozdělit na dva samostatné pozemky.
Přístupová cesta na pozemek je zajištěna z obecní komunikace.
Inženýrské sítě:
Elektřina: nedaleko hranice pozemku v hlavním rozvodu
Voda: z vlastních studní
Kanalizace: obec v současnosti nemá vybudovaný systém veřejné kanalizace. Odpadní vody jsou čištěny v septicích nebo zachycovány v jímkách na vyvážení. Recipientem odpadních vod je Hynčický potok.
Projekt kanalizace se momentálně v obci řeší.
Plyn: v obci není zaveden

Občanská vybavenost obce: obecní úřad + Czechpoint, KD Křižanov, hřiště Hynčina, svoz odpadů, autobusové spojení, poštovní schránka, kostel, kaple. 
V okolí najdete klid, přírodu, a přitom je vše potřebné v rozumné dojezdové vzdálenosti. Dostupnost autem cca 20 min do Zábřehu, 30 min do Mohelnice a 40 min do Šumperka.

Cena za celek: 1.720.000Kč.
Možnost prodat i samostatně:
Pozemek A: budoucí výměra cca 1.100m2
Pozemek B: budoucí výměra 1.495m2

Parametry pozemku

Cena
1 720 000 Kč /za nemovitost Spočítat hypotéku
Aktualizováno
27. 11. 2025
Adresa
Hynčina, Křižanov
Plocha pozemku
2595 m2

Kontaktovat makléře

Máte zájem o tento pozemek?

Tímto, v souladu s nařízením Evropského parlamentu a Rady (EU) 2016/679, v platném znění, prohlašuji, že mi je alespoň 16 let a uděluji tak svůj souhlas se zpracováním zadaných údajů (jméno, telefon, e-mail, ip adresa) společnosti B3 Technology, s.r.o., IČ: 07330600, se sídlem Novostavby 126/23, 435 11 Lom (správce dat), za účelem předání dotazu z tohoto formuláře Vámi vybranému inzerentovi a zpětného kontaktování mé osoby. Osobní údaje bude správce zpracovávat manuálně i automaticky přímo prostřednictvím svých zaměstnanců. Informace předané tímto formulářem budou uloženy v databázi správce maximálně po dobu 10 let. Odvolání souhlasu s uložením a zpracováním poskytnutých dat lze e-mailem na info@videobydleni.cz. V případě podezření na neoprávněné použití Vámi poskytnutých údajů máte právo předat podnět k šetření Úřadu pro ochranu osobních údajů. Více informací
Chystáte se prodat nemovitost?
Pomůžeme Vám!

Inzerát si prohlédlo 0 lidí

Prodejce

Renáta Venclová

Renáta Venclová

Hlídací pes

Chcete dostávat emailem podobné nabídky prodeje pozemků pro bydlení v Hynčině?

Podobné nemovitosti


Nevyhovuje Vám typ pozemku? Podívejte se na jiné kategorie pozemků.


Vybrané články z našeho blogu