Prodej bytu 2+kk, Cheb, Na Nivách, 58 m2

Na Nivách, Cheb

4 400 000 Kč /za nemovitost HYPOTÉKA od 19 665 Kč /za měsíc
Prémioví partneři v Chebu

Informace k bytu

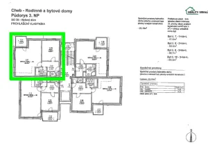
Byt v novostavbě, můžete bydlet ihned :) Cena je včetně zánovního zařízení viz. fotografie. Jedná se o bezbariérový přístup do domu i bytu. Nabízíme k prodeji krásný a prostorný byt 2+kk o výměře 60,3 m2 (byt vč. sklepní kóje) + lodžie 4,61 m2 v novostavbě u sídliště Skalka v Chebu. Byt je umístěn ve 2. patře domu s výtahem. Dispoziční řešení: předsíň, obývací pokoj s kuchyňským koutem a vstupem do lodžie s výhledem do zeleně, WC místnost je zvlášť. K bytu náleží sklepní kóje. Okna jsou plastová zaručující dostatek osvětlení. Prostřednictvím optického kabelu je zajištěno kvalitní internetové připojení. V domě je k dispozici kolárna. Dům je postaven v příjemné lokalitě navazující na výstavbu rodinných domů v blízkosti veškeré občanské vybavenosti - škola, školka, nákupní střediska, lékařské kliniky. Zastávka MHD a vlaková zastávka je v dosahu pěší chůze. Cheb je krásné historické město s hradem. Doporučuji pro svůj výborný stav a možnosti bydlení ihned.

Parametry bytu

Cena
4 400 000 Kč /za nemovitost Spočítat hypotéku
Náklady na bydlení
fond oprav 302 Kč, poplatek za správu 172 Kč
Aktualizováno
9. 1. 2026
Adresa
Na Nivách, Cheb
ID
02-01487
Stavba
Cihlová
Stav objektu
Novostavba
Patro
2. z 3
Vybaveno
Ano
Lokalita objektu
Centrum obce
Vlastnictví
Osobní
Užitná plocha
58 m2
Podlahová plocha
60 m2
Třída energetické náročnosti
B - Velmi úsporná
Ukazatel energetické náročnosti
115 kWh/m2 za rok
Elektřina
230V
Odpad
Veřejná kanalizace
Telekomunikace
Internet, Kabelové rozvody
Doprava
Vlak, Dálnice, MHD, Autobus
Voda
Vodovod
Balkon
Sklep
Bezbarierový přístup
Parkování

Kontaktovat makléře

Máte zájem o tento byt?

Tímto, v souladu s nařízením Evropského parlamentu a Rady (EU) 2016/679, v platném znění, prohlašuji, že mi je alespoň 16 let a uděluji tak svůj souhlas se zpracováním zadaných údajů (jméno, telefon, e-mail, ip adresa) společnosti B3 Technology, s.r.o., IČ: 07330600, se sídlem Novostavby 126/23, 435 11 Lom (správce dat), za účelem předání dotazu z tohoto formuláře Vámi vybranému inzerentovi a zpětného kontaktování mé osoby. Osobní údaje bude správce zpracovávat manuálně i automaticky přímo prostřednictvím svých zaměstnanců. Informace předané tímto formulářem budou uloženy v databázi správce maximálně po dobu 10 let. Odvolání souhlasu s uložením a zpracováním poskytnutých dat lze e-mailem na info@videobydleni.cz. V případě podezření na neoprávněné použití Vámi poskytnutých údajů máte právo předat podnět k šetření Úřadu pro ochranu osobních údajů. Více informací
Chystáte se prodat nemovitost?
Pomůžeme Vám!

Inzerát si prohlédlo 81 lidí

Prodejce

Bc. Monika Veberová

Bc. Monika Veberová

Hlídací pes

Chcete dostávat emailem podobné nabídky prodeje bytů 2+kk v Chebu?

Podobné nemovitosti


Nevyhovuje Vám typ bytu? Podívejte se na jiné kategorie bytů.


Vybrané články z našeho blogu