Prodej vícegeneračního domu, Kounice, 636 m2 (ID: 4120214)

Kounice

34 500 000 Kč /za nemovitost HYPOTÉKA od 154 194 Kč /za měsíc
Prémioví partneři v Kounicích

Informace k domu

Exkluzivně Vám nabízíme k prodeji privátní sídlo v těsném sousedství lesa. Jedná se o vícegenerační, nadstandardní, samostatnou vilu s užitnou plochou 636 m2 pozemkem 2478 m2, na okraji obce Kounice, v sousedství lesa. Dojezdová vzdálenosti do Prahy 20 min.

Jednou z hlavních předností domu, je jeho přirozené bioklima, které poskytuje příjemnou, stálou teplotu i v letních měsících, bez nutnosti klimatizace. Dále udržovaná zahrada, s terasou, poskytující naprosté soukromí, díky živému plotu (cca 7 metrů) vysokých Tújí a přilehlému lesu.
Dům je zděný, kolaudovaný v r. 2008. S přízemím, 2.NP a půdním úložným prostorem.
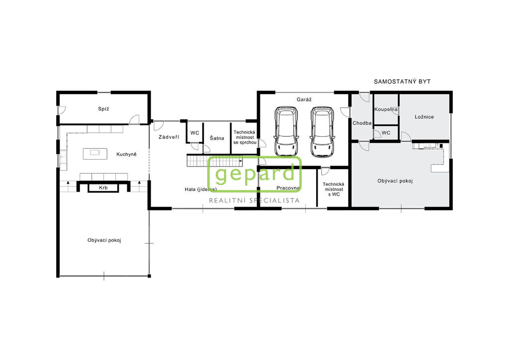
Dispozičně, v přízemí, je v pravé části domu obývací pokoj s panoramatickým výhledem do zahrady, krbem, propojený s kuchyní. Kuchyň je vybavena spotřebiči Miele, Dornbrach a Gutmann a vlastní chlazenou spíží. Navazuje na jídelnu, pracovnu, dále na šatnu a sociální zázemí. Levá část domu, je oddělena garáží pro dva automobily, má vlastní vstup do samostatného bytu s obývacím pokojem s kuchyní, ložnicí a sociálním zázemím.
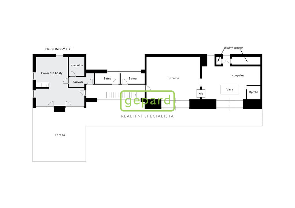
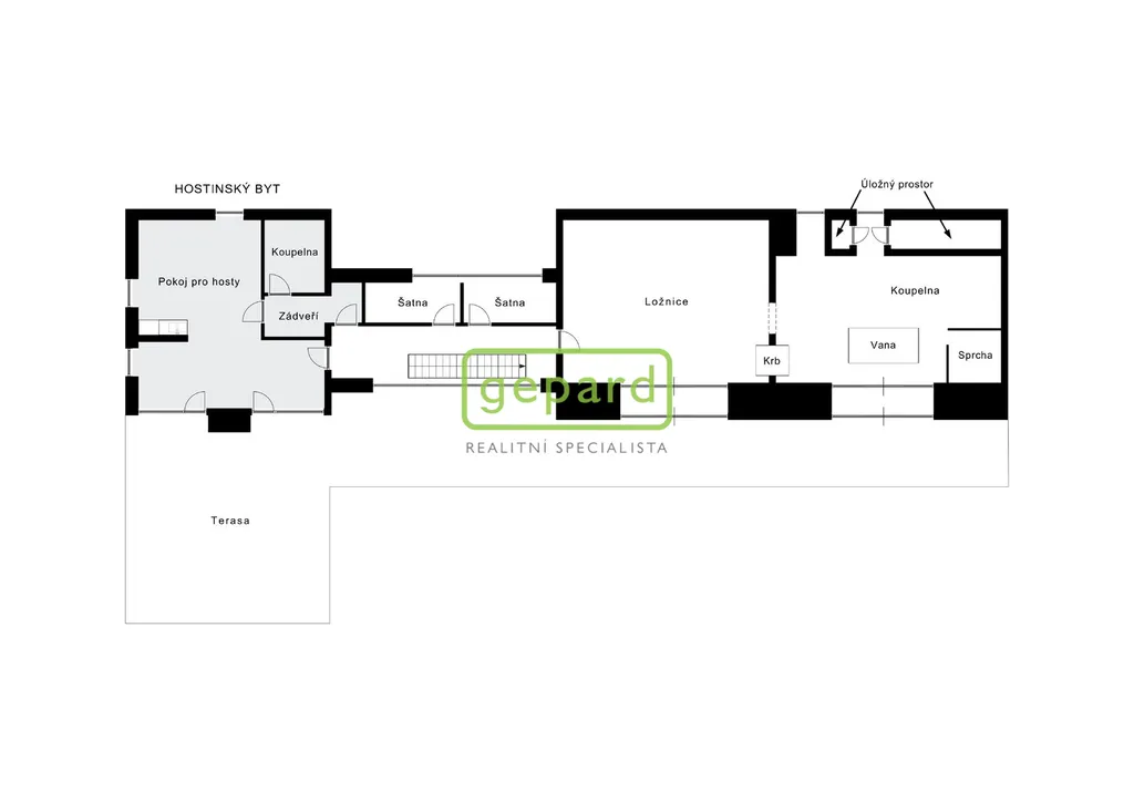
2.NP je přístupné schodištěm z prostoru jídelní haly. V pravé části domu je hostinský byt s obývacím pokojem s kuch. koutem, k němu náleží šatna a sociální zázemí.
Podél schodiště jsou umístěny dvě šatny a chodba plynule přechází do levé části horního podlaží. Zde vcházíte do prostorné ložnice s dvoustranným krbem. Na ni navazuje hlavní velká koupelna, kde byl plánovaný wellness.
Z horních místností, včetně velké koupelny jsou vstupy na západně orientovanou terasu s otevřeným výhledem do okolní krajiny.
Z hlediska nadstandardního vybavení domu jsou například podlahy, schodiště i obklady dvou krbů jsou ze špičkové velkoformátové dlažby Iris Ceramica. Samostatný byt v přízemí má v obývacím pokoji a ložnici dřevěné parkety.
V případě sanity: vany značka Kaldewei, porcelánová umyvadla Duravit a baterie Hansgrohe.
Vstupní dveře a okna domu jsou hliníkové, značky Schüco, s venkovními dálkově ovládanými žaluziemi Markilux.
Vytápění zajišťují dvě tepelná čerpadla země-voda (4 hlubinné vrty) Stiebel Eltron, Na střeše domu je fotovoltaická elektrárna.
Parkování v dvojgaráži, případně je možno parkovat i více vozů u vjezdu do garáže.
Na zahradě je instalovaná automatická závlaha ze studny, trávník udržuje robotická sekačka.
Občanská vybavenost Kounic nabízí základní školu a školku, poštu, a dále v Č. Brodu, (jen cca 3 km), je řada obchodů a služeb, stavebniny, školy, školky, banky, dokonce i klasická a veterinární nemocnice.
Výborné nákupy jsou i v CČM, HORNBACH, IKEA, MAKRO, během pár minut po dálnici na okraj Prahy.
V sousedství domu je příroda, rybníky, památky muzea, cyklostezky, dopravní a fotbalové hřiště. Dále například blízké Kersko, jako zajímavost u města Kouřim naleznete střed Evropy.
Nově PID Kounice – Praha-Černý most. Rychlá dostupnost dálnice D11 Praha/H. Králové, D10 Mladá Boleslav (Liberec). Vlakové nádraží je v Českém Brodě.
Pro další informace k nemovitosti, financování a prohlídce kontaktujte makléře.

Parametry domu

Cena
34 500 000 Kč /za nemovitost Spočítat hypotéku
Aktualizováno
27. 11. 2025
Adresa
Kounice
ID
11771
Stavba
Smíšená
Stav objektu
Novostavba
Typ objektu
Patrový
Druh objektu
Samostatný
Užitná plocha
636 m2
Zastavěná plocha
376 m2
Plocha pozemku
2478 m2
Plocha zahrady
2102 m2
Třída energetické náročnosti
B - Velmi úsporná
Elektřina
120V, 230V, 400V
Plyn
Plynovod
Odpad
Veřejná kanalizace
Topení
Podlahové
Komunikace
Dlážděná, Asfaltová
Telekomunikace
Telefon, Internet, Satelit, Kabelová televize, Kabelové rozvody
Doprava
Vlak, Dálnice, Silnice, MHD, Autobus
Voda
Místní zdroj vody, Vodovod, Studna
Převod do OV

Kontaktovat makléře

Máte zájem o tento dům?

Tímto, v souladu s nařízením Evropského parlamentu a Rady (EU) 2016/679, v platném znění, prohlašuji, že mi je alespoň 16 let a uděluji tak svůj souhlas se zpracováním zadaných údajů (jméno, telefon, e-mail, ip adresa) společnosti B3 Technology, s.r.o., IČ: 07330600, se sídlem Novostavby 126/23, 435 11 Lom (správce dat), za účelem předání dotazu z tohoto formuláře Vámi vybranému inzerentovi a zpětného kontaktování mé osoby. Osobní údaje bude správce zpracovávat manuálně i automaticky přímo prostřednictvím svých zaměstnanců. Informace předané tímto formulářem budou uloženy v databázi správce maximálně po dobu 10 let. Odvolání souhlasu s uložením a zpracováním poskytnutých dat lze e-mailem na info@videobydleni.cz. V případě podezření na neoprávněné použití Vámi poskytnutých údajů máte právo předat podnět k šetření Úřadu pro ochranu osobních údajů. Více informací
Chystáte se prodat nemovitost?
Pomůžeme Vám!

Inzerát si prohlédlo 9 lidí

Prodejce

Josef Kříženecký

Josef Kříženecký

Hlídací pes

Chcete dostávat emailem podobné nabídky prodeje vícegeneračních domů v Kounicích?

Podobné nemovitosti


Nevyhovuje Vám typ domu? Podívejte se na jiné kategorie domů.


Vybrané články z našeho blogu