Pronájem bytu 3+kk, Praha - Libeň, Davídkova, 48 m2

Davídkova, Praha, Libeň

20 900 Kč /za měsíc Získejte výhodnou HYPOTÉKU

(včetně DPH, bez poplatků, + provize RK, včetně právního servisu)

Prémioví partneři v Praze 8

Stěhovací služby

Výkup a prodej starého nábytku

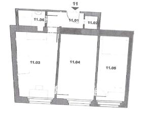
Informace k bytu

Moderní byt 3+kk k pronájmu v klidné lokalitě Prahy 8 - Libně. Tento praktický byt o velikosti 48 m² se nachází v cihlové budově v 3. podlaží. Klidný cihlový dům ve velmi dobrém stavu se zahrádkou s posezením ve vnitrobloku.

Byt je po kompletní rekonstrukci s novou dlažbou, plovoucí podlahou a novými prosklenými dveřmi. V bytě jsou nové skleněné konvektory s digitálním termostatem, nové rozvody elektřiny, vody a odpadu. Byt je vybaven TV, SAT a internetovou přípojkou. Byt se skládá ze vstupní chodby, pokoje s kuchyňským koutem, ložnicí, koupelnou s obkladem z mozaiky, se sprchovým koutem s podomítkovou baterií, se skleněnou zástěnou a samostatným WC s geberitem. Je vybaven moderní kuchyňskou linkou s obkladem z kamene, se spotřebiči (sklokeramická varná deska, horkovzdušná trouba, digestoř) a barevnými luxfery. Byt je vzdušný, světlý a elegantní. Výhled do zahrady.

Díky klidnému prostřed, výborné dostupnosti a veškeré občanské vybavenosti je tato nabídka skvělou příležitostí pro ty, kteří hledají moderní a pohodlné bydlení v centru Prahy. Ideální pro jednotlivce či pár. Volné ihned, doporučujeme prohlídku.
Nájemné 20.900.-Kč/měsíc, poplatky 2.500.-Kč/ měsíc + převedení elektřiny na nájemce.
Volný ihned, doporučujeme prohlídku.

Parametry bytu

Cena
20 900 Kč /za měsíc
Poznámka k ceně
včetně DPH, bez poplatků, + provize RK, včetně právního servisu
Aktualizováno
27. 11. 2025
Adresa
Davídkova, Praha, Libeň
ID
03536
Stavba
Cihlová
Stav objektu
Velmi dobrý
Patro
3. z 6
Vybaveno
Částečně
Druh objektu
Řadový
Lokalita objektu
Klidná část obce
Vlastnictví
Osobní
Užitná plocha
48 m2
Třída energetické náročnosti
G - Mimořádně nehospodárná
Elektřina
120V, 230V
Odpad
Veřejná kanalizace
Topení
Lokální elektrické
Telekomunikace
Kabelové rozvody
Doprava
MHD
Voda
Vodovod

Kontaktovat makléře

Realitní kancelář

Logo Realog

Realog

U Měšťanského pivovaru 7, Praha

Chystáte se prodat nemovitost?
Pomůžeme Vám!

Máte zájem o tento byt?

Tímto, v souladu s nařízením Evropského parlamentu a Rady (EU) 2016/679, v platném znění, prohlašuji, že mi je alespoň 16 let a uděluji tak svůj souhlas se zpracováním zadaných údajů (jméno, telefon, e-mail, ip adresa) společnosti B3 Technology, s.r.o., IČ: 07330600, se sídlem Novostavby 126/23, 435 11 Lom (správce dat), za účelem předání dotazu z tohoto formuláře Vámi vybranému inzerentovi a zpětného kontaktování mé osoby. Osobní údaje bude správce zpracovávat manuálně i automaticky přímo prostřednictvím svých zaměstnanců. Informace předané tímto formulářem budou uloženy v databázi správce maximálně po dobu 10 let. Odvolání souhlasu s uložením a zpracováním poskytnutých dat lze e-mailem na info@videobydleni.cz. V případě podezření na neoprávněné použití Vámi poskytnutých údajů máte právo předat podnět k šetření Úřadu pro ochranu osobních údajů. Více informací
Chystáte se prodat nemovitost?
Pomůžeme Vám!

Inzerát si prohlédlo 0 lidí

Prodejce

Michal Kodr

Michal Kodr

Hlídací pes

Chcete dostávat emailem podobné nabídky pronájmu bytů 3+kk v Praze 8?

Podobné nemovitosti


Nevyhovuje Vám typ bytu? Podívejte se na jiné kategorie bytů.


Vybrané články z našeho blogu