Soccer reality

Prodej bytu 4+kk, Čelákovice, Dělnická, 98 m2

Dělnická, Čelákovice

8 900 000 Kč /za nemovitost HYPOTÉKA od 39 778 Kč /za měsíc

(včetně DPH, včetně provize, včetně právního servisu)

Prémioví partneři v Čelákovicích

Informace k bytu

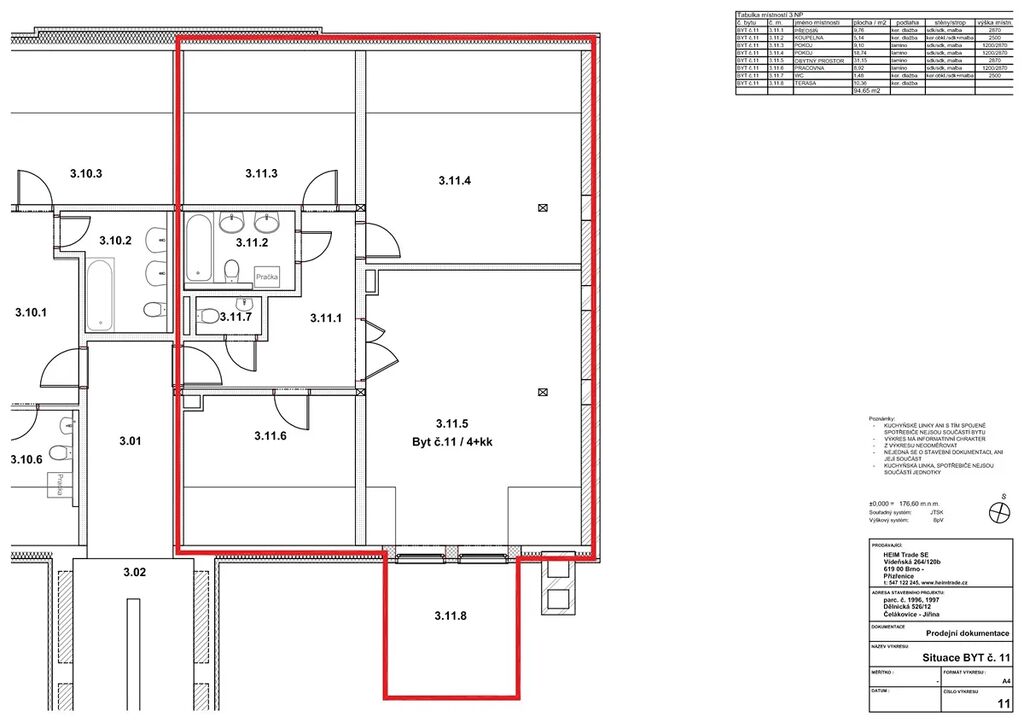
Nabízíme Vám podkrovní byt 4+kk, 97,8 m² s terasou 11,8 m² ve zrekonstruované prvorepublikové vile v Čelákovicích. Byt se nachází ve 3. nadzemním podlaží. Ze vstupní chodby se vstupuje do všech místností, tj. do obývacího pokoje, který dává prostor pro promyšlené zařízení interiéru, propojující kuchyňskou část a odpočinkovou zónou a zároveň navazující na terasu orientovanou na jih, dále do ložnice a dvou pokojů, které se nabízejí jako dětské, a pak ještě do prostorné koupelny s vanou, dvěma umyvadly a WC a naposledy do samostatného WC.

Bytový dům Dělnická 12 je situován do klidné vilové čtvrti ve východní části Čelákovic v dochozí vzdálenosti 5 min od nádraží. Nabízí celkem 11 bytových jednotek umístěných ve třech nadzemních podlažích. Původně prvorepubliková vila byla citlivě rekonstruována tak, aby nabídla novým majitelům komfort moderního bydlení při zachování historických prvků původní vily. Ke každému z bytů lze koupit parkovací stání na vlastním pozemku.

Čelákovice jsou atraktivní lokalita pro bydlení, podnikání i aktivní odpočinek, rozkládají se u Labe asi 27 km severovýchodním směrem od Prahy. Naleznete zde veškerou občanskou vybavenost. Nabízí nadstandardní volnočasové vyžití s řadou cyklostezek, dětských hřišť, má krásné historické centrum, ve kterém najdete spoustu možností kulturního a společenského vyžití. V červnu 2023 byla na Labi dokončena realizace přístaviště pro malá vodní plavidla.

V případě zájmu nás neváhejte kontaktovat. Více informací najdete na webu projektu Bytový dům Dělnická 12. Prodej přímo od developera.

Parametry bytu

Cena
8 900 000 Kč /za nemovitost Spočítat hypotéku
Poznámka k ceně
včetně DPH, včetně provize, včetně právního servisu
Aktualizováno
15. 1. 2026
Adresa
Dělnická, Čelákovice
ID
Del.11
Stavba
Smíšená
Stav objektu
Po rekonstrukci
Patro
3. z 3
Vybaveno
Ne
Lokalita objektu
Klidná část obce
Vlastnictví
Osobní
Užitná plocha
98 m2
Třída energetické náročnosti
C - Úsporná
Ukazatel energetické náročnosti
1232 kWh/m2 za rok
Elektřina
230V
Plyn
Individuální
Odpad
Veřejná kanalizace
Komunikace
Dlážděná, Asfaltová
Telekomunikace
Telefon, Internet
Doprava
Vlak, Silnice, MHD, Autobus
Voda
Vodovod
Terasa
Převod do OV

Kontaktovat makléře

Realitní kancelář

EL3 Consulting

Politických vězňů 912/10, Praha

Chystáte se prodat nemovitost?
Pomůžeme Vám!

Máte zájem o tento byt?

Tímto, v souladu s nařízením Evropského parlamentu a Rady (EU) 2016/679, v platném znění, prohlašuji, že mi je alespoň 16 let a uděluji tak svůj souhlas se zpracováním zadaných údajů (jméno, telefon, e-mail, ip adresa) společnosti B3 Technology, s.r.o., IČ: 07330600, se sídlem Novostavby 126/23, 435 11 Lom (správce dat), za účelem předání dotazu z tohoto formuláře Vámi vybranému inzerentovi a zpětného kontaktování mé osoby. Osobní údaje bude správce zpracovávat manuálně i automaticky přímo prostřednictvím svých zaměstnanců. Informace předané tímto formulářem budou uloženy v databázi správce maximálně po dobu 10 let. Odvolání souhlasu s uložením a zpracováním poskytnutých dat lze e-mailem na info@videobydleni.cz. V případě podezření na neoprávněné použití Vámi poskytnutých údajů máte právo předat podnět k šetření Úřadu pro ochranu osobních údajů. Více informací
Chystáte se prodat nemovitost?
Pomůžeme Vám!

Inzerát si prohlédlo 12 lidí

Prodejce

Jan Horňák

Jan Horňák

Hlídací pes

Chcete dostávat emailem podobné nabídky prodeje bytů 4+kk v Čelákovicích?

Podobné nemovitosti


Nevyhovuje Vám typ bytu? Podívejte se na jiné kategorie bytů.


Vybrané články z našeho blogu