Pronájem obchodního prostoru, Cheb, 26. dubna, 115 m2

26. dubna, Cheb

30 000 Kč /za měsíc Získejte výhodnou HYPOTÉKU

(+ energie, kauce a poplatek RK)

Prémioví partneři v Chebu

Informace k nemovitosti

Pronájem – komerční prostory v centru Chebu, ul. 26. dubna

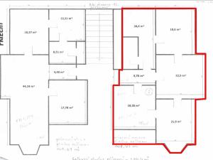
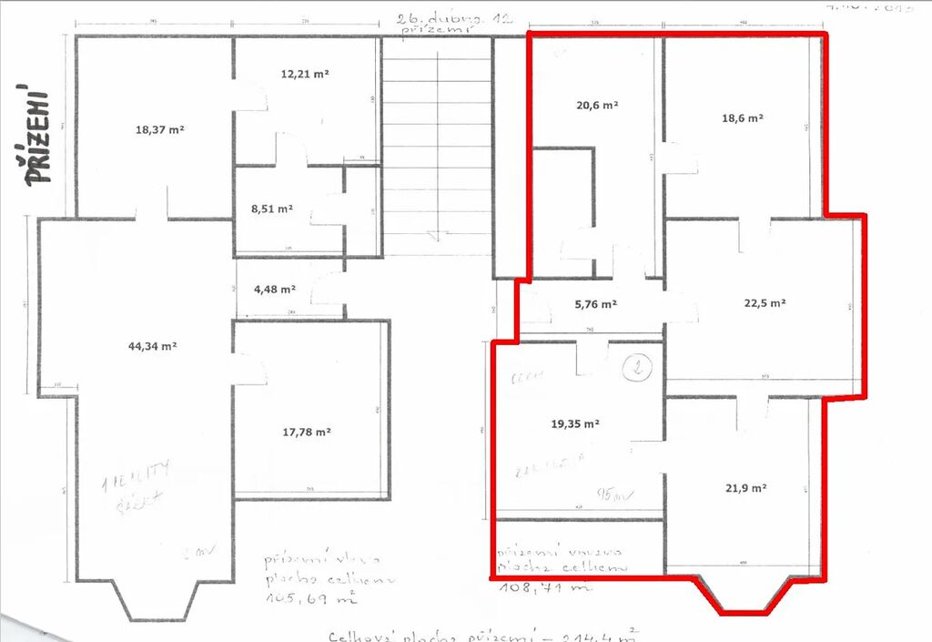
Nabízíme k pronájmu atraktivní nebytový prostor o užitné ploše 115 m² v přízemí domu (1. NP) s vlastním samostatným vstupem. Jedná se o velmi dobře dostupnou a viditelnou lokalitu v samém centru Chebu, ideální pro širokou škálu podnikatelských aktivit.

Dispozice a stav prostoru

Prostor tvoří:

4 prostorné místnosti (možnost stavebních úprav či propojení podle potřeb nájemce),
chodba,
sklad,
kuchyňka,
sociální zázemí (toalety).

Prostory jsou aktuálně ve stavu probíhající rekonstrukce – výsledná podoba bude dokončena dle přání nájemce, což poskytuje výjimečnou flexibilitu při přípravě na konkrétní typ provozu.

Technické informace

Centrální plynové vytápění včetně ohřevu teplé vody.
Možnost pronájmu celku i jednotlivých částí.
Možnost parkování před domem

Vhodné využití

Díky poloze v centru města jsou prostory vhodné zejména pro:

obchod,
služby,
kavárnu,
ordinaci či jiné zdravotnické zařízení,
sportovní nebo relaxační studio,
a mnoho dalších podnikatelských záměrů.

Prostor nabízí výbornou dostupnost, dostatek světla i možnost plného přizpůsobení vašim podnikatelským potřebám.

Nájem: 30.000 Kč/měsíc.

Energie: 7.000 Kč/měsíc

Kauce: 60.000 Kč, poplatek RK: 30.000 Kč + DPH.

Bez PENB – energ. tř. „G“.

Parametry nemovitosti

Cena
30 000 Kč /za měsíc
Poznámka k ceně
+ energie, kauce a poplatek RK
Aktualizováno
28. 11. 2025
Adresa
26. dubna, Cheb
ID
5714
Stavba
Cihlová
Stav objektu
Velmi dobrý
Patro
1. z 2
Lokalita objektu
Centrum obce
Užitná plocha
115 m2
Třída energetické náročnosti
G - Mimořádně nehospodárná
Elektřina
230V, 400V
Plyn
Plynovod
Odpad
Veřejná kanalizace
Komunikace
Asfaltová
Telekomunikace
Internet
Doprava
Vlak, Silnice, MHD, Autobus
Voda
Vodovod
Topné těleso
Radiátory
Zdroj topení
Plynový kotel
Zdroj teplé vody
Plynový kotel
Bezbarierový přístup

Kontaktovat makléře

Máte zájem o tuto nemovistost?

Tímto, v souladu s nařízením Evropského parlamentu a Rady (EU) 2016/679, v platném znění, prohlašuji, že mi je alespoň 16 let a uděluji tak svůj souhlas se zpracováním zadaných údajů (jméno, telefon, e-mail, ip adresa) společnosti B3 Technology, s.r.o., IČ: 07330600, se sídlem Novostavby 126/23, 435 11 Lom (správce dat), za účelem předání dotazu z tohoto formuláře Vámi vybranému inzerentovi a zpětného kontaktování mé osoby. Osobní údaje bude správce zpracovávat manuálně i automaticky přímo prostřednictvím svých zaměstnanců. Informace předané tímto formulářem budou uloženy v databázi správce maximálně po dobu 10 let. Odvolání souhlasu s uložením a zpracováním poskytnutých dat lze e-mailem na info@videobydleni.cz. V případě podezření na neoprávněné použití Vámi poskytnutých údajů máte právo předat podnět k šetření Úřadu pro ochranu osobních údajů. Více informací
Chystáte se prodat nemovitost?
Pomůžeme Vám!

Inzerát si prohlédlo 1 lidí

Prodejce

Karel Marek

Karel Marek

Hlídací pes

Chcete dostávat emailem podobné nabídky pronájmu obchodních prostor v Chebu?

Podobné nemovitosti


Nevyhovuje Vám typ nemovitosti? Podívejte se na jiné kategorie komerčních.


Vybrané články z našeho blogu