Pronájem bytu 3+kk, Ostrava, Hasičská, 75 m2 (ID: 4120702)

Hasičská, Ostrava, Hrabůvka

22 500 Kč /za měsíc Získejte výhodnou HYPOTÉKU
Prémioví partneři v Ostravě

Informace k bytu

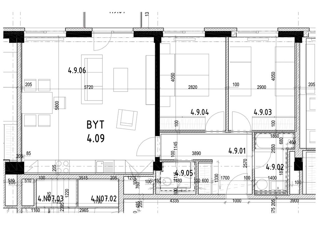
Ve výhradním zastoupení vlastníka nabízíme k pronájmu, v případě zájmu je možný i odkupu, byt o velikosti 3+kk o ploše 75 m2 na adrese Hasičská 46b situovaný v Bytovém komplexu REZIDENCE PARK HRABŮVKA v samotném srdci městské části Ostrava-Hrabůvka. Dům je výborně dopravně dostupný, přitom v klidné a bezpečné lokalitě. K dispozici jsou základní služby včetně obchodů, restaurace a sportovního vyžití. Milovníci přírody jsou za 30 minut na parkovišti pod Lysou horou. Jen 10 minut pěšky trvá cesta do Bělského lesa, které je ideálním místem na procházky, běh i cyklistiku. Nedaleko se také můžete napojit na cyklostezku vedoucí k řece Ostravice.
Byt se nachází v 4.NP s krásným výhledem do vnitrobloku, kde je odpočinková zóna obklopená množstvím zeleně, privátní park slouží rezidentům objektu primárně k rekreaci. Dům je bezbariérový.
Jednotku tvoří dvě samostatné místnosti, obývací pokoj s kuchyní s plně vybavenou kuchyňskou linkou, chodba, WC a koupelna se sanitární keramikou včetně baterií. V každé místnosti jsou přisazená stropní světla. K bytu přináleží skladová kóje na patře domu (3,06m2), balkón o rozloze 3,4 m2 a jedno parkovací stání.
Objekt je napojen na CZT a je v energetické třídě B.

Parametry bytu

Cena
22 500 Kč /za měsíc
Náklady na bydlení
4 500
Aktualizováno
28. 11. 2025
Adresa
Hasičská, Ostrava, Hrabůvka
Stavba
Smíšená
Stav objektu
Po rekonstrukci
Patro
4.
Vlastnictví
Osobní
Užitná plocha
75 m2
Balkon
Sklep
Parkování

Kontaktovat makléře

Máte zájem o tento byt?

Tímto, v souladu s nařízením Evropského parlamentu a Rady (EU) 2016/679, v platném znění, prohlašuji, že mi je alespoň 16 let a uděluji tak svůj souhlas se zpracováním zadaných údajů (jméno, telefon, e-mail, ip adresa) společnosti B3 Technology, s.r.o., IČ: 07330600, se sídlem Novostavby 126/23, 435 11 Lom (správce dat), za účelem předání dotazu z tohoto formuláře Vámi vybranému inzerentovi a zpětného kontaktování mé osoby. Osobní údaje bude správce zpracovávat manuálně i automaticky přímo prostřednictvím svých zaměstnanců. Informace předané tímto formulářem budou uloženy v databázi správce maximálně po dobu 10 let. Odvolání souhlasu s uložením a zpracováním poskytnutých dat lze e-mailem na info@videobydleni.cz. V případě podezření na neoprávněné použití Vámi poskytnutých údajů máte právo předat podnět k šetření Úřadu pro ochranu osobních údajů. Více informací
Chystáte se prodat nemovitost?
Pomůžeme Vám!

Inzerát si prohlédlo 0 lidí

Prodejce

Michaela Kaděrová

Michaela Kaděrová

Hlídací pes

Chcete dostávat emailem podobné nabídky pronájmu bytů 3+kk v Ostravě?

Podobné nemovitosti


Nevyhovuje Vám typ bytu? Podívejte se na jiné kategorie bytů.


Vybrané články z našeho blogu