Prodej bytu 2+1, Děčín - Děčín III-Staré Město, Rakovnická, 57 m2

Rakovnická, Děčín III-Staré Město

2 490 000 Kč /za nemovitost HYPOTÉKA od 11 129 Kč /za měsíc

(včetně provize, včetně právního servisu)

Prémioví partneři v Děčíně

Okna a dveře

Rekonstrukce

Zámečnické práce

Informace k bytu

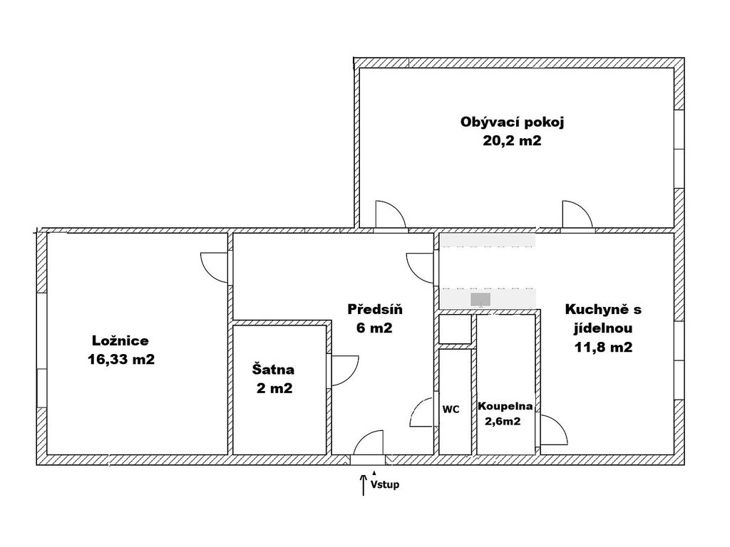
Nabízíme k prodeji světlý a prostorný byt o dispozici 2+1s celkovou výměrou cca 57 m2 v osobním vlastnictví, který se nachází ve 2. patře panelového domu bez výtahu s vlastní plynovou kotelnou, v ulici Rakovnická. Byt je v původním stavu. Pouze před cca rokem při rekonstrukci koupelny byl instalován nový sprchový kout a nové obklady. Velkou výhodou bytu jsou prostorné místnosti a šatna v předsíni, které nabízejí dostatek místa pro pohodlné bydlení. Součástí bytu je také komora v mezipatře a plechová kóje v přízemí. Dům je umístěn v dobře dostupné lokalitě s veškerou občanskou vybaveností, v docházkové vzdálenosti je školka, škola, pošta, Kaufland, Lidl, aquapark.

Parametry bytu

Cena
2 490 000 Kč /za nemovitost Spočítat hypotéku
Poznámka k ceně
včetně provize, včetně právního servisu
Aktualizováno
28. 11. 2025
Adresa
Rakovnická, Děčín III-Staré Město
ID
00281
Stavba
Panelová
Stav objektu
Dobrý
Patro
3.
Druh objektu
Samostatný
Lokalita objektu
Klidná část obce
Vlastnictví
Osobní
Užitná plocha
57 m2
Třída energetické náročnosti
G - Mimořádně nehospodárná
Výtah

Kontaktovat makléře

Realitní kancelář

BONUS REALITY

Osvobození 610/12, Litoměřice

Chystáte se prodat nemovitost?
Pomůžeme Vám!

Máte zájem o tento byt?

Tímto, v souladu s nařízením Evropského parlamentu a Rady (EU) 2016/679, v platném znění, prohlašuji, že mi je alespoň 16 let a uděluji tak svůj souhlas se zpracováním zadaných údajů (jméno, telefon, e-mail, ip adresa) společnosti B3 Technology, s.r.o., IČ: 07330600, se sídlem Novostavby 126/23, 435 11 Lom (správce dat), za účelem předání dotazu z tohoto formuláře Vámi vybranému inzerentovi a zpětného kontaktování mé osoby. Osobní údaje bude správce zpracovávat manuálně i automaticky přímo prostřednictvím svých zaměstnanců. Informace předané tímto formulářem budou uloženy v databázi správce maximálně po dobu 10 let. Odvolání souhlasu s uložením a zpracováním poskytnutých dat lze e-mailem na info@videobydleni.cz. V případě podezření na neoprávněné použití Vámi poskytnutých údajů máte právo předat podnět k šetření Úřadu pro ochranu osobních údajů. Více informací
Chystáte se prodat nemovitost?
Pomůžeme Vám!

Inzerát si prohlédlo 0 lidí

Prodejce

Alena Soldátková

Alena Soldátková

Hlídací pes

Chcete dostávat emailem podobné nabídky prodeje bytů 2+1 v Děčíně?

Podobné nemovitosti


Nevyhovuje Vám typ bytu? Podívejte se na jiné kategorie bytů.


Vybrané články z našeho blogu