Prodej rodinného domu, Citice - Hlavno, 200 m2 (ID: 4121257)

Citice, Hlavno

4 550 000 Kč /za nemovitost HYPOTÉKA od 20 336 Kč /za měsíc
Prémioví partneři v Citicích

Informace k domu

Prodej rodinného domu, 200 m², Citice

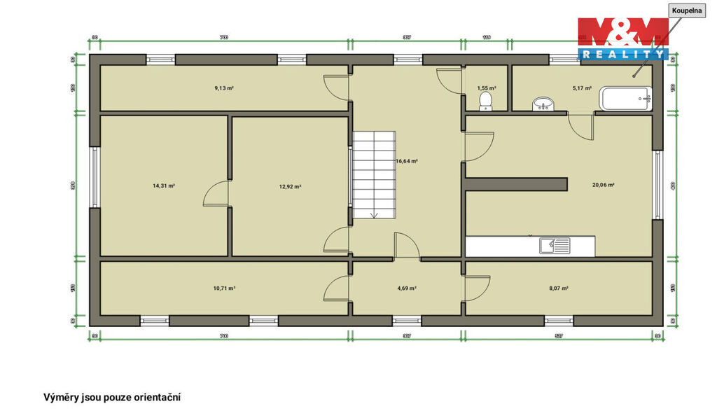
Nabízíme k prodeji samostatně stojící rodinný dům se saunou v klidné a vyhledávané části obce Hlavno. Dům o zastavěné ploše 133 m² je rozložen do tří nadzemních podlaží a nabízí dostatek prostoru pro rodinné bydlení i náročnější klienty.

Nemovitost má smíšenou konstrukci a je vhodná jak k bydlení, tak k úpravám dle vlastních představ. Velkou výhodou je pozemek o výměře 1 711 m², který nabízí možnosti zahrady, relaxační zóny i dalšího rozvoje. Dům je samostatně stojící a poskytuje dostatek prostoru kolem stavby.

Lokalita spojuje venkovskou atmosféru s dobrou dostupností do okolních měst. V okolí se nachází cyklostezky a pěší trasy, další jsou postupně budovány. Atraktivitu oblasti zvyšuje také blízkost Jezero Medard, které je v pohodlné dojezdové vzdálenosti. Nemovitost tak představuje zajímavou investiční příležitost s potenciálem růstu hodnoty.

Součástí prezentace je vizualizace.
Pro více informací a domluvení prohlídky kontaktujte makléře.

Parametry domu

Cena
4 550 000 Kč /za nemovitost Spočítat hypotéku
Aktualizováno
5. 1. 2026
Adresa
Citice, Hlavno
ID
927261
Stavba
Cihlová
Stav objektu
Před rekonstrukcí
Vybaveno
Částečně
Druh objektu
Samostatný
Lokalita objektu
Klidná část obce
Vlastnictví
Osobní
Užitná plocha
200 m2
Plocha pozemku
1711 m2

Kontaktovat makléře

Realitní kancelář

Logo M&M reality

M&M reality

ulice Krakovská 583/9, Praha

Chystáte se prodat nemovitost?
Pomůžeme Vám!

Máte zájem o tento dům?

Tímto, v souladu s nařízením Evropského parlamentu a Rady (EU) 2016/679, v platném znění, prohlašuji, že mi je alespoň 16 let a uděluji tak svůj souhlas se zpracováním zadaných údajů (jméno, telefon, e-mail, ip adresa) společnosti B3 Technology, s.r.o., IČ: 07330600, se sídlem Novostavby 126/23, 435 11 Lom (správce dat), za účelem předání dotazu z tohoto formuláře Vámi vybranému inzerentovi a zpětného kontaktování mé osoby. Osobní údaje bude správce zpracovávat manuálně i automaticky přímo prostřednictvím svých zaměstnanců. Informace předané tímto formulářem budou uloženy v databázi správce maximálně po dobu 10 let. Odvolání souhlasu s uložením a zpracováním poskytnutých dat lze e-mailem na info@videobydleni.cz. V případě podezření na neoprávněné použití Vámi poskytnutých údajů máte právo předat podnět k šetření Úřadu pro ochranu osobních údajů. Více informací
Chystáte se prodat nemovitost?
Pomůžeme Vám!

Inzerát si prohlédlo 6 lidí

Prodejce

Daniel Rédl

Daniel Rédl

Hlídací pes

Chcete dostávat emailem podobné nabídky prodeje rodinných domů v Citicích?

Podobné nemovitosti


Nevyhovuje Vám typ domu? Podívejte se na jiné kategorie domů.


Vybrané články z našeho blogu