Pronájem bytu 2+kk, Kladno, Ke křížku, 54 m2 (ID: 4121297)

Ke Křížku, Kladno, Dubí

15 900 Kč /za měsíc Získejte výhodnou HYPOTÉKU

(+ zálohy na služby 3000 kč + elektřina (800 kč), vratná kauce 18900 kč, provize 15900 kč + DPH)

Prémioví partneři v Kladně

Informace k bytu

K nastěhování ihned.
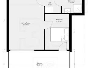
Nabízíme k pronájmu moderní byt o dispozici 2+kk o ploše 39 m², který se nachází v ulici U Křížku v Kladně. Byt je umístěn v posledním patře nového developerského projektu dokončeného v roce 2025. Budova je zateplená.

K bytu náleží parkovací stání a sklep. V domě dále najdeme kočárkárnu.

Byt je nabízen nevybavený, součástí je však moderní kuchyňská linka s vestavěnými spotřebiči – myčka, trouba, mikrovlnná trouba, digestoř a lednice s mrazákem. V předsíni je k dispozici vestavěná šatní skříň, která poskytuje dostatek úložného prostoru.

Interiér bytu je proveden ve vysokém standardu – kvalitní vinylová podlaha, velká okna s výbornou tepelnou i zvukovou izolací a moderní kuchyň v neutrálním designu.

Z obývacího pokoje je vstup na terasou o výměře 15 m², která nabízí příjemný výhled a dostatek soukromí.

Byt se nachází v nové, klidné lokalitě s dobrou dopravní dostupností a v docházkové vzdálenosti najdete obchody, služby i zastávku MHD.

Měsíční nájem - 15900 Kč, záloha za služby spojené s užíváním bytu 3000 Kč + elektřina, kauce 18900 kč, provize 15900 kč + dph.



Velkou výhodou pro potenciální nájemce je, že byt je v profesionální správě společnosti Bohemian Estates, jenž správu pro majitele tohoto bytu vykonává. Nájemci je k dispozici kontaktní osoba, která obratem řeší veškeré záležitosti s nájmem spojené (pravidelná údržba i havarijní zásahy vlastními techniky, vyúčtování, dodatky, apod.). Nájemci je tak zajištěno bezproblémové užívání bytu s kompletním servisem.

Parametry bytu

Cena
15 900 Kč /za měsíc
Poznámka k ceně
+ zálohy na služby 3000 kč + elektřina (800 kč), vratná kauce 18900 kč, provize 15900 kč + DPH
Aktualizováno
28. 11. 2025
Adresa
Ke Křížku, Kladno, Dubí
ID
N08601
Stavba
Cihlová
Stav objektu
Novostavba
Patro
4. z 4
Vybaveno
Ne
Lokalita objektu
Klidná část obce
Vlastnictví
Osobní
Užitná plocha
54 m2
Třída energetické náročnosti
B - Velmi úsporná
Ukazatel energetické náročnosti
80 kWh/m2 za rok
Elektřina
230V
Komunikace
Asfaltová
Telekomunikace
Internet
Doprava
Vlak, Dálnice, Silnice, MHD, Autobus
Voda
Vodovod
Topné těleso
Radiátory
Zdroj topení
Ústřední dálkové
Garáž
Terasa
Výtah
Bezbarierový přístup

Kontaktovat makléře

Máte zájem o tento byt?

Tímto, v souladu s nařízením Evropského parlamentu a Rady (EU) 2016/679, v platném znění, prohlašuji, že mi je alespoň 16 let a uděluji tak svůj souhlas se zpracováním zadaných údajů (jméno, telefon, e-mail, ip adresa) společnosti B3 Technology, s.r.o., IČ: 07330600, se sídlem Novostavby 126/23, 435 11 Lom (správce dat), za účelem předání dotazu z tohoto formuláře Vámi vybranému inzerentovi a zpětného kontaktování mé osoby. Osobní údaje bude správce zpracovávat manuálně i automaticky přímo prostřednictvím svých zaměstnanců. Informace předané tímto formulářem budou uloženy v databázi správce maximálně po dobu 10 let. Odvolání souhlasu s uložením a zpracováním poskytnutých dat lze e-mailem na info@videobydleni.cz. V případě podezření na neoprávněné použití Vámi poskytnutých údajů máte právo předat podnět k šetření Úřadu pro ochranu osobních údajů. Více informací
Chystáte se prodat nemovitost?
Pomůžeme Vám!

Inzerát si prohlédlo 0 lidí

Prodejce

Lukáš Kubát

Lukáš Kubát

Hlídací pes

Chcete dostávat emailem podobné nabídky pronájmu bytů 2+kk v Kladně?

Podobné nemovitosti


Nevyhovuje Vám typ bytu? Podívejte se na jiné kategorie bytů.


Vybrané články z našeho blogu