Prodej bytu 3+kk, Plzeň, V Zahrádkách, 80 m2 (ID: 4121817)

V Zahrádkách, Plzeň

Cena na vyžádání /za nemovitost Získejte výhodnou HYPOTÉKU

(Info o ceně v RK)

Prémioví partneři v Plzni

Podlahy

Stěhovací služby

Informace k bytu

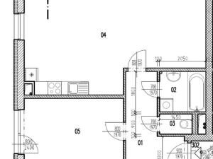
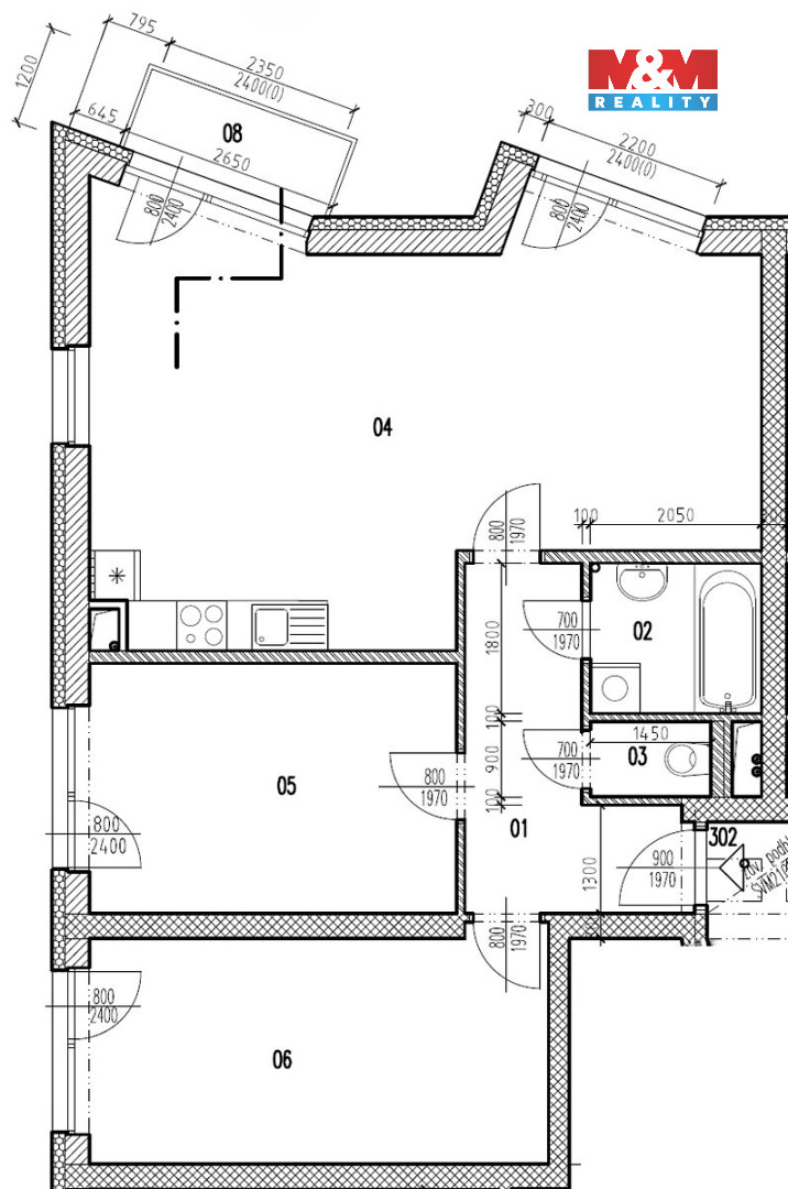
Prodej bytu 3+kk, 80 m², Plzeň, ul. V Zahrádkách

Moderní byt 3+kk s balkonem a garážovým stáním v klidné části Doubravky.

Nabízíme k prodeji prostorný byt 3+kk (80 m²) s balkonem (3 m²) a vlastním garážovým stáním v podzemní garáži. Byt se nachází ve 3. podlaží cihlového domu v oblíbené a klidné lokalitě Doubravka, která je ideální pro rodinné bydlení.

Interiér bytu je ve velmi dobrém stavu a nabízí světlý obývací prostor s přímým vstupem na balkon. Kuchyňský kout je prakticky řešen a plynule navazuje na obývací část. Dále byt disponuje dvěma samostatnými pokoji, oddělenou toaletou a koupelnou s vanou.

Lokalita nabízí veškerou občanskou vybavenost – v blízkosti se nachází školy, školky, obchody, zastávky MHD i zeleň pro volnočasové aktivity.

Neváhejte nás kontaktovat pro více informací nebo domluvení prohlídky této atraktivní nemovitosti.

Parametry bytu

Cena
Cena na vyžádání Spočítat hypotéku
Poznámka k ceně
Info o ceně v RK
Aktualizováno
25. 12. 2025
Adresa
V Zahrádkách, Plzeň
ID
924663
Stavba
Cihlová
Stav objektu
Dobrý
Vybaveno
Ne
Lokalita objektu
Klidná část obce
Vlastnictví
Osobní
Užitná plocha
80 m2
Balkon

Kontaktovat makléře

Realitní kancelář

Logo M&M reality

M&M reality

ulice Krakovská 583/9, Praha

Chystáte se prodat nemovitost?
Pomůžeme Vám!

Máte zájem o tento byt?

Tímto, v souladu s nařízením Evropského parlamentu a Rady (EU) 2016/679, v platném znění, prohlašuji, že mi je alespoň 16 let a uděluji tak svůj souhlas se zpracováním zadaných údajů (jméno, telefon, e-mail, ip adresa) společnosti B3 Technology, s.r.o., IČ: 07330600, se sídlem Novostavby 126/23, 435 11 Lom (správce dat), za účelem předání dotazu z tohoto formuláře Vámi vybranému inzerentovi a zpětného kontaktování mé osoby. Osobní údaje bude správce zpracovávat manuálně i automaticky přímo prostřednictvím svých zaměstnanců. Informace předané tímto formulářem budou uloženy v databázi správce maximálně po dobu 10 let. Odvolání souhlasu s uložením a zpracováním poskytnutých dat lze e-mailem na info@videobydleni.cz. V případě podezření na neoprávněné použití Vámi poskytnutých údajů máte právo předat podnět k šetření Úřadu pro ochranu osobních údajů. Více informací
Chystáte se prodat nemovitost?
Pomůžeme Vám!

Inzerát si prohlédlo 10 lidí

Prodejce

Kateřina Menšíková

Kateřina Menšíková

Hlídací pes

Chcete dostávat emailem podobné nabídky prodeje bytů 3+kk v Plzni?

Podobné nemovitosti


Nevyhovuje Vám typ bytu? Podívejte se na jiné kategorie bytů.


Vybrané články z našeho blogu