Prodej rodinného domu, Letovice, P. Františka Krchňáka, 225 m2

P. Františka Krchňáka, Letovice

15 000 000 Kč HYPOTÉKA od 67 041 Kč /za měsíc

(včetně provize RK)

Prémioví partneři v Letovicích

Informace k domu

Rodinný dům se zahradou Letovice

Rádi bychom Vám představili tento jedinečný rodinný dům k prodeji. Nemovitost se nachází v klidné části obce Letovice, což poskytuje ideální prostředí pro rodinné bydlení.

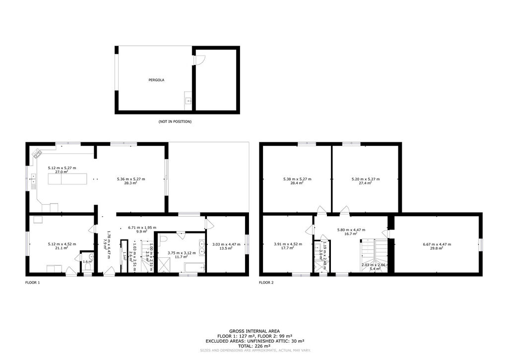
Samostatně stojící dům o velikosti 5+kk a pracovnou nabízí velkorysý prostor pro komfortní a moderní bydlení. Velikost užitné plochy činí 225 m² a celková podlahová plocha je 289 m². Velký pozemek o rozloze 803 m² poskytuje dostatek soukromí a místa pro odpočinek a rekreaci.

Dispozice domu:
1. NP
zádveří, chodba, ze které můžete vstoupit do obývacího pokoje s kuchyní, ložnice , koupelna s WC, pracovna a další WC

Z obývacího pokoje je vstup na velkou terasu.

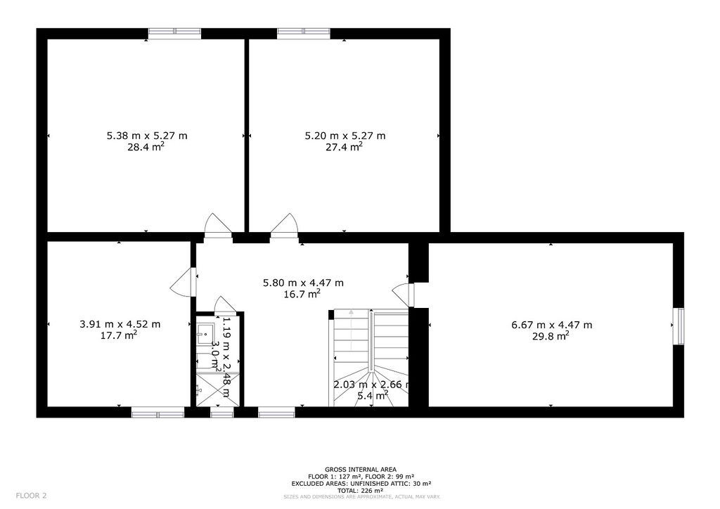
2. NP
chodba, ze které je vstup do 3 samostatných pokojů, koupelna s WC a půda, která je připravená pro vybudování dalšího pokoje.

Při stavbě domu, který je cihlový, bylo použito nadstandartních materiálů, jako například mramorové vnitřní i venkovní parapety, kvalitní podlahové krytiny a obklady. Vytápění je řešeno podlahovými teplovodními rozvody napojenými na elektrický kotel. Vysoké efektivita a úspornost je dosažena díky vynikajícímu zateplení nemovitosti.
Další úspora při provozu domu je zajištěna například využíváním užitkové vody z vrtané studny. Nemovitost je samozřejmě napojena i na obecní vodovod a dále na kanalizaci.

Na pozemku před domem je zbudováno vydlážděné kryté parkovací stání.
Část pozemku je koncipována jako okrasná plocha, část za domem je travnatá s ovocnými stromy. Velká terasa nabízí majitelům dostatek prostoru pro trávení volného času s rodinou a přáteli.
Na zahradě je také zbudováno kryté posezení se zahradním domkem.

Město Letovice disponuje veškerou občanskou vybaveností. Má výbornou dojezdovou vzdálenost jak do Boskovic, Blanska nebo Brna, tak i do Svitav nebo Moravské Třebové.
Letovice nabízí svým občanům vyžití jak kulturní, tak sportovní. Jsou zde tenisové kurty, fotbalový klub, sportovní hala, kde sportují místní volejbalisté, florbalisté a další. Milovníky vodních sportů jistě nadchne přehrada Křetínka, pro cyklisty je zbudováno mnoho tras a stezek.

Pro více informací o této nemovitosti nebo sjednání prohlídky nás prosím kontaktujte.
Těšíme se na prohlídku.

Parametry domu

Cena
15 000 000 Kč Spočítat hypotéku
Poznámka k ceně
včetně provize RK
Aktualizováno
30. 11. 2025
Adresa
P. Františka Krchňáka, Letovice
ID
20250129
Stavba
Cihlová
Vybaveno
Ano
Druh objektu
Samostatný
Lokalita objektu
Klidná část obce
Vlastnictví
Osobní
Užitná plocha
225 m2
Plocha pozemku
803 m2
Třída energetické náročnosti
G - Mimořádně nehospodárná

Kontaktovat makléře

Realitní kancelář

Reality Janků

Masarykovo náměstí 1097/3, Letovice

Chystáte se prodat nemovitost?
Pomůžeme Vám!

Máte zájem o tento dům?

Tímto, v souladu s nařízením Evropského parlamentu a Rady (EU) 2016/679, v platném znění, prohlašuji, že mi je alespoň 16 let a uděluji tak svůj souhlas se zpracováním zadaných údajů (jméno, telefon, e-mail, ip adresa) společnosti B3 Technology, s.r.o., IČ: 07330600, se sídlem Novostavby 126/23, 435 11 Lom (správce dat), za účelem předání dotazu z tohoto formuláře Vámi vybranému inzerentovi a zpětného kontaktování mé osoby. Osobní údaje bude správce zpracovávat manuálně i automaticky přímo prostřednictvím svých zaměstnanců. Informace předané tímto formulářem budou uloženy v databázi správce maximálně po dobu 10 let. Odvolání souhlasu s uložením a zpracováním poskytnutých dat lze e-mailem na info@videobydleni.cz. V případě podezření na neoprávněné použití Vámi poskytnutých údajů máte právo předat podnět k šetření Úřadu pro ochranu osobních údajů. Více informací
Chystáte se prodat nemovitost?
Pomůžeme Vám!

Inzerát si prohlédlo 1 lidí

Prodejce

Reality Janků

Reality Janků

Hlídací pes

Chcete dostávat emailem podobné nabídky prodeje rodinných domů v Letovicích?

Top nabídky

Podobné nemovitosti


Nevyhovuje Vám typ domu? Podívejte se na jiné kategorie domů.


Vybrané články z našeho blogu