Prodej bytu 2+kk, Liberec, Šimáčkova, 78 m2

Šimáčkova, Liberec XII-Staré Pavlovice

4 495 000 Kč /za nemovitost HYPOTÉKA od 20 090 Kč /za měsíc

(včetně právního servisu a provize RK)

Prémioví partneři v Liberci

Rekonstrukce

Úklidové služby

Informace k bytu

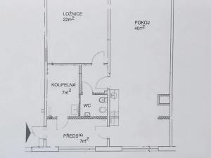
Nabízíme k prodeji atypický byt o celkové ploše 78,3 m² v Liberci, části Staré Pavlovice, ulice Šimáčkova.

Byt se nachází v přízemí panelového domu a je ideální volbou pro rodiny hledající větší, prakticky řešené a dobře dostupné bydlení v místě s veškerou občanskou vybaveností, přesto v klidnější zóně, ale i pro seniory i osoby s omezenou pohyblivostí, kteří ocení bezbariérový přístup bez použití schodů či výtahu.

Hlavní obytná místnost, o rozloze 40 m², nabízí díky své velikosti možnost jednoduchého rozdělení na dva pokoje. Součástí nabídky je vizualizace této možné úpravy, při které vznikne dětský pokoj a obývací pokoj s kuchyňským koutem. Byt tak lze dispozičně upravit z 2+kk na plnohodnotné 3+kk. Okna obývacího pokoje i ložnice jsou orientovaná na jih, což zajišťuje dostatek světla a sluníčka.

Byt zaujme také neobvykle prostornou předsíní s dostatkem místa pro vestavnou skříň, kočárek nebo kolo, nadstandardně prostornou koupelnou se sprchovým koutem (120 cm), kam lze pohodlně umístit také vanu či přebalovací pult. Samostatné a rovněž prostorné WC s bidetem zvyšuje celkový komfort bydlení.

Byt je v osobním vlastnictví. Dům prošel kompletní revitalizací – je zateplený, má novou fasádu, plastová okna s dvojskly, zateplenou střechu a nové vstupní dveře. Energetická náročnost budovy je třídy B – velmi úsporná. Náklady na vytápění činí přibližně 2100 Kč měsíčně. V bytě jsou nové elektrorozvody i stoupačky.

K bytu nenáleží balkon ani sklep. Parkovacích míst je dostatek před domem i za domem. Byt je připravený k okamžitému nastěhování.

Byt je situován v místě, kde je vše blízko - zastávka MHD 140 m, základní škola 600 m, školka 400 m, Kaufland, Lidl, Autokemp Pavlovice, rychlé napojení na dálnici, kousek od Jizerských hor, kousek od přírody.

V případě zájmu nebo pro domluvení prohlídky kontaktujte, prosím, makléře. Těším se na Vás.

Parametry bytu

Cena
4 495 000 Kč /za nemovitost Spočítat hypotéku
Poznámka k ceně
včetně právního servisu a provize RK
Aktualizováno
3. 3. 2026
Adresa
Šimáčkova, Liberec XII-Staré Pavlovice
ID
N79
Stavba
Panelová
Stav objektu
Velmi dobrý
Patro
1. z 5
Vybaveno
Ne
Lokalita objektu
Sídliště
Vlastnictví
Osobní
Užitná plocha
78 m2
Podlahová plocha
78 m2
Třída energetické náročnosti
B - Velmi úsporná
Elektřina
230V
Topení
Ústřední dálkové
Doprava
Dálnice, MHD
Voda
Vodovod
Výtah
Bezbarierový přístup

Kontaktovat makléře

Máte zájem o tento byt?

Tímto, v souladu s nařízením Evropského parlamentu a Rady (EU) 2016/679, v platném znění, prohlašuji, že mi je alespoň 16 let a uděluji tak svůj souhlas se zpracováním zadaných údajů (jméno, telefon, e-mail, ip adresa) společnosti B3 Technology, s.r.o., IČ: 07330600, se sídlem Novostavby 126/23, 435 11 Lom (správce dat), za účelem předání dotazu z tohoto formuláře Vámi vybranému inzerentovi a zpětného kontaktování mé osoby. Osobní údaje bude správce zpracovávat manuálně i automaticky přímo prostřednictvím svých zaměstnanců. Informace předané tímto formulářem budou uloženy v databázi správce maximálně po dobu 10 let. Odvolání souhlasu s uložením a zpracováním poskytnutých dat lze e-mailem na info@videobydleni.cz. V případě podezření na neoprávněné použití Vámi poskytnutých údajů máte právo předat podnět k šetření Úřadu pro ochranu osobních údajů. Více informací
Chystáte se prodat nemovitost?
Pomůžeme Vám!

Inzerát si prohlédlo 107 lidí

Prodejce

Marie Holubová

Marie Holubová

Hlídací pes

Chcete dostávat emailem podobné nabídky prodeje bytů 2+kk v Liberci?

Podobné nemovitosti


Nevyhovuje Vám typ bytu? Podívejte se na jiné kategorie bytů.


Vybrané články z našeho blogu