Prodej rodinného domu, Křenov, 166 m2

Křenov

2 400 000 Kč /za nemovitost HYPOTÉKA od 10 727 Kč /za měsíc

(včetně poplatků, včetně provize, včetně právního servisu)

Prémioví partneři v Křenově

Informace k domu

Nabízím k prodeji rodinný dům typu OKAL z roku 1983, který kombinuje zděné, plnohodnotné přízemí a montovanou konstrukci v patře. Nemovitost se nachází v obci Křenov, v klidné lokalitě se školou a školkou, a nabízí mimořádně flexibilní dispozice vhodné jak pro rodinné bydlení, tak pro investiční záměr.

Hlavní přednosti domu

- Zděné a suché přízemí – nejcennější část stavby, připravená pro vznik plnohodnotné obytné jednotky.
- Možnost 2–4 bytových jednotek – ideální pro investory hledající výnosovou nemovitost.
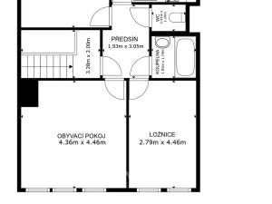
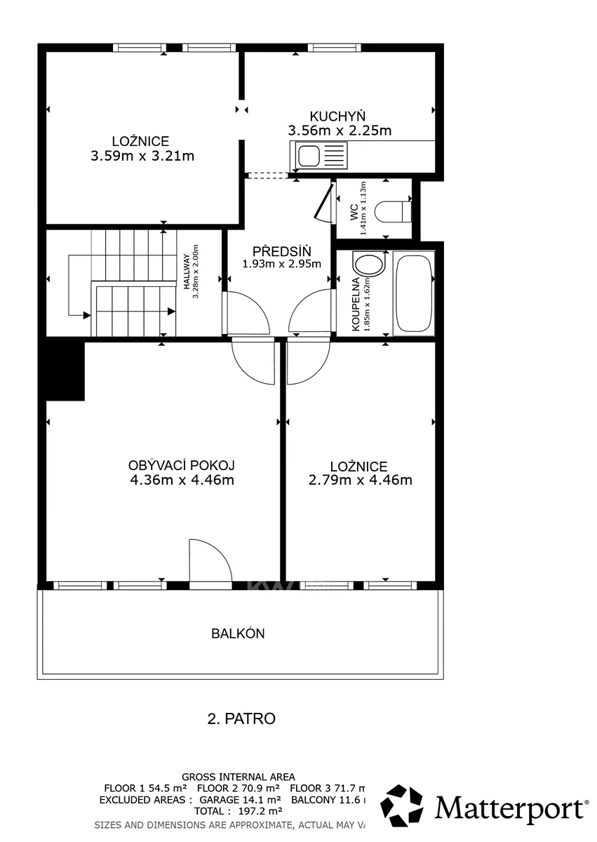
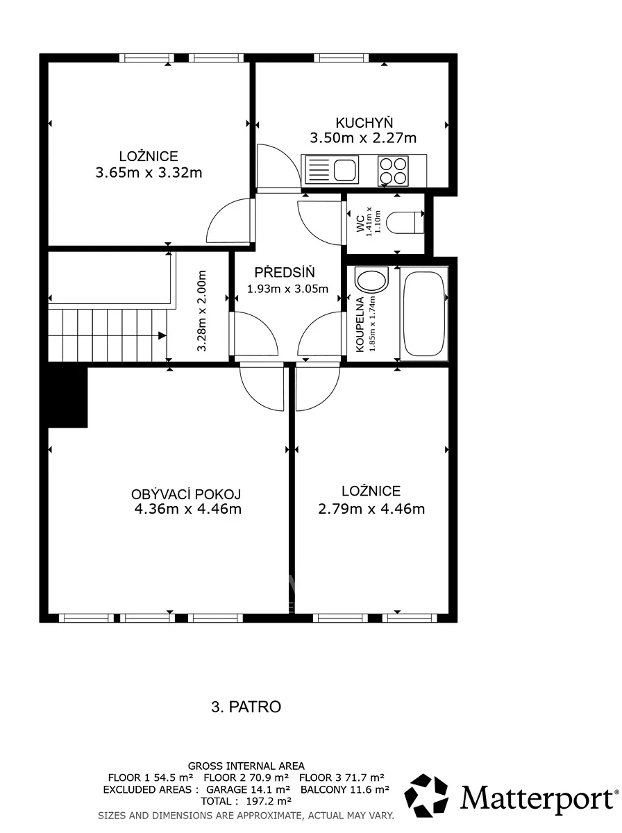
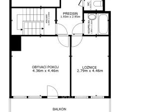
- Velkorysá dispozice – v 1. i 2. patře lze vytvořit 2 menší jednotky (1+1 a garsonka) nebo samostatné 3+1; přízemí umožňuje přidat malý byt. Nebo lze spojit dům do jednoho prostorného rodinného bydlení 5+kk–6+kk.
- Rok výstavby 1983 – novější generace OKAL domů s lepší konstrukcí a jednodušší rekonstrukcí.
- Stav připravený k modernizaci – dům je vyklizený a vhodný k okamžitým stavebním úpravám.
- Možnost dotačních programů 2026 – při modernizaci obvodového pláště, zateplení nebo výměně topného systému.

Technické informace

- přízemí zděné, suché, s dobrým statickým stavem
- vnitřní schodiště dřevěné
- garáž 
- obvodová konstrukce OKAL, vhodná k modernizaci a zateplení
- instalace určené k rekonstrukci
- pozemek tvoří zastavěná plocha domu

Možnosti využití

1) Investiční záměr
Vytvoření 3–4 bytových jednotek se stabilní poptávkou po nájemním bydlení v regionu.
Očekávaný roční výnos po rekonstrukci: 240–350 tis. Kč/rok (dle počtu jednotek a jejich standardu).

2) Velký rodinný dům
Po sloučení obou pater lze realizovat moderní dispozici 5+kk–6+kk:
– velká kuchyně s obývacím prostorem a velkým balkonem, pokojem pro hosty, pracovnou, koupelnou se sprchou v 1. patře
– 3–4 ložnice a prostorná hlavní koupelna s vanou ve 2. patře.

Lokalita
Křenov je klidná, bezpečná obec s výbornou dostupností Svitav a Moravské Třebové.
V místě je škola, školka, základní občanská vybavenost, dobré autobusové spojení a krásná příroda.

Více najdete na webu makléře. 

Majitel si vyhrazuje právo prodat nemovitost nejvýhodnější nabídce.

Neváhejte a volejte teď.

Parametry domu

Cena
2 400 000 Kč /za nemovitost Spočítat hypotéku
Poznámka k ceně
včetně poplatků, včetně provize, včetně právního servisu
Aktualizováno
1. 12. 2025
Adresa
Křenov
ID
28829
Stavba
Montovaná
Stav objektu
Před rekonstrukcí
Vybaveno
Ne
Druh objektu
Řadový
Lokalita objektu
Okraj obce
Užitná plocha
166 m2
Zastavěná plocha
81 m2
Plocha pozemku
81 m2
Třída energetické náročnosti
G - Mimořádně nehospodárná
Elektřina
230V
Garáž
Sklep
Výtah

Kontaktovat makléře

Máte zájem o tento dům?

Tímto, v souladu s nařízením Evropského parlamentu a Rady (EU) 2016/679, v platném znění, prohlašuji, že mi je alespoň 16 let a uděluji tak svůj souhlas se zpracováním zadaných údajů (jméno, telefon, e-mail, ip adresa) společnosti B3 Technology, s.r.o., IČ: 07330600, se sídlem Novostavby 126/23, 435 11 Lom (správce dat), za účelem předání dotazu z tohoto formuláře Vámi vybranému inzerentovi a zpětného kontaktování mé osoby. Osobní údaje bude správce zpracovávat manuálně i automaticky přímo prostřednictvím svých zaměstnanců. Informace předané tímto formulářem budou uloženy v databázi správce maximálně po dobu 10 let. Odvolání souhlasu s uložením a zpracováním poskytnutých dat lze e-mailem na info@videobydleni.cz. V případě podezření na neoprávněné použití Vámi poskytnutých údajů máte právo předat podnět k šetření Úřadu pro ochranu osobních údajů. Více informací
Chystáte se prodat nemovitost?
Pomůžeme Vám!

Inzerát si prohlédlo 0 lidí

Prodejce

Ing. Jana Onderková

Ing. Jana Onderková

Hlídací pes

Chcete dostávat emailem podobné nabídky prodeje rodinných domů v Křenově?

Top nabídky

Podobné nemovitosti


Nevyhovuje Vám typ domu? Podívejte se na jiné kategorie domů.


Vybrané články z našeho blogu