Prodej bytu 2+kk, Praha - Břevnov, Pod Drinopolem, 56 m2 (ID: 4122969)

Pod Drinopolem, Praha, Břevnov

11 220 000 Kč /za nemovitost HYPOTÉKA od 50 147 Kč /za měsíc

(včetně DPH)

Prémioví partneři v Praze 6

Stěhovací služby

Výkup a prodej starého nábytku

Informace k bytu

Kompletně vybavený byt o dispozici 2+kk je součástí rezidenčního projektu Pod Drinopolem, který vzniká kompletní rekonstrukcí bytového domu v jedné z nejklidnějších částí Prahy 6. Lokalita uprostřed vilové čtvrti nabízí kombinaci zeleně, soukromí a výborné dostupnosti do centra. Součástí domu je soukromá sauna a posilovna.

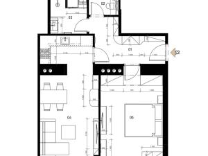
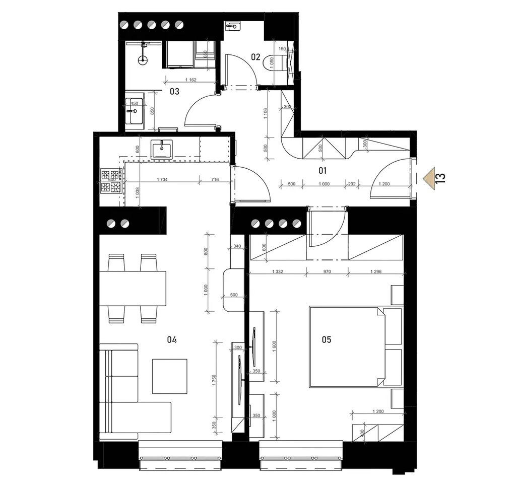
Půdorys bytu v 1. podlaží a o a podlahové ploše 55,7 m² zahrnuje obývací pokoj, kuchyni, ložnici, vstupní chodbu, koupelnu se sprchovým koutem a samostatnou toaletou. K jednotce náleží také sklepní kóje. Byt se prodává kompletně vybavený nábytkem na míru a po dokončení rekonstrukce domu je vhodný k okamžitému nastěhování.

Dům prochází celkovou rekonstrukcí, jejíž součástí je nový výtah, vstupní portály s bezpečnostními dveřmi a kvalitně provedené společné prostory s keramickou dlažbou a dřevěnými prvky. Obyvatelům bude k dispozici relaxační zóna se saunou a fitness, kolárna, prádelna a upravený vnitroblok s klidovou částí a posezením. Rezidence se nachází v tiché ulici Pod Drinopolem, obklopené zelení a rezidenční zástavbou. V docházkové vzdálenosti je veškerá občanská vybavenost včetně obchodů, kaváren, škol i zastávek MHD. Lokalita nabízí pohodové zázemí s rychlým spojením do centra i na letiště.

Parametry bytu

Cena
11 220 000 Kč /za nemovitost Spočítat hypotéku
Poznámka k ceně
včetně DPH
Aktualizováno
11. 3. 2026
Adresa
Pod Drinopolem, Praha, Břevnov
ID
DRI13
Stavba
Cihlová
Stav objektu
Po rekonstrukci
Patro
1. z 7
Vybaveno
Ano
Lokalita objektu
Klidná část obce
Vlastnictví
Osobní
Užitná plocha
56 m2
Zastavěná plocha
63 m2
Podlahová plocha
63 m2
Třída energetické náročnosti
F - Velmi nehospodárná
Ukazatel energetické náročnosti
277 kWh/m2 za rok
Doprava
Vlak, Dálnice, Silnice, MHD
Sklep
Výtah

Kontaktovat makléře

Realitní kancelář

Logo PSN s.r.o.

PSN s.r.o.

Seifertova 823/9, Praha, Žižkov

Chystáte se prodat nemovitost?
Pomůžeme Vám!

Máte zájem o tento byt?

Tímto, v souladu s nařízením Evropského parlamentu a Rady (EU) 2016/679, v platném znění, prohlašuji, že mi je alespoň 16 let a uděluji tak svůj souhlas se zpracováním zadaných údajů (jméno, telefon, e-mail, ip adresa) společnosti B3 Technology, s.r.o., IČ: 07330600, se sídlem Novostavby 126/23, 435 11 Lom (správce dat), za účelem předání dotazu z tohoto formuláře Vámi vybranému inzerentovi a zpětného kontaktování mé osoby. Osobní údaje bude správce zpracovávat manuálně i automaticky přímo prostřednictvím svých zaměstnanců. Informace předané tímto formulářem budou uloženy v databázi správce maximálně po dobu 10 let. Odvolání souhlasu s uložením a zpracováním poskytnutých dat lze e-mailem na info@videobydleni.cz. V případě podezření na neoprávněné použití Vámi poskytnutých údajů máte právo předat podnět k šetření Úřadu pro ochranu osobních údajů. Více informací
Chystáte se prodat nemovitost?
Pomůžeme Vám!

Inzerát si prohlédlo 61 lidí

Prodejce

Simon Lukavský

Simon Lukavský

Hlídací pes

Chcete dostávat emailem podobné nabídky prodeje bytů 2+kk v Praze 6?

Podobné nemovitosti


Nevyhovuje Vám typ bytu? Podívejte se na jiné kategorie bytů.


Vybrané články z našeho blogu