Prodej obchodního prostoru, Milovice - Benátecká Vrutice, 1080 m2

Milovice, Benátecká Vrutice

10 990 000 Kč /za nemovitost HYPOTÉKA od 49 119 Kč /za měsíc

(pro více informací kontaktujte makléře)

Prémioví partneři v Milovicích

Informace k nemovitosti

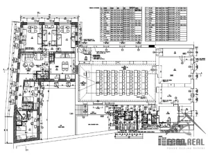
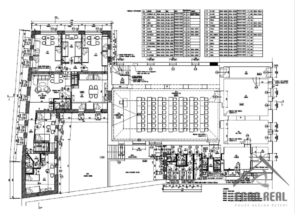
Společnost ECON REAL s.r.o. si Vám dovoluje nabídnout prodej multifunkční nemovitosti v Benátecké Vrutici, Milovice, v docházkové vzdálenosti od zábavního parku Mirakulum, která nabízí široké možnosti využití. Původní záměr majitelů, dle vydaného stavebního povolení, bylo vytvořit svatebně - kongresové centrum s restaurací, obchodem (či výrobnou) a s ubytovacími kapacitami (apartmány i samostatné pokoje), neboť podobná nemovitost (určité centrum služeb) se v okolí nikde nenachází. Objekt prošel v minulých letech úpravami včetně kompletní elektroinstalace, vodoinstalace, kanalizační přípojky, instalace klimatizací (teplo-chlad), úpravou vnitřních stěn a podlah, vybudováním sanitárního zázemí, výměnou oken i vytvořením ubytovacích místností půdní vestavbou na obou stranách objektu. Rekonstrukce není dokončena, nyní zakonzervována a nemovitost čeká na svého nového majitele, který bude mít vizi přizpůsobit si stavbu ke svým komerčním zájmům.
Dominantou vnitřních prostor objektu je prostorný, gotický sál s pódiem, jako stvořený pro organizování svateb, meetingů, kongresů, plesů i společenských akcí. Součástí objektu je i gastro příprava v zázemí tak, aby byl objekt soběstačný, možnost tedy vybudovat restauraci s kuchyní s kapacitou až 100 lidí. Ubytovací části jsou řešeny jak v pravém traktu v přízemí, tak vestavbou v podkroví (třináct čtyřlůžkových a dva trojlůžkové pokoje) s možností až 58 lůžek a s výstupem na terasu. V přízemí, v pravém traktu objektu, se nachází bezbariérově dostupný obchodní prostor s velkými výlohami, využitelný jako prodejna, výrobna, pekárna apod. Vnitroblok skýtá možnost realizace chráněného posezení nebo parkovacích míst. Celková užitná plocha objektu činí 1080 m2. Objekt je napojen na inženýrské sítě (voda, elektrika, kanalizace). Plyn je k dispozici, není však aktuálně napojen do domu. Vedle objektu nevyužívaná studna na pozemku obce. Parkování je možné přímo u nemovitosti na obecních pozemcích, stavba se nachází na pozemku vlastním. Nemovitosti má výhodnou, strategickou polohu - nachází se cca 20 km od Mladé Boleslavi, 30 km od Prahy, 6 km od Benátek nad Jizerou, 11 km od Nymburka....
Technické parametry:
1.PP - sklep
1.NP - gotický sál, gastro provoz s přípravnou, sociální zázemí, obchod se zázemím a vstupem pro zaměstnance, vstup do sklepa, byt správce, vnitroblok
Podkroví - ubytovací kapacity na obou stranách objektu, krytá terasa
Stavební pozemek: 618 m²
Zastavěná plocha: 526,92 m²
IS: obecní vodovod, elektro, obecní kanalizace, plyn
Klimatizační jednotky
Rekonstrukce není dokončená.

Parametry nemovitosti

Cena
10 990 000 Kč /za nemovitost Spočítat hypotéku
Poznámka k ceně
pro více informací kontaktujte makléře
Aktualizováno
2. 12. 2025
Adresa
Milovice, Benátecká Vrutice
ID
2025044
Stavba
Cihlová
Stav objektu
V rekonstrukci
Typ objektu
Patrový
Lokalita objektu
Centrum obce
Užitná plocha
1080 m2
Zastavěná plocha
527 m2
Podlahová plocha
618 m2
Třída energetické náročnosti
G - Mimořádně nehospodárná
Elektřina
230V, 400V
Plyn
Plynovod
Odpad
Veřejná kanalizace
Topení
Lokální elektrické
Komunikace
Dlážděná, Asfaltová
Doprava
Dálnice, Silnice, MHD, Autobus
Voda
Místní zdroj vody
Bezbarierový přístup
Převod do OV

Kontaktovat makléře

Máte zájem o tuto nemovistost?

Tímto, v souladu s nařízením Evropského parlamentu a Rady (EU) 2016/679, v platném znění, prohlašuji, že mi je alespoň 16 let a uděluji tak svůj souhlas se zpracováním zadaných údajů (jméno, telefon, e-mail, ip adresa) společnosti B3 Technology, s.r.o., IČ: 07330600, se sídlem Novostavby 126/23, 435 11 Lom (správce dat), za účelem předání dotazu z tohoto formuláře Vámi vybranému inzerentovi a zpětného kontaktování mé osoby. Osobní údaje bude správce zpracovávat manuálně i automaticky přímo prostřednictvím svých zaměstnanců. Informace předané tímto formulářem budou uloženy v databázi správce maximálně po dobu 10 let. Odvolání souhlasu s uložením a zpracováním poskytnutých dat lze e-mailem na info@videobydleni.cz. V případě podezření na neoprávněné použití Vámi poskytnutých údajů máte právo předat podnět k šetření Úřadu pro ochranu osobních údajů. Více informací
Chystáte se prodat nemovitost?
Pomůžeme Vám!

Inzerát si prohlédlo 0 lidí

Prodejce

Ing. Dana Hunčovská

Ing. Dana Hunčovská

Hlídací pes

Chcete dostávat emailem podobné nabídky prodeje obchodních prostor v Milovicích (okr. Nymburk)?

Podobné nemovitosti


Nevyhovuje Vám typ nemovitosti? Podívejte se na jiné kategorie komerčních.


Vybrané články z našeho blogu