Pronájem bytu 1+kk, Praha - Staré Město, Martinská, 32 m2 (ID: 4124110)

Martinská, Praha, Staré Město

17 900 Kč /za měsíc Získejte výhodnou HYPOTÉKU

(+ poplatky 900 Kč/měs/os, záloha na vodu 350 Kč/os/měs, elektřina převod, provize 1 nájem)

Prémioví partneři v Praze 1

Stěhovací služby

Výkup a prodej starého nábytku

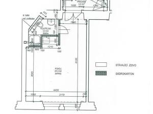
Informace k bytu

Nabízím k pronájmu útulný světlý byt 1+kk na Praze 1 - Starém Městě, Martinská ul. Lokalita v centru Prahy s výbornou dopravní dostupností, v blízkosti obchodního domu Máj a Quadria. Byt se nachází ve 4.patře krásného, udržovaného domu s výtahem.
Byt má velká okna a tím dostatek světla, je vybaven kuch. koutem s dvouvařičem a lednicí. Koupelna je se sprchovým koutem společná s WC. Vytápění je elektrické.
Měsíční paušál na domovní služby činí 900 Kč/os, záloha na vodu je 350 Kč/os, elektřina v bytě se přehlašuje na nájemníka. Majitel požaduje kauci ve výši 2 nájmů, provize je 1 nájem.
Byt bude k dispozici od 2/26, prohlídky jsou možné po dohodě.

Parametry bytu

Cena
17 900 Kč /za měsíc
Poznámka k ceně
+ poplatky 900 Kč/měs/os, záloha na vodu 350 Kč/os/měs, elektřina převod, provize 1 nájem
Aktualizováno
3. 12. 2025
Adresa
Martinská, Praha, Staré Město
ID
48
Stavba
Cihlová
Stav objektu
Velmi dobrý
Patro
5. z 6
Vlastnictví
Osobní
Užitná plocha
32 m2
Podlahová plocha
32 m2
Bezbarierový přístup

Kontaktovat makléře

Máte zájem o tento byt?

Tímto, v souladu s nařízením Evropského parlamentu a Rady (EU) 2016/679, v platném znění, prohlašuji, že mi je alespoň 16 let a uděluji tak svůj souhlas se zpracováním zadaných údajů (jméno, telefon, e-mail, ip adresa) společnosti B3 Technology, s.r.o., IČ: 07330600, se sídlem Novostavby 126/23, 435 11 Lom (správce dat), za účelem předání dotazu z tohoto formuláře Vámi vybranému inzerentovi a zpětného kontaktování mé osoby. Osobní údaje bude správce zpracovávat manuálně i automaticky přímo prostřednictvím svých zaměstnanců. Informace předané tímto formulářem budou uloženy v databázi správce maximálně po dobu 10 let. Odvolání souhlasu s uložením a zpracováním poskytnutých dat lze e-mailem na info@videobydleni.cz. V případě podezření na neoprávněné použití Vámi poskytnutých údajů máte právo předat podnět k šetření Úřadu pro ochranu osobních údajů. Více informací
Chystáte se prodat nemovitost?
Pomůžeme Vám!

Inzerát si prohlédlo 0 lidí

Prodejce

Vanda Vlašánková

Vanda Vlašánková

Hlídací pes

Chcete dostávat emailem podobné nabídky pronájmu bytů 1+kk v Praze 1?

Podobné nemovitosti


Nevyhovuje Vám typ bytu? Podívejte se na jiné kategorie bytů.


Vybrané články z našeho blogu