Prodej bytu 1+1, Praha - Žižkov, Husitská, 39 m2 (ID: 4124539)

Husitská, Praha 3, Žižkov

7 000 000 Kč /za nemovitost HYPOTÉKA od 31 286 Kč /za měsíc
Prémioví partneři v Praze 3

Stěhovací služby

Výkup a prodej starého nábytku

Informace k bytu

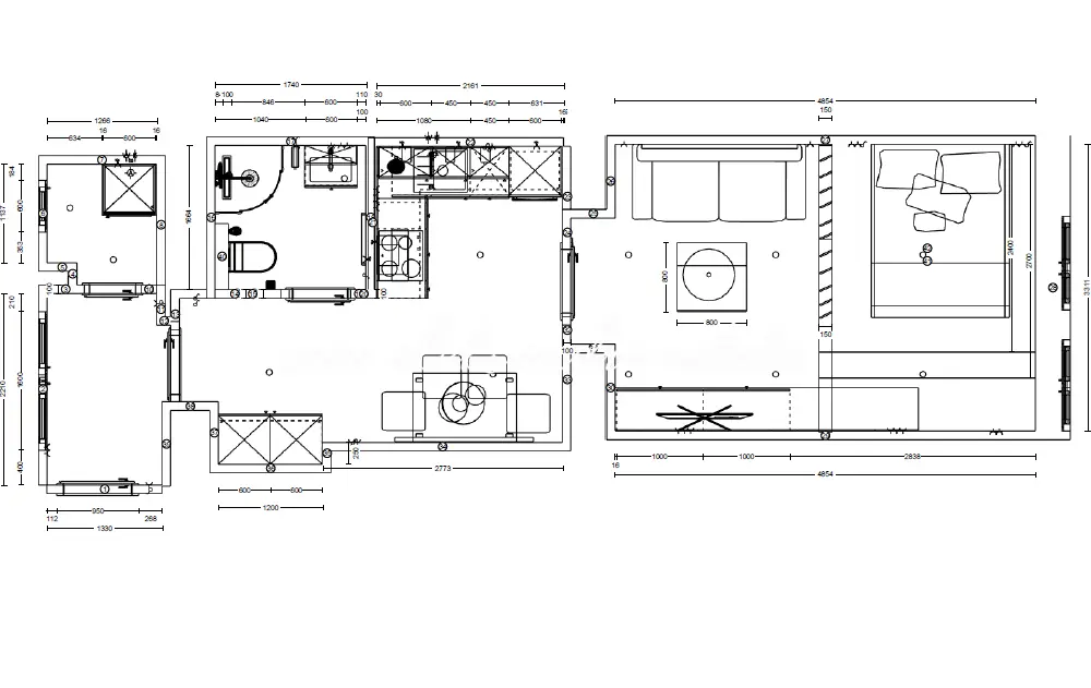
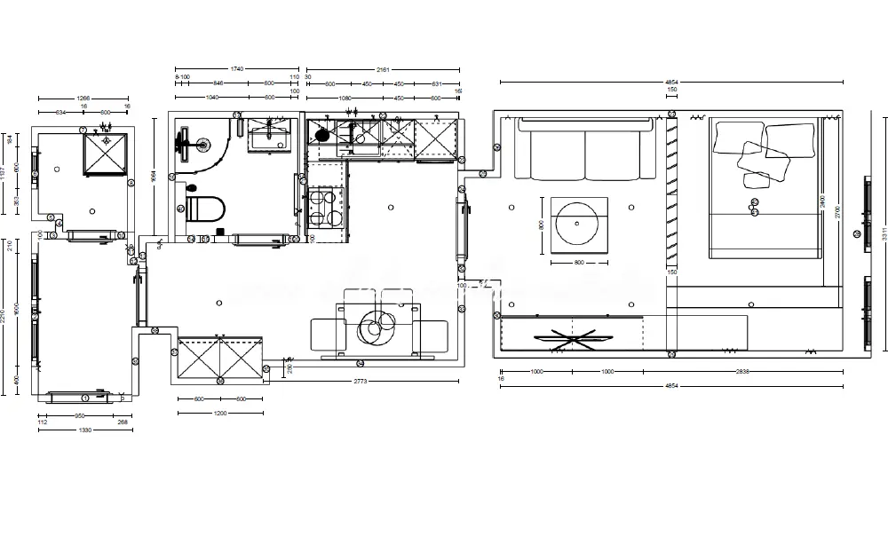
Nabízíme k prodeji světlý, kompletně zrekonstruovaný byt o dispozici 1+1, který se nachází ve 2. nadzemním podlaží činžovního domu v oblíbené lokalitě Praha 3 Žižkov, přímo na ulici Husitská.
Rekonstrukce zahrnovala kompletně nové elektroinstalace, rozvody vody, nově vybudovanou moderní koupelnu se sanitou, nové omítky, štuky a upravené stropy. V předsíni byla položena nová dlažba a díky velkému oknu působí prostor velmi světlým dojmem. Komora slouží jako technické zázemí s elektrickým bojlerem a přípojkou na pračku. Zbylé vybavení, zejména kuchyň a detaily interiéru, je ponecháno k dokončení budoucím vlastníkem dle jeho vlastních představ.

Dům je po rekonstrukci společných prostor a má zachovaný historický charakter, který dodává celému objektu jedinečnou atmosféru tradičního pražského činžovního domu.

Lokalita Žižkov patří mezi nejžádanější části širšího centra Prahy. V docházkové vzdálenosti se nachází kompletní občanská vybavenost, kavárny, restaurace, obchody a zastávky MHD s rychlým spojením do centra.
Skvělá dopravní dostupnost:
- zastávka autobusu jen pár kroků od domu
- tramvajové linky v okolí
- cca 15 minut pěšky do centra
- rychlé spojení do Karlína přes podchod

Vedle domu se nachází vstup do parku Vítkov ideálního místa na sport i odpočinek. V blízkosti je také park Parukářka, odkud se otevírá panoramatický výhled na celou Prahu.
Žižkov je známý svou bohatou kulturou, živou atmosférou a výbornou dostupností jak do centra města, tak i mimo Prahu díky blízkosti Florence a Hlavního nádraží.

Tento byt představuje skvělou volbu pro vlastní bydlení i jako investici s výbornou likviditou a potenciálem pro dlouhodobý nebo kratkodobý pronájem.

Parametry bytu

Cena
7 000 000 Kč /za nemovitost Spočítat hypotéku
Aktualizováno
3. 12. 2025
Adresa
Husitská, Praha 3, Žižkov
ID
60/2
Stavba
Cihlová
Stav objektu
Po rekonstrukci
Patro
2. z 4
Vybaveno
Ne
Typ objektu
Patrový
Vlastnictví
Osobní
Užitná plocha
39 m2
Podlahová plocha
39 m2
Třída energetické náročnosti
G - Mimořádně nehospodárná
Odpad
Veřejná kanalizace
Topení
Lokální elektrické
Komunikace
Asfaltová
Doprava
MHD, Autobus
Voda
Vodovod
Bezbarierový přístup

Kontaktovat makléře

Máte zájem o tento byt?

Tímto, v souladu s nařízením Evropského parlamentu a Rady (EU) 2016/679, v platném znění, prohlašuji, že mi je alespoň 16 let a uděluji tak svůj souhlas se zpracováním zadaných údajů (jméno, telefon, e-mail, ip adresa) společnosti B3 Technology, s.r.o., IČ: 07330600, se sídlem Novostavby 126/23, 435 11 Lom (správce dat), za účelem předání dotazu z tohoto formuláře Vámi vybranému inzerentovi a zpětného kontaktování mé osoby. Osobní údaje bude správce zpracovávat manuálně i automaticky přímo prostřednictvím svých zaměstnanců. Informace předané tímto formulářem budou uloženy v databázi správce maximálně po dobu 10 let. Odvolání souhlasu s uložením a zpracováním poskytnutých dat lze e-mailem na info@videobydleni.cz. V případě podezření na neoprávněné použití Vámi poskytnutých údajů máte právo předat podnět k šetření Úřadu pro ochranu osobních údajů. Více informací
Chystáte se prodat nemovitost?
Pomůžeme Vám!

Inzerát si prohlédlo 1 lidí

Prodejce

Oleksandra Sharnova

Oleksandra Sharnova

Hlídací pes

Chcete dostávat emailem podobné nabídky prodeje bytů 1+1 v Praze 3?

Top nabídky

Podobné nemovitosti


Nevyhovuje Vám typ bytu? Podívejte se na jiné kategorie bytů.


Vybrané články z našeho blogu