Prodej výrobních prostor, Neuměř, 405 m2

Neuměř

11 900 000 Kč /za nemovitost HYPOTÉKA od 53 186 Kč /za měsíc

(včetně všech právních služeb a provize RK)

Prémioví partneři v Neuměři

Podlahy

Stěhovací služby

Informace k nemovitosti

PRODEJ VÝROBNÍ / SKLADOVACÍ HALY S TECHNOLOGIÍ – NEUMĚŘ, HOLÝŠOV

Nabízíme k prodeji výrobní a skladovací halu připravenou k okamžitému provozu, umístěnou v bývalém vojenském areálu v Neuměři, části města Holýšov.
Hala je těsně před kolaudací.
Areál je dlouhodobě funkční, stabilní a nabízí vynikající dostupnost – příjezd MHD, pohodlné parkování i rychlé napojení na dálnici D5.

Součástí prodeje je i vysoce kvalitní laserový systém Trumpf TruLaser 3030 (3,2 kW) – technologie, která zásadně zvyšuje hodnotu celého areálu a umožňuje okamžité zahájení kovovýroby.

Technické parametry haly
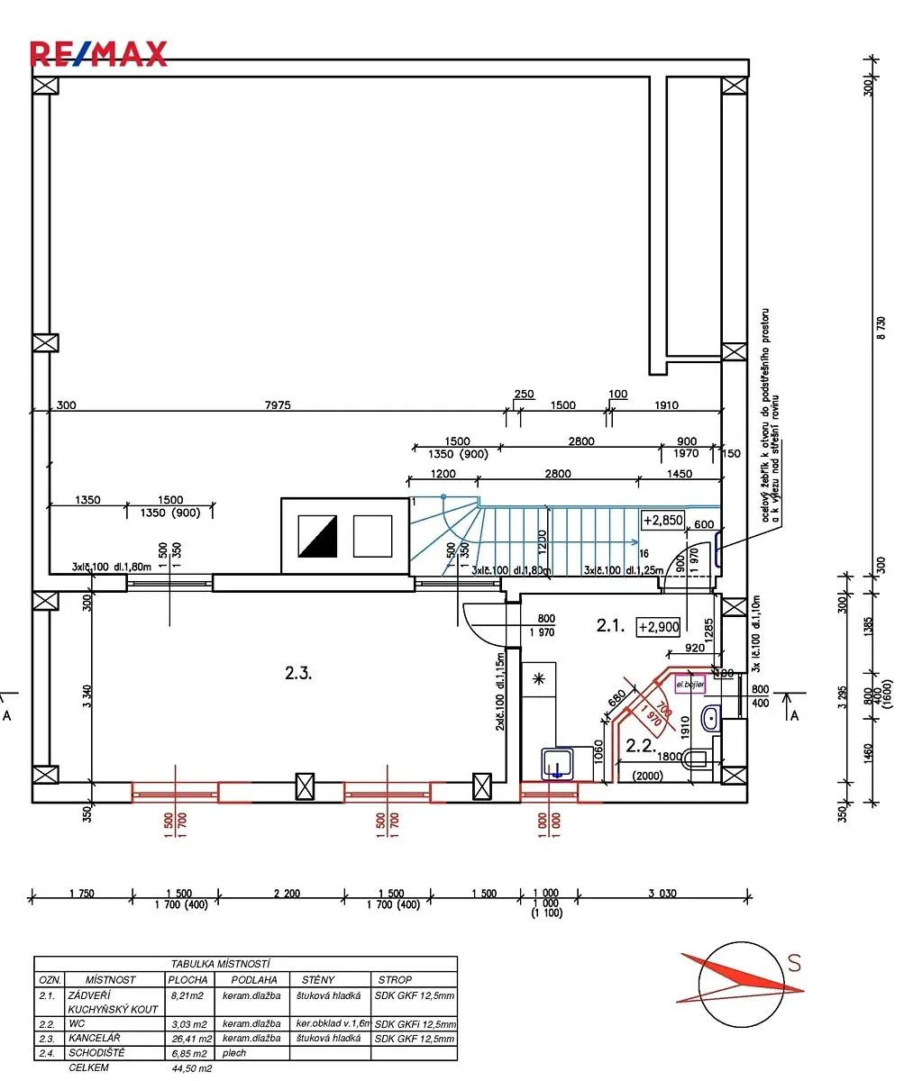
• Zastavěná plocha celkem: 441 m²
• zděná hala: 163 m²
• montovaná hala: 233 m²
• sklady a technické místnosti: 45 m²
• Užitná plocha celkem: 405 m²
• výrobní plocha: 325 m²
• zázemí 1. NP (šatny, sociální zařízení, kuchyňka): 38 m²
• zázemí 2. NP (kancelář, WC, kuchyňka): 38 m²

Rozměry a konstrukce
• světlá výška: 4,2 m
• výška do štítu: 5,5 m
• šířka: 12,4 m
• konstrukce: kombinace zděné a montované části
• 3 velké vjezdy → kamion projede bez omezení

Technické vybavení
• příkon 3×160 A – nadstandardní kapacita pro náročnou výrobu
• nové rozvody vody, kanalizace a topení
• vytápění: sahary

Technologie v ceně – Trumpf TruLaser 3030 (3,2 kW)

Součástí prodeje je profesionální laserový systém určený pro kovovýrobu:
• výkon 3,2 kW
• značka TRUMPF – světová špička v přesném řezání
• ideální pro výrobu výpalků, kusovou i sériovou výrobu
• možnost okamžitého spuštění provozu bez dalších investic

Tato technologie výrazně rozšiřuje potenciál haly – vhodné jak pro rozšíření stávající firmy, tak jako investiční příležitost.

Zázemí pro zaměstnance

Objekt nabízí veškerý komfort potřebný pro denní provoz:
• šatna
• sociální zařízení
• kuchyňka
• kancelář v patře (38 m²) s vlastním WC a kuchyňkou

Pozemek a možnosti využití

Pozemek o celkové výměře 1 358 m² poskytuje:
• dostatek místa pro skladování materiálu
• parkování strojů, osobních i nákladních vozů
• možnost přístavby haly / rozšíření výroby
• rychlou manipulaci díky otevřenému prostoru okolo haly

Dále lze využít zpevněnou plochu přímo naproti objektu pro další parkování.

Lokalita a dostupnost
• do areálu zajíždí MHD
• v okolí působí více zavedených firem → stabilní podnikatelské prostředí
• výborné napojení na dálnici D5 (Plzeň–Rozvadov)
• kolaudace objektu bude dokončena do konce ledna

Ideální využití
• strojírenská a kovovýroba
• výroba výpalků (technologie součástí!)
• lehká a střední výroba
• logistické a skladovací provozy
• autoslužby, dílny
• firemní provozovna
• investice s výborným výnosem (pronájem haly a technologie)


Pro více informací nebo sjednání prohlídky mě prosím kontaktujte.
Ráda vám představím objekt osobně.

Parametry nemovitosti

Cena
11 900 000 Kč /za nemovitost Spočítat hypotéku
Poznámka k ceně
včetně všech právních služeb a provize RK
Aktualizováno
4. 12. 2025
Adresa
Neuměř
ID
0071-NP04585
Stavba
Smíšená
Stav objektu
Novostavba
Lokalita objektu
Okraj obce
Užitná plocha
405 m2
Zastavěná plocha
441 m2
Podlahová plocha
1358 m2
Třída energetické náročnosti
G - Mimořádně nehospodárná
Odpad
Veřejná kanalizace
Doprava
Dálnice, Silnice, Autobus
Voda
Vodovod
Zdroj teplé vody
Kotel na tuhá paliva, Bojler - elektro

Kontaktovat makléře

Realitní kancelář

RE/MAX InterCora

Lochotínská 1108/18, Plzeň, Severní Předměstí

Chystáte se prodat nemovitost?
Pomůžeme Vám!

Máte zájem o tuto nemovistost?

Tímto, v souladu s nařízením Evropského parlamentu a Rady (EU) 2016/679, v platném znění, prohlašuji, že mi je alespoň 16 let a uděluji tak svůj souhlas se zpracováním zadaných údajů (jméno, telefon, e-mail, ip adresa) společnosti B3 Technology, s.r.o., IČ: 07330600, se sídlem Novostavby 126/23, 435 11 Lom (správce dat), za účelem předání dotazu z tohoto formuláře Vámi vybranému inzerentovi a zpětného kontaktování mé osoby. Osobní údaje bude správce zpracovávat manuálně i automaticky přímo prostřednictvím svých zaměstnanců. Informace předané tímto formulářem budou uloženy v databázi správce maximálně po dobu 10 let. Odvolání souhlasu s uložením a zpracováním poskytnutých dat lze e-mailem na info@videobydleni.cz. V případě podezření na neoprávněné použití Vámi poskytnutých údajů máte právo předat podnět k šetření Úřadu pro ochranu osobních údajů. Více informací
Chystáte se prodat nemovitost?
Pomůžeme Vám!

Inzerát si prohlédlo 0 lidí

Prodejce

Věra Klimešová

Věra Klimešová

Hlídací pes

Chcete dostávat emailem podobné nabídky prodeje výrobních prostor v Neuměři?

Podobné nemovitosti


Nevyhovuje Vám typ nemovitosti? Podívejte se na jiné kategorie komerčních.


Vybrané články z našeho blogu