Dražba bytu 2+1, Brno, Purkyňova, 48 m2

Purkyňova, Brno, Královo Pole

4 050 000 Kč /za nemovitost Získejte výhodnou HYPOTÉKU
Prémioví partneři v Brně

Informace k bytu

Předmětem dražby je nemovitá věc a její příslušenství ve vlastnictví statutárního města Brna, ve správě ÚMČ Brno – Královo Pole:

- volná bytová jednotka č. 1911/5 vymezená podle zákona č. 72/1994 Sb., o vlastnictví bytů, v budově č. p. 1910, 1911, 1912, 2517, Purkyňova 1, 3, 5, 7, Brno, postavené na pozemcích p. č. 3717/1, p. č. 3719, p. č. 3721, p. č. 3722, včetně spoluvlastnického podílu o velikosti 4768/114674 na společných částech této budovy a pozemcích p. č. 3717/1 – zastavěná plocha a nádvoří o výměře 136 m², p. č. 3719 – zastavěná plocha a nádvoří o výměře 133 m², p. č. 3721 – zastavěná plocha a nádvoří o výměře 134 m² a p. č. 3722 – zastavěná plocha a nádvoří o výměře 137 m², vše k. ú. Královo Pole, obec Brno, okres Brno-město.

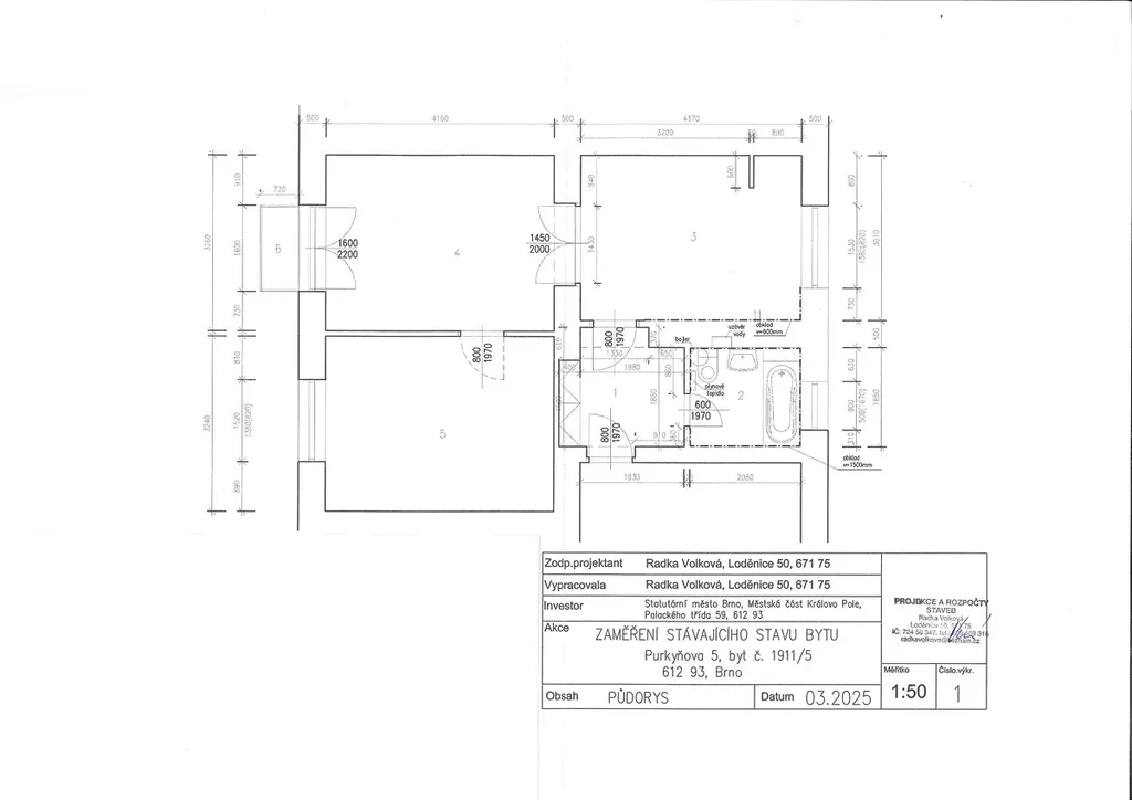
Jedná se o bytovou jednotku 2+1 o celkové výměře 47.68 m²(dle prohlášení vlastníka nemovité věci). Jednotka je situována ve 3. NP přístupná vchodem Purkyňova 5, Brno. Bytová jednotka sestává z dvou pokojů (13,63 m² a 13,67 m²), kuchyně (11,90 m²), předsíně (4,10 m²), koupelny s WC (3,90 m²). Kuchyň je vybavena kombinovaným sporákem. Koupelna je společná s WC, má zděné bytové jádro a větrací ventilační okno. Dvě sklepní kóje (5,05 a 0,89 m2) jsou umístěny mimo byt v 1. PP a do plochy bytu se nezapočítávají, stejně jako balkon (0,84 m²).

V bytě je umístěn kombinovaný kotel na vytápění a ohřev TUV, instalace není dokončena – chybí rozvody po bytě. Byt má zjevné vady a je určený k rekonstrukci. Je třeba obnovit omítky a malby, podlahy, rozvody topení.

Dům, v němž se jednotka nachází, byl vystavěn kolem roku 1950, má 3 nadzemní podlaží, 1 podzemní podlaží a sedlovou střechu s půdním prostorem. Dům je samostatně stojící, situovaný podél ulice Purkyňova. Dům má 4 vchody. Dům je průchozí podzemním podlaží, kde jsou umístěné sklepní a společné prostory.

V domě proběhla v nedávných letech oprava střechy a výměna střešní krytiny, oprava stupaček a elektro rozvodů ve společných prostorách. SVJ nemá žádný úvěr, příspěvek do fondu oprav činí 2 384 Kč / měsíčně.

Dům se nachází v bezprostřední blízkosti zastávky MHD.

Podrobný popis stavu nemovité věci je uveden ve znaleckém posudku č.03721/2025 ze dne 6.5.2025 zpracovaného Ing. Janem Zámečníkem.

Prohlídky:
1. prohlídka dne 14.1.2026 v 10:00 hod.
2. prohlídka dne 20.1.2026 ve 14:00 hod.

Sraz účastníků prohlídky: před domem Purkyňova 1911/5, Brno
Na prohlídky není nutné se hlásit předem.

Veškeré další podrobnosti k dražbě najdete v dražební vyhlášce.

Parametry bytu

Cena
4 050 000 Kč /za nemovitost
Aktualizováno
18. 1. 2026
Adresa
Purkyňova, Brno, Královo Pole
Stavba
Cihlová
Stav objektu
Dobrý
Patro
3.
Vlastnictví
Státní/obecní
Užitná plocha
48 m2

Kontaktovat makléře

Máte zájem o tento byt?

Tímto, v souladu s nařízením Evropského parlamentu a Rady (EU) 2016/679, v platném znění, prohlašuji, že mi je alespoň 16 let a uděluji tak svůj souhlas se zpracováním zadaných údajů (jméno, telefon, e-mail, ip adresa) společnosti B3 Technology, s.r.o., IČ: 07330600, se sídlem Novostavby 126/23, 435 11 Lom (správce dat), za účelem předání dotazu z tohoto formuláře Vámi vybranému inzerentovi a zpětného kontaktování mé osoby. Osobní údaje bude správce zpracovávat manuálně i automaticky přímo prostřednictvím svých zaměstnanců. Informace předané tímto formulářem budou uloženy v databázi správce maximálně po dobu 10 let. Odvolání souhlasu s uložením a zpracováním poskytnutých dat lze e-mailem na info@videobydleni.cz. V případě podezření na neoprávněné použití Vámi poskytnutých údajů máte právo předat podnět k šetření Úřadu pro ochranu osobních údajů. Více informací
Chystáte se prodat nemovitost?
Pomůžeme Vám!

Inzerát si prohlédlo 26 lidí

Prodejce

Bc. Jana Hradilová

Bc. Jana Hradilová

Hlídací pes

Chcete dostávat emailem podobné nabídky dražby bytů 2+1 v Brně?

Podobné nemovitosti


Nevyhovuje Vám typ bytu? Podívejte se na jiné kategorie bytů.


Vybrané články z našeho blogu