Prodej rodinného domu, Hradec Králové, Nová, 102 m2

Nová, Hradec Králové

8 900 000 Kč /za nemovitost HYPOTÉKA od 39 778 Kč /za měsíc
Prémioví partneři v Hradci Králové

Informace k domu

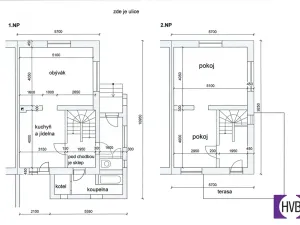
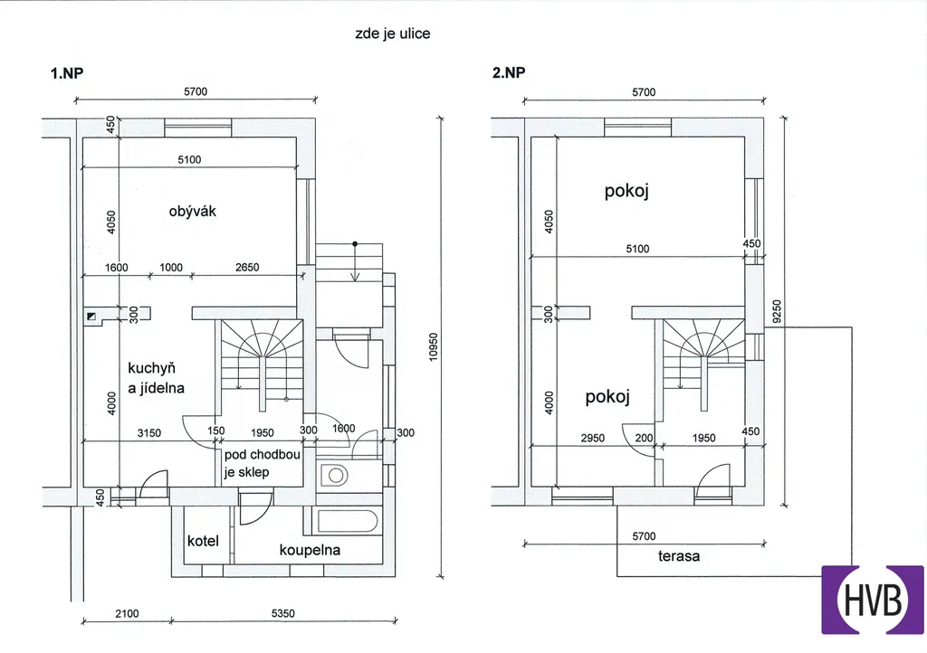
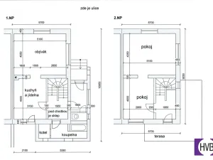
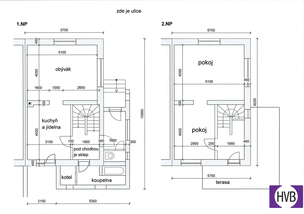
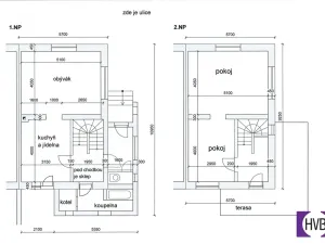
Nabízíme k prodeji rodinný dům 3+1, 101m2, na pozemku 499m2, lokalita Hradec Králové - Svobodné Dvory, ulice Nová. Jedná se o dvoupodlažní dům kolaudovaný v 50. letech minulého století, rekonstruován před cca 10 ti lety. V přízemí se nachází velký obývací pokoj a velká jídelna se vstupem na zahradu, vstupní prostor, dále koupelna s vanou, místnost pro kotel a chodba se schodišti do sklepa a do 2.NP.
Ve 2.NP se nachází dva pokoje a chodba. Část domu je podsklepená.
Součástí domu je větší zděná garáž s dílnou a zděná kůlna. Za těmito stavbami se se nachází klidná zahrada cca 200m2. Nemovitost se nachází v klidné oblasti krajského města v okolní zástavbě RD a luk.
Možnost financovat hypotékou, výhodně vyřídíme. Bližší info telefonicky nebo mailem.

Parametry domu

Cena
8 900 000 Kč /za nemovitost Spočítat hypotéku
Aktualizováno
4. 12. 2025
Adresa
Nová, Hradec Králové
ID
N2516883
Stavba
Cihlová
Stav objektu
Velmi dobrý
Vybaveno
Částečně
Typ objektu
Patrový
Druh objektu
Samostatný
Lokalita objektu
Klidná část obce
Užitná plocha
102 m2
Zastavěná plocha
85 m2
Podlahová plocha
106 m2
Plocha pozemku
499 m2
Plocha zahrady
297 m2
Třída energetické náročnosti
G - Mimořádně nehospodárná
Elektřina
230V, 400V
Plyn
Plynovod
Odpad
Veřejná kanalizace
Komunikace
Asfaltová
Doprava
Vlak, Dálnice, Silnice, MHD, Autobus
Voda
Místní zdroj vody, Studna
Garáž
Sklep
Převod do OV
Parkování

Kontaktovat makléře

Realitní kancelář

Logo HVB Real Estate, s.r.o.

HVB Real Estate, s.r.o.

Korunní 1310/56, Praha, Vinohrady

Chystáte se prodat nemovitost?
Pomůžeme Vám!

Máte zájem o tento dům?

Tímto, v souladu s nařízením Evropského parlamentu a Rady (EU) 2016/679, v platném znění, prohlašuji, že mi je alespoň 16 let a uděluji tak svůj souhlas se zpracováním zadaných údajů (jméno, telefon, e-mail, ip adresa) společnosti B3 Technology, s.r.o., IČ: 07330600, se sídlem Novostavby 126/23, 435 11 Lom (správce dat), za účelem předání dotazu z tohoto formuláře Vámi vybranému inzerentovi a zpětného kontaktování mé osoby. Osobní údaje bude správce zpracovávat manuálně i automaticky přímo prostřednictvím svých zaměstnanců. Informace předané tímto formulářem budou uloženy v databázi správce maximálně po dobu 10 let. Odvolání souhlasu s uložením a zpracováním poskytnutých dat lze e-mailem na info@videobydleni.cz. V případě podezření na neoprávněné použití Vámi poskytnutých údajů máte právo předat podnět k šetření Úřadu pro ochranu osobních údajů. Více informací
Chystáte se prodat nemovitost?
Pomůžeme Vám!

Inzerát si prohlédlo 0 lidí

Prodejce

Ing. Petr Seidel

Ing. Petr Seidel

Hlídací pes

Chcete dostávat emailem podobné nabídky prodeje rodinných domů v Hradci Králové?

Top nabídky

Podobné nemovitosti


Nevyhovuje Vám typ domu? Podívejte se na jiné kategorie domů.


Vybrané články z našeho blogu