Prodej bytu 2+kk, Kralupy nad Vltavou, J. Holuba, 40 m2

J. Holuba, Kralupy nad Vltavou

3 190 000 Kč /za nemovitost HYPOTÉKA od 14 257 Kč /za měsíc

(cena včetně provize RK a právního servisu)

Prémioví partneři v Kralupech nad Vltavou

Informace k bytu

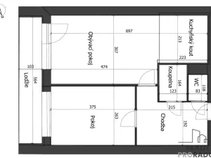
Nabízíme k prodeji byt v osobním vlastnictví s dispozicí 2+kk s prostornou lodžií se nachází v na ulici J. Holuba ve městě Kralupy nad Vltavou, v klidné a žádané části Lobeček.
Vzdáleností přibližně 35 min. jízdy autem či vlakem z centra Prahy představuje tato nemovitost i zajímavou investiční příležitost.

Byt se nachází ve 2. NP panelového domu s výtahem. Dům prochází průběžnou revitalizací, při níž byl zateplen, byla opravena střecha, proběhla výměna stoupaček.
Bytový dům je napojený na veškeré inženýrské sítě - elektřinu, plyn, obecní vodovod, veřejnou kanalizaci i internet a kabelovou televizi.

Užitná plocha bytu je 40 m2 a náleží k němu praktická komora umístěná ve stejném patře a sklep. Byt je v původním stavu. Po kompletní rekonstrukci bude byt vhodný jako startovací bydlení pro mladé rodiny, ale díky bezbariérovému přístupu i pro seniory. Dominantou bytu je prostorný obývací pokoj s kuchyňským koutem a vstupem na velkou lodžii. V celém bytě je na podlaze je položeno PVC, v koupelně je dlažba. Dřevěná okna v pokojích jsou orientována na jihovýchod. Orientace a umístění bytu je výhodou nízkých nákladů na bydlení. Vytápění je řešeno dálkově, stejně tak ohřev TUV.

Dům je postaven na místě s dobrou dostupností do centra. V blízkém okolí najdeme veškerou možnou občanskou vybavenost - obchody, restaurace, zastávku MHD, mateřskou i základní školu, kino i různá sportoviště a to včetně možnosti přírodního koupání v blízké řece Vltavě.

Velkým benefitem je možnost parkování před domem. Dobrou dopravní obslužnost zajišťuje MDH, autobusy, vlak i blízká dálnice D8.

Parametry bytu

Cena
3 190 000 Kč /za nemovitost Spočítat hypotéku
Poznámka k ceně
cena včetně provize RK a právního servisu
Aktualizováno
5. 12. 2025
Adresa
J. Holuba, Kralupy nad Vltavou
ID
28320
Stavba
Panelová
Stav objektu
Dobrý
Patro
2. z 5
Vybaveno
Ne
Lokalita objektu
Klidná část obce
Vlastnictví
Osobní
Užitná plocha
40 m2
Zastavěná plocha
226 m2
Třída energetické náročnosti
G - Mimořádně nehospodárná
Elektřina
230V
Plyn
Plynovod
Odpad
Veřejná kanalizace
Komunikace
Asfaltová
Doprava
Vlak, Silnice, MHD, Autobus
Voda
Vodovod
Lodžie
Výtah

Kontaktovat makléře

Máte zájem o tento byt?

Tímto, v souladu s nařízením Evropského parlamentu a Rady (EU) 2016/679, v platném znění, prohlašuji, že mi je alespoň 16 let a uděluji tak svůj souhlas se zpracováním zadaných údajů (jméno, telefon, e-mail, ip adresa) společnosti B3 Technology, s.r.o., IČ: 07330600, se sídlem Novostavby 126/23, 435 11 Lom (správce dat), za účelem předání dotazu z tohoto formuláře Vámi vybranému inzerentovi a zpětného kontaktování mé osoby. Osobní údaje bude správce zpracovávat manuálně i automaticky přímo prostřednictvím svých zaměstnanců. Informace předané tímto formulářem budou uloženy v databázi správce maximálně po dobu 10 let. Odvolání souhlasu s uložením a zpracováním poskytnutých dat lze e-mailem na info@videobydleni.cz. V případě podezření na neoprávněné použití Vámi poskytnutých údajů máte právo předat podnět k šetření Úřadu pro ochranu osobních údajů. Více informací
Chystáte se prodat nemovitost?
Pomůžeme Vám!

Inzerát si prohlédlo 0 lidí

Prodejce

Miroslav Nezhyba

Miroslav Nezhyba

Hlídací pes

Chcete dostávat emailem podobné nabídky prodeje bytů 2+kk v Kralupech nad Vltavou?

Podobné nemovitosti


Nevyhovuje Vám typ bytu? Podívejte se na jiné kategorie bytů.


Vybrané články z našeho blogu