Pronájem bytu 3+kk, Brno - Trnitá, Řeznická, 1154 m2

Řeznická, Brno-střed

23 000 Kč /za měsíc Získejte výhodnou HYPOTÉKU

(+ 2 500 Kč za energie, 23 000 Kč kauce , + provize RK)

Prémioví partneři v Brně

Informace k bytu

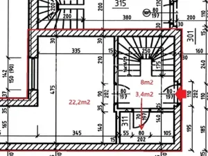
Nabízíme k pronájmu atypický mezonetový byt o velikosti 3+kk, nacházející se na ulici Řeznická, v části obce Trnitá v Brně. Tento jedinečný byt s celkovou plochou 65 m² se nachází ve třetím a čtvrtém nadzemní podlaží cihlového domu.

Dispozice:
3.NP: obývací pokoj s kuchyňským koutem 22,2 m2, předsíň 8 m2, koupelna se sprchovým koutem 3,4 m2
4.NP: pokoj 10,2 m2, pokoj 8,8 m2, koupelna s vanou 5.6 m2 chodba 7,6 m2

Velkou devizou bytu jsou dvě koupelny - jedna se sprchovým koutem, druhá s vanou.
Byt se nabízí, kromě kuchyňské linky s vestavěnými spotřebiči, nezařízená nábytkem. V bytě je k dispozici plynový kotel pro vytápění a elektrický bojler na ohřev vody.

Dům je ve velmi dobrém stavu a je vybaven výtahem. K nemovitosti náleží také jedno parkovací místo, které je k dispozici za 1 000 Kč měsíčně.

Okolí je dobře dostupné díky MHD, což zajišťuje snadný přístup do dalších částí města. V blízkosti se nachází veškerá občanská vybavenost, což naplňuje potřeby moderního bydlení. Vhodné pro max 4 osoby.

Parametry bytu

Cena
23 000 Kč /za měsíc
Poznámka k ceně
+ 2 500 Kč za energie, 23 000 Kč kauce , + provize RK
Aktualizováno
8. 12. 2025
Adresa
Řeznická, Brno-střed
ID
18203
Stavba
Cihlová
Stav objektu
Velmi dobrý
Patro
3. z 4
Vlastnictví
Osobní
Užitná plocha
1154 m2
Zastavěná plocha
331 m2
Podlahová plocha
1154 m2
Třída energetické náročnosti
G - Mimořádně nehospodárná
Plyn
Plynovod
Odpad
Veřejná kanalizace
Doprava
MHD
Výtah
Parkování

Kontaktovat makléře

Realitní kancelář

Logo QARA, s.r.o.

QARA, s.r.o.

Šafaříkova 201/17, Praha

Chystáte se prodat nemovitost?
Pomůžeme Vám!

Máte zájem o tento byt?

Tímto, v souladu s nařízením Evropského parlamentu a Rady (EU) 2016/679, v platném znění, prohlašuji, že mi je alespoň 16 let a uděluji tak svůj souhlas se zpracováním zadaných údajů (jméno, telefon, e-mail, ip adresa) společnosti B3 Technology, s.r.o., IČ: 07330600, se sídlem Novostavby 126/23, 435 11 Lom (správce dat), za účelem předání dotazu z tohoto formuláře Vámi vybranému inzerentovi a zpětného kontaktování mé osoby. Osobní údaje bude správce zpracovávat manuálně i automaticky přímo prostřednictvím svých zaměstnanců. Informace předané tímto formulářem budou uloženy v databázi správce maximálně po dobu 10 let. Odvolání souhlasu s uložením a zpracováním poskytnutých dat lze e-mailem na info@videobydleni.cz. V případě podezření na neoprávněné použití Vámi poskytnutých údajů máte právo předat podnět k šetření Úřadu pro ochranu osobních údajů. Více informací
Chystáte se prodat nemovitost?
Pomůžeme Vám!

Inzerát si prohlédlo 0 lidí

Prodejce

Martin Žák

Martin Žák

Hlídací pes

Chcete dostávat emailem podobné nabídky pronájmu bytů 3+kk v Brně?

Podobné nemovitosti


Nevyhovuje Vám typ bytu? Podívejte se na jiné kategorie bytů.


Vybrané články z našeho blogu