Prodej bytu 2+kk, Praha - Nové Město, Trojická, 51 m2 (ID: 4128278)

Trojická, Praha, Nové Město

10 690 000 Kč /za nemovitost HYPOTÉKA od 47 778 Kč /za měsíc
Prémioví partneři v Praze 2

Stěhovací služby

Výkup a prodej starého nábytku

Informace k bytu

Dovolujeme si Vám nabídnout pod výhradním zastoupení, ojedinělou nabídku prodeje bytu s výhledem na Vltavu, velikostí
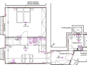
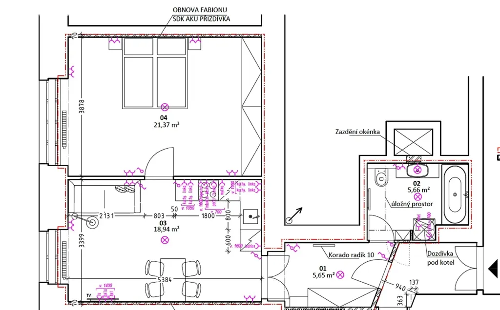
2+kk, plochou 51,9 m2, který prošel kompletní rekonstrukcí. Předmětný byt je situován v 1.patře, výška oken v úrovni druhého patra směr do ulice s novým výtahem, uvnitř dobového Činžovního domu z počátsku 19. stol., postaveného slohově ve stylu pozdní Secese. Byt nabízí úchvatný výhled na Vltavu a Pražskou náplavku z Rašínova nábřeží. Jedná se o nárožní dům na rohu ulic Trojická a Rašínovo náměstí. Konkrétní dispozice naleznete v přiloženém půdorysu, prostorově byt nabízí
rozlehlou vstupní halu, velikostí 5,6 m2, dále vkusně rekonstruovanou koupelnu velikostí 5,6 m2,vybavenou: vanou se sprch. zástěnou a vanovou baterií, umyvadlem s vodovodní baterií a elegantní koupelnovou skříňkou, WC závěsný, elektrický kotel vč. el. bojleru a pračkou s možností dopojení sušičky.
Z halové sekce bytu vcházíme do prostorného obývacího pokoje s kuchyňským koutem, velikostí 18,9 m2, obsahujícím následující spotřebiče: varná deska indukční, trouba horkovzdušná, digestoř, lednicí s mrazničkou, myčkou, mikrovlnkou. Dále navazuje průchozí místnost ložnice, velikostí 21,3 m2, obsahující velkoobjemovou vestavěnou šatní skříň s dostatečným úložným prostorem. Technické parametry bytu jsou: dle požadavku majitele došlo k rekonstrukci elektřiny a byt je plně funkční bez nutnosti plynu, tedy jak ohřev vody tak ohřev radiátorů přes el. kotel a el. bojler. Krom rekonstrukce elektřiny, prošel byt rekonstrukcí podlah, nové koupelny s vkusným výběrem velkoformátové dlažby a obkladů s důrazem na vyšší kvalitu, dále nová kuchyň vč. spotřebičů, vestavba velkoobjemové vestavěné skříně,
okna nová špaletová. Měsíční náklady spojené s elektřinou činí 3500,- Kč zálohově. Dálší náklady jsou
spojené s domem, celkové zálohy za služby domu ve výši 3373,- Kč vč. fondu oprav. Dům prošel rekonstrukcí oken,
aktuálně jsou v bytě nová dřevěná špaletová okna dvoudílná vč. dvojskel, dále nové stoupačky vodovodní vč. odpadních, navazuje nový výtah. Zároveň je před dokončením revitalizace sklepních kójí. Aktuálně jsou v domě plánované další rekonstrukce o kterých Vás budeme rádi informovat osobně dle projektové dokumentace. Vybavení je v majetku nájemce bytu, který je ochoten vybavení prodat. V případě zájmu o získání dalších informací nás kontaktujte na email popř. telefonicky. MHD: Palackéko náměstí. Před domem je situována cyklo stezka s napojením směr Výtoň k Žlutým Lázním.

Parametry bytu

Cena
10 690 000 Kč /za nemovitost Spočítat hypotéku
Náklady na bydlení
3373,- zálohy za služby vč. FO + elektřina
Aktualizováno
8. 12. 2025
Adresa
Trojická, Praha, Nové Město
ID
05112025
Stavba
Cihlová
Stav objektu
Po rekonstrukci
Patro
2.
Vlastnictví
Družstevní
Užitná plocha
51 m2
Sklep
Převod do OV

Kontaktovat makléře

Realitní kancelář

Diplomat RK, s.r.o.

Ke Džbánu 374/39, Praha, Liboc

Chystáte se prodat nemovitost?
Pomůžeme Vám!

Máte zájem o tento byt?

Tímto, v souladu s nařízením Evropského parlamentu a Rady (EU) 2016/679, v platném znění, prohlašuji, že mi je alespoň 16 let a uděluji tak svůj souhlas se zpracováním zadaných údajů (jméno, telefon, e-mail, ip adresa) společnosti B3 Technology, s.r.o., IČ: 07330600, se sídlem Novostavby 126/23, 435 11 Lom (správce dat), za účelem předání dotazu z tohoto formuláře Vámi vybranému inzerentovi a zpětného kontaktování mé osoby. Osobní údaje bude správce zpracovávat manuálně i automaticky přímo prostřednictvím svých zaměstnanců. Informace předané tímto formulářem budou uloženy v databázi správce maximálně po dobu 10 let. Odvolání souhlasu s uložením a zpracováním poskytnutých dat lze e-mailem na info@videobydleni.cz. V případě podezření na neoprávněné použití Vámi poskytnutých údajů máte právo předat podnět k šetření Úřadu pro ochranu osobních údajů. Více informací
Chystáte se prodat nemovitost?
Pomůžeme Vám!

Inzerát si prohlédlo 0 lidí

Prodejce

Robert Sommer

Robert Sommer

Hlídací pes

Chcete dostávat emailem podobné nabídky prodeje bytů 2+kk v Praze 2?

Podobné nemovitosti


Nevyhovuje Vám typ bytu? Podívejte se na jiné kategorie bytů.


Vybrané články z našeho blogu