Prodej rodinného domu, Třinec - Kanada, Sadová, 220 m2 (ID: 4128946)

Sadová, Třinec, Kanada

5 300 000 Kč /za nemovitost HYPOTÉKA od 23 688 Kč /za měsíc

(V ceně je zahrnut právní a realitní servis.)

Prémioví partneři v Třinci

Informace k domu

Prodej rodinného domu, Třinec - Kanada, ul. Sadová

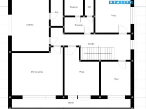
Nabízíme k prodej RD ve vyhledávané lokalitě městské části obce Třinec- Kanada. Jedná se o prostorný dům se dvěmi obytnými podlažími, kde v 1. NP se nachází vstupní hala s krbem, pracovna, letní kuchyně, garáž s elektrickými vraty na dálkové ovládání, technické zázemí domu a sprchový kout s WC. Ve 2. NP pak naleznete čtyři samostatné pokoje, kuchyň se spižírnou a koupelnu s WC. Vytápění a ohřev vody zajišťuje nový plynový kondenzační kotel. Ve 2. NP lze vytápět i krbovými kamny a v 1. NP pak krbem. 1NP je bezbariérové. Zahrada je rovinatá, oplocená, disponuje skleníkem a vzrostlými plodící ovocnými stromy. Dům se nachází uprostřed zeleně, nedaleko vodní nádrže Kanaďanka a poblíž nemocnice AGEL. V sousedství naleznete MŠ, ZŠ, obchody a MHD spojující místo s centrem obce. Nájezd na dálnici směr FM, OV, Český Těšín je cca 8 min. jízdy autem. Dům je volný okamžitě a je obyvatelný bez nutnosti okamžitých investic. Bližší informace Vám sdělíme na prohlídce.

Parametry domu

Cena
5 300 000 Kč /za nemovitost Spočítat hypotéku
Poznámka k ceně
V ceně je zahrnut právní a realitní servis.
Aktualizováno
31. 1. 2026
Adresa
Sadová, Třinec, Kanada
ID
918280
Stavba
Smíšená
Stav objektu
Dobrý
Vybaveno
Ano
Druh objektu
Samostatný
Lokalita objektu
Klidná část obce
Vlastnictví
Osobní
Užitná plocha
220 m2
Plocha pozemku
990 m2
Balkon

Kontaktovat makléře

Realitní kancelář

Logo M&M reality

M&M reality

ulice Krakovská 583/9, Praha

Chystáte se prodat nemovitost?
Pomůžeme Vám!

Máte zájem o tento dům?

Tímto, v souladu s nařízením Evropského parlamentu a Rady (EU) 2016/679, v platném znění, prohlašuji, že mi je alespoň 16 let a uděluji tak svůj souhlas se zpracováním zadaných údajů (jméno, telefon, e-mail, ip adresa) společnosti B3 Technology, s.r.o., IČ: 07330600, se sídlem Novostavby 126/23, 435 11 Lom (správce dat), za účelem předání dotazu z tohoto formuláře Vámi vybranému inzerentovi a zpětného kontaktování mé osoby. Osobní údaje bude správce zpracovávat manuálně i automaticky přímo prostřednictvím svých zaměstnanců. Informace předané tímto formulářem budou uloženy v databázi správce maximálně po dobu 10 let. Odvolání souhlasu s uložením a zpracováním poskytnutých dat lze e-mailem na info@videobydleni.cz. V případě podezření na neoprávněné použití Vámi poskytnutých údajů máte právo předat podnět k šetření Úřadu pro ochranu osobních údajů. Více informací
Chystáte se prodat nemovitost?
Pomůžeme Vám!

Inzerát si prohlédlo 12 lidí

Prodejce

Ivana Štrajtová

Ivana Štrajtová

Hlídací pes

Chcete dostávat emailem podobné nabídky prodeje rodinných domů v Třinci?

Podobné nemovitosti


Nevyhovuje Vám typ domu? Podívejte se na jiné kategorie domů.


Vybrané články z našeho blogu