Prodej bytu 2+1, Ostrava, Zelená, 55 m2 (ID: 4129306)

Zelená, Moravská Ostrava

4 790 000 Kč /za nemovitost HYPOTÉKA od 21 408 Kč /za měsíc

(včetně provize, včetně právního servisu)

Prémioví partneři v Ostravě

Informace k bytu

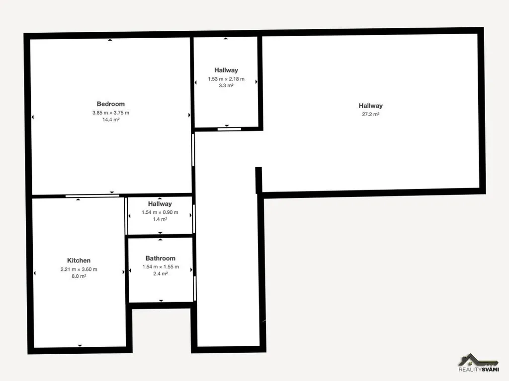
Nabízíme byt 2+1 v osobním vlastnictví i s užitnou plochou 55 m² v Ostravě na ulici Zelená.

Samotný byt disponuje dvěma samostatnými, neprůchozími pokoji a větší komorou, která je v bytě velkým bonusem a poskytuje nám další úložný prostor.
Tento byt se nachází v 1.NP/6.NP a dle energetického štítku je zařazen do energetické třídy C, což znamená úspornost.
K bytu patří balkón, který je umístěn na stranu do zeleně, takže vhodný jak pro odpočinek nebo odpolední relaxaci, což je dalším bonusem tohoto bytu. Součásti je i sklepní kóje
V roce 2021 byla provedena výměna elektroinstalace do mědi.

Dům je po revitalizaci, tudíž zateplení, nová fasáda, plastová okna, nový výtah. V domě je i kolárna.
K bytové jednotce se dá po domluvě pronajmout i zahrádka za domem a to zhruba za 240 Kč ročně.
Byt je ideální jak pro mladé páry tak i jednotlivce, kteří hledají moderní a útulné bydlení v klidné části Ostravy. Byt je nezařízený, ale zároveň připraven k okamžitému nastěhování.
Tento byt nabízí skvělou příležitost k vytvoření svého nového domova.

V případ zájmu mne kontaktujte, ráda Vám byt ukáži.
S financováním Vám pomohu také.

Parametry bytu

Cena
4 790 000 Kč /za nemovitost Spočítat hypotéku
Poznámka k ceně
včetně provize, včetně právního servisu
Aktualizováno
27. 2. 2026
Adresa
Zelená, Moravská Ostrava
ID
00581
Stavba
Panelová
Stav objektu
Velmi dobrý
Patro
1. z 6
Vybaveno
Ne
Druh objektu
V bloku
Lokalita objektu
Klidná část obce
Vlastnictví
Osobní
Užitná plocha
55 m2
Třída energetické náročnosti
C - Úsporná
Ukazatel energetické náročnosti
305.4 kWh/m2 za rok
Elektřina
230V
Plyn
Plynovod
Odpad
Veřejná kanalizace
Topení
Ústřední dálkové
Komunikace
Asfaltová
Doprava
Silnice, MHD, Autobus
Voda
Vodovod
Balkon

Kontaktovat makléře

Máte zájem o tento byt?

Tímto, v souladu s nařízením Evropského parlamentu a Rady (EU) 2016/679, v platném znění, prohlašuji, že mi je alespoň 16 let a uděluji tak svůj souhlas se zpracováním zadaných údajů (jméno, telefon, e-mail, ip adresa) společnosti B3 Technology, s.r.o., IČ: 07330600, se sídlem Novostavby 126/23, 435 11 Lom (správce dat), za účelem předání dotazu z tohoto formuláře Vámi vybranému inzerentovi a zpětného kontaktování mé osoby. Osobní údaje bude správce zpracovávat manuálně i automaticky přímo prostřednictvím svých zaměstnanců. Informace předané tímto formulářem budou uloženy v databázi správce maximálně po dobu 10 let. Odvolání souhlasu s uložením a zpracováním poskytnutých dat lze e-mailem na info@videobydleni.cz. V případě podezření na neoprávněné použití Vámi poskytnutých údajů máte právo předat podnět k šetření Úřadu pro ochranu osobních údajů. Více informací
Chystáte se prodat nemovitost?
Pomůžeme Vám!

Inzerát si prohlédlo 13 lidí

Prodejce

Bc. Monika Jančová

Bc. Monika Jančová

Hlídací pes

Chcete dostávat emailem podobné nabídky prodeje bytů 2+1 v Ostravě?

Podobné nemovitosti


Nevyhovuje Vám typ bytu? Podívejte se na jiné kategorie bytů.


Vybrané články z našeho blogu