Remax Power 2

Pronájem skladu, Dobříš, Na Chmelnici, 189 m2

Na Chmelnici, Dobříš

41 000 Kč /za měsíc Získejte výhodnou HYPOTÉKU

(+ DPH, + zál. poplatky 4.000 Kč)

Prémioví partneři v Dobříši

Revize elektrických zařízení

Informace k nemovitosti

V období od 26.1. 2026 do 6.2. 2026 nás prosím kontaktujte výhradně prostřednictvím e-mailu, kontaktního formuláře nebo na WhatsApp, děkujeme!

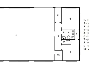
Nabízíme k pronájmu skladovou halu s kancelářemi a zázemím, situovanou v uzavřeném areálu v ulici Na Chmelnici, Dobříš.

Celý moderní objekt je tvořen skladovou halou o rozloze 143 m2, dále jsou zde dvě kanceláře (14.8 m2 a 12.3 m2), kuchyňka (2.6 m2), malý sklad (3 m2), úklidová místnost, sociální zařízení (wc, umyvadlo), chodba a vstupní zádveří.

Půdorysné řešení naleznete ve fotogalerii.

Možnost parkování v areálu (vjezdová brána na dálkové ovládání) nebo před areálem. Objekt je zabezpečen kamerovým systémem.

Klidná lokalita, centrum města 5 min. pěšky.

Doba nájmu min. na 1 rok s možností dalšího prodloužení. Vratná jistota ve výši dvou nájmů, provize RK jeden měsíční nájem.

Prohlídku Vám po dohodě rádi umožníme.

PENB - Energetická třída není stanovena = “G“ (údaj bude aktualizován).

Parametry nemovitosti

Cena
41 000 Kč /za měsíc
Poznámka k ceně
+ DPH, + zál. poplatky 4.000 Kč
Aktualizováno
1. 2. 2026
Adresa
Na Chmelnici, Dobříš
Stavba
Montovaná
Stav objektu
Velmi dobrý
Užitná plocha
189 m2
Parkování

Kontaktovat makléře

Realitní kancelář

RealityRajský

Horáčkova 1206/7, Praha, Krč

Chystáte se prodat nemovitost?
Pomůžeme Vám!

Máte zájem o tuto nemovistost?

Tímto, v souladu s nařízením Evropského parlamentu a Rady (EU) 2016/679, v platném znění, prohlašuji, že mi je alespoň 16 let a uděluji tak svůj souhlas se zpracováním zadaných údajů (jméno, telefon, e-mail, ip adresa) společnosti B3 Technology, s.r.o., IČ: 07330600, se sídlem Novostavby 126/23, 435 11 Lom (správce dat), za účelem předání dotazu z tohoto formuláře Vámi vybranému inzerentovi a zpětného kontaktování mé osoby. Osobní údaje bude správce zpracovávat manuálně i automaticky přímo prostřednictvím svých zaměstnanců. Informace předané tímto formulářem budou uloženy v databázi správce maximálně po dobu 10 let. Odvolání souhlasu s uložením a zpracováním poskytnutých dat lze e-mailem na info@videobydleni.cz. V případě podezření na neoprávněné použití Vámi poskytnutých údajů máte právo předat podnět k šetření Úřadu pro ochranu osobních údajů. Více informací
Chystáte se prodat nemovitost?
Pomůžeme Vám!

Inzerát si prohlédlo 7 lidí

Prodejce

Bc. Jan Rajský

Bc. Jan Rajský

Hlídací pes

Chcete dostávat emailem podobné nabídky pronájmu skladů v Dobříši?


Nevyhovuje Vám typ nemovitosti? Podívejte se na jiné kategorie komerčních.


Vybrané články z našeho blogu