Pronájem bytu 1+kk, Hostivice, Školská, 28 m2 (ID: 4130099)

Školská, Hostivice

15 500 Kč /za měsíc Získejte výhodnou HYPOTÉKU

(+ poplatky cca 3.100,- Kč. Kauce 20.000,- Kč. Provize RK 15.500,- Kč., cena k jednání)

Prémioví partneři v Hostivici

Informace k bytu

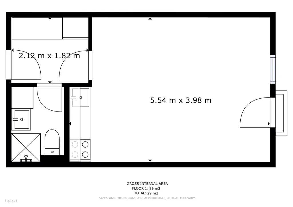
Exkluzivně nabízíme k pronájmu velmi hezký, kompletně zařízený, družstevní  byt o dispozici 1+kk v žádané lokalitě Hostivic, ulice Školská. Byt o výměře 28,06 m2 se nachází v 2.NP cihlového bytového domu. Byt je tvořen předsíní s vchodem do hlavní obytné místnosti s francouzským oknem a kuchyní a také do koupelny s WC a sprchovým koutem.  Kuchyňská linka je včetně sklokeramické desky, elektrické trouby a lednice, v předsíni je vestavná skříň, v koupelně pračka. Byt se pronajímá kompletně zařízený ( pouze bez TV) včetně nádobí atd.. Poplatky spojené s bytem jsou ve výši 2.400,- Kč/osobu ( teplá a studená voda, společné prostory, komunální odpad, vytápění) + převod elektřiny cca 800,- Kč. Kauce 20.000,- Kč. Provize RK. Dům se nachází hned vedle parku, kde protéká Litovický potok,  dále se zde nachází několik dětských hřišť a posezení v zeleni. Byt je v dochozí vzdálenosti do centra města, kde je veškerá občanská vybavenost - škola, školka, LIDL a další obchody. Výborná dopravní dostupnost autobusem na metro Zličín 10 minut, autobusová zastávka se nachází 5 minut chůze od domu. K nastěhování 1.1.2026, prohlídky možné ihned.  Pro další informace nebo prohlídku kontaktujte makléře.

Parametry bytu

Cena
15 500 Kč /za měsíc
Poznámka k ceně
+ poplatky cca 3.100,- Kč. Kauce 20.000,- Kč. Provize RK 15.500,- Kč., cena k jednání
Aktualizováno
10. 12. 2025
Adresa
Školská, Hostivice
ID
81070
Stavba
Cihlová
Stav objektu
Velmi dobrý
Patro
2.
Vybaveno
Ano
Druh objektu
Samostatný
Lokalita objektu
Klidná část obce
Vlastnictví
Družstevní
Užitná plocha
28 m2
Třída energetické náročnosti
C - Úsporná
Ukazatel energetické náročnosti
177 kWh/m2 za rok
Elektřina
230V
Odpad
Veřejná kanalizace
Telekomunikace
Internet
Doprava
Dálnice, Silnice, Autobus
Voda
Vodovod

Kontaktovat makléře

Realitní kancelář

Logo ABA REAL s.r.o.

ABA REAL s.r.o.

Tržiště 371/3, Praha, Malá Strana

Chystáte se prodat nemovitost?
Pomůžeme Vám!

Máte zájem o tento byt?

Tímto, v souladu s nařízením Evropského parlamentu a Rady (EU) 2016/679, v platném znění, prohlašuji, že mi je alespoň 16 let a uděluji tak svůj souhlas se zpracováním zadaných údajů (jméno, telefon, e-mail, ip adresa) společnosti B3 Technology, s.r.o., IČ: 07330600, se sídlem Novostavby 126/23, 435 11 Lom (správce dat), za účelem předání dotazu z tohoto formuláře Vámi vybranému inzerentovi a zpětného kontaktování mé osoby. Osobní údaje bude správce zpracovávat manuálně i automaticky přímo prostřednictvím svých zaměstnanců. Informace předané tímto formulářem budou uloženy v databázi správce maximálně po dobu 10 let. Odvolání souhlasu s uložením a zpracováním poskytnutých dat lze e-mailem na info@videobydleni.cz. V případě podezření na neoprávněné použití Vámi poskytnutých údajů máte právo předat podnět k šetření Úřadu pro ochranu osobních údajů. Více informací
Chystáte se prodat nemovitost?
Pomůžeme Vám!

Inzerát si prohlédlo 2 lidí

Prodejce

Vlasta Dočekalová

Vlasta Dočekalová

Hlídací pes

Chcete dostávat emailem podobné nabídky pronájmu bytů 1+kk v Hostivici?

Podobné nemovitosti


Nevyhovuje Vám typ bytu? Podívejte se na jiné kategorie bytů.


Vybrané články z našeho blogu