Prodej chaty, Kunětice, 146 m2 (ID: 4130604)

Kunětice

Prémioví partneři v Kuněticích

Pojištění a finance

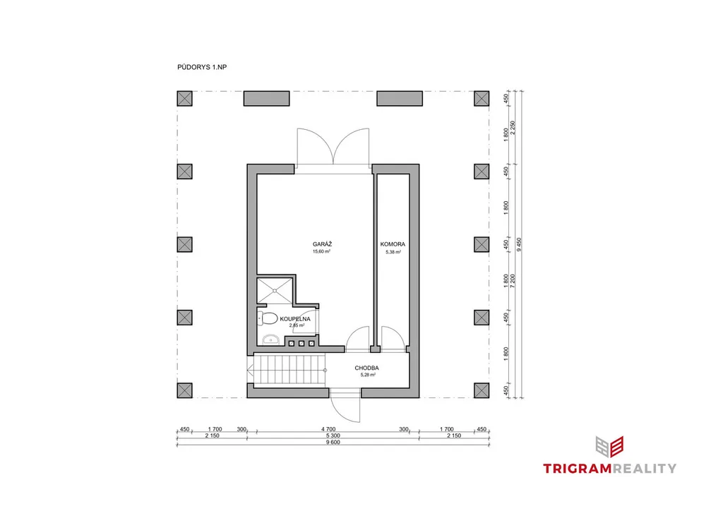
Informace k domu

Rekreační objekt v srdci přírody pod Kunětickou horou

Nacházíte se přímo pod majestátní Kunětickou horou, v srdci přírody, pouhých 50 metrů od řeky Labe.

Pohled na řeku v údolí působí jako z pohlednice. Přístup k řece je po schodišti, a na břehu si užijete jak rybaření, tak vodní radovánky.
Navíc díky poloze na vyvýšeném svahu nejste v záplavové oblasti.

Na rozlehlém zalesněném pozemku 1544 m² stojí rekreační chata o užitné ploše 145,5 m² + balkon 12 m².
Pevné zděné přízemí, na němž stojí dvě patra dřevostavby, vlastní vrtaná studna, přípojka elektřiny 400V a jímka.

A co Vám lokalita nabízí?
- cyklostezky a turistické trasy v okolí
- rybaření i koupání u řeky
- golfový resort s wellness pár minut jízdy autem od chaty
- kulturní akce a historie na Kunětické hoře
- přírodu, která vás nikdy neunaví
- v nedalekých Němčicích hospoda a další atraktivní akce

A to vše kousek od Pardubic a kousek od Hradce Králové.

Tato nemovitost je ideální pro ty, kdo hledají více než jen chatu. Je to místo s atmosférou, kde může vyrůst něco opravdu výjimečného. A takových už mnoho nezbývá.

Ozvěte se mi včas, ráda Vám místo osobně ukážu. Věřím, že Vás nadchne stejně jako mě.

Budu se těšit na setkání.

Parametry domu

Cena
3 850 000 Kč Spočítat hypotéku
Aktualizováno
6. 5. 2026
Adresa
Kunětice
ID
N647
Stavba
Smíšená
Stav objektu
Před rekonstrukcí
Druh objektu
Samostatný
Užitná plocha
146 m2
Zastavěná plocha
92 m2
Plocha pozemku
1544 m2
Třída energetické náročnosti
G - Mimořádně nehospodárná

Kontaktovat makléře

Realitní kancelář

Trigramreality s.r.o.

Milady Horákové 1738/7, Hradec Králové

Chystáte se prodat nemovitost?
Pomůžeme Vám!

Máte zájem o tento dům?

Tímto, v souladu s nařízením Evropského parlamentu a Rady (EU) 2016/679, v platném znění, prohlašuji, že mi je alespoň 16 let a uděluji tak svůj souhlas se zpracováním zadaných údajů (jméno, telefon, e-mail, ip adresa) společnosti B3 Technology, s.r.o., IČ: 07330600, se sídlem Novostavby 126/23, 435 11 Lom (správce dat), za účelem předání dotazu z tohoto formuláře Vámi vybranému inzerentovi a zpětného kontaktování mé osoby. Osobní údaje bude správce zpracovávat manuálně i automaticky přímo prostřednictvím svých zaměstnanců. Informace předané tímto formulářem budou uloženy v databázi správce maximálně po dobu 10 let. Odvolání souhlasu s uložením a zpracováním poskytnutých dat lze e-mailem na info@videobydleni.cz. V případě podezření na neoprávněné použití Vámi poskytnutých údajů máte právo předat podnět k šetření Úřadu pro ochranu osobních údajů. Více informací
Chystáte se prodat nemovitost?
Pomůžeme Vám!
Theleadway banner

Inzerát si prohlédlo 44 lidí

Prodejce

Helena Peřinová, MBA

Helena Peřinová, MBA

Hlídací pes

Chcete dostávat emailem podobné nabídky prodeje chat v Kuněticích?

Podobné nemovitosti


Nevyhovuje Vám typ domu? Podívejte se na jiné kategorie domů.


Vybrané články z našeho blogu