Prodej rodinného domu, Raškovice, 180 m2 (ID: 4131314)

Raškovice

9 980 000 Kč /za nemovitost HYPOTÉKA od 44 605 Kč /za měsíc

(SLEVA)

Prémioví partneři v Raškovicích

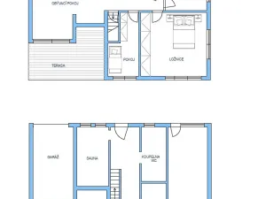
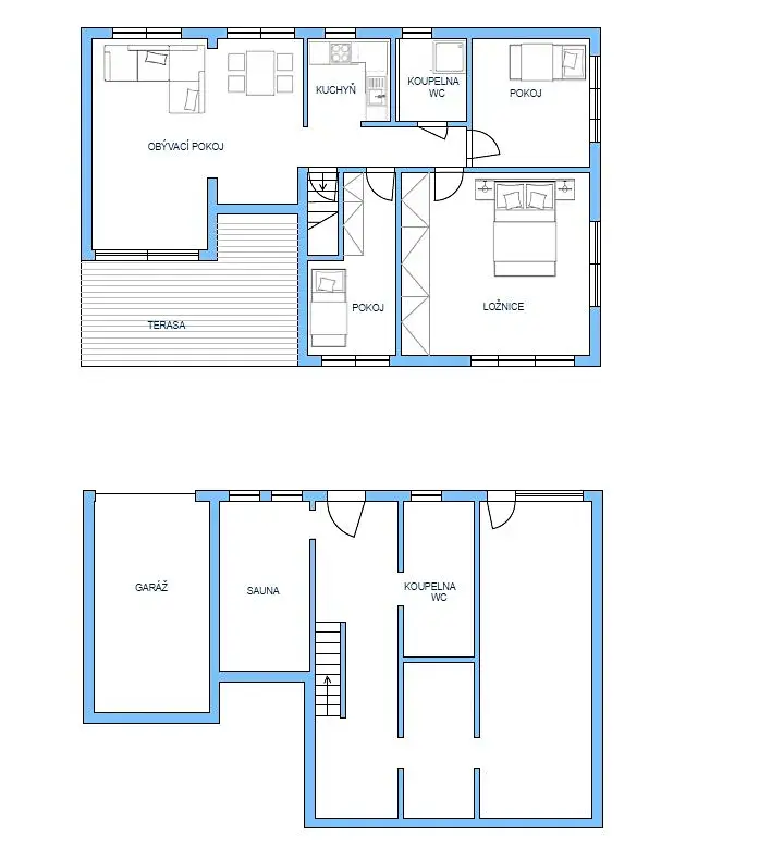
Informace k domu

Hledáte moderní rodinné bydlení v klidu a přírodě, ale zároveň s dobrou dostupností do města?
Tento kompletně zrekonstruovaný cihlový dům v Raškovicích nabízí komfort, prostor i soukromí, které si vaše rodina ocení.

Dům o užitné ploše 180 m² disponuje více než pěti pokoji a novou terasou ideální pro rodinné posezení.

Interiér prošel pečlivou rekonstrukcí kombinuje moderní styl s útulnou atmosférou.
Kvalitní materiály, vestavné skříně a dobrá dispozice s návazností na terasu a zahradu podtrhují vysoký standard bydlení.


K dispozici je garáž, dvě parkovací stání, kompletně vybudovaný vjezd s elektrickou bránou, pozemek se zcela oplocen, vzrostlá okrasná zahrada zajišťuje maximální soukromí.

Rozlehlý pozemek 3 100 m² poskytuje spoustu možností – zadní zalesněná část je vhodná pro chov drobných domácích zvířat, zahradničení nebo vybudování odpočinkové zóny.

Raškovice jsou oblíbené pro klidné prostředí, krásnou přírodu a vynikající dostupnost do okolních měst.
Tento dům je ideální volbou pro ty, kteří chtějí spojit moderní bydlení s venkovským klidem.

Pro domluvení termínu prohlídky nás prosím kontaktujte, můžeme Vám zajistiti financování tohoto domu.

Parametry domu

Cena
9 980 000 Kč /za nemovitost Spočítat hypotéku
Poznámka k ceně
SLEVA
Aktualizováno
30. 1. 2026
Adresa
Raškovice
Stavba
Cihlová
Stav objektu
Velmi dobrý
Užitná plocha
180 m2
Plocha pozemku
3100 m2
Třída energetické náročnosti
C - Úsporná
Elektřina
230V
Odpad
Veřejná kanalizace
Telekomunikace
Internet
Doprava
Autobus
Voda
Vodovod, Studna
Zdroj topení
Plynový kondenzační kotel, Krbová kamna
Zdroj teplé vody
Plynový kondenzační kotel
Garáž
Parkování

Kontaktovat makléře

Realitní kancelář

mojekoruna.cz

Tyršova 1761/14, Ostrava

Chystáte se prodat nemovitost?
Pomůžeme Vám!

Máte zájem o tento dům?

Tímto, v souladu s nařízením Evropského parlamentu a Rady (EU) 2016/679, v platném znění, prohlašuji, že mi je alespoň 16 let a uděluji tak svůj souhlas se zpracováním zadaných údajů (jméno, telefon, e-mail, ip adresa) společnosti B3 Technology, s.r.o., IČ: 07330600, se sídlem Novostavby 126/23, 435 11 Lom (správce dat), za účelem předání dotazu z tohoto formuláře Vámi vybranému inzerentovi a zpětného kontaktování mé osoby. Osobní údaje bude správce zpracovávat manuálně i automaticky přímo prostřednictvím svých zaměstnanců. Informace předané tímto formulářem budou uloženy v databázi správce maximálně po dobu 10 let. Odvolání souhlasu s uložením a zpracováním poskytnutých dat lze e-mailem na info@videobydleni.cz. V případě podezření na neoprávněné použití Vámi poskytnutých údajů máte právo předat podnět k šetření Úřadu pro ochranu osobních údajů. Více informací
Chystáte se prodat nemovitost?
Pomůžeme Vám!

Inzerát si prohlédlo 8 lidí

Prodejce

Daniel Ryška

Daniel Ryška

Hlídací pes

Chcete dostávat emailem podobné nabídky prodeje rodinných domů v Raškovicích?

Podobné nemovitosti


Nevyhovuje Vám typ domu? Podívejte se na jiné kategorie domů.


Vybrané články z našeho blogu