Prodej rodinného domu, Torrevieja, Španělsko, 58 m2 (ID: 4131692)

Torrevieja

199 990 € /za nemovitost
Prémioví partneři

Informace k domu

Španělsko,Torrevieja,La Mata 4kk 199 990 Euro

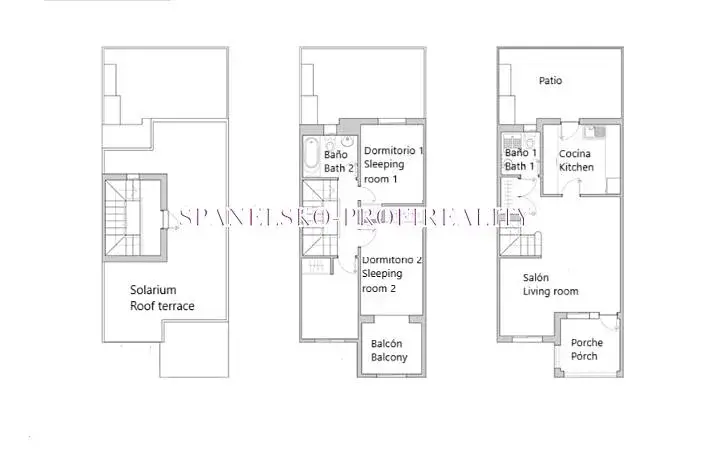
Nabízíme k prodeji zařízený apartmán 4kk, 85m2
se dvěma koupelnami a s velkou
terasou ( 58m2, typu veranda a barbecue ),
který se nachází v obytném komplexu se
společným venkovním bazénem cca 700m od pláže.

vlastnictví: osobní

Složení domu:
- Kuchyn vybavena kuchynskou linkou, lednice,
sporák, mikrovlnná trouba, pračka,
- Obývací pokoj vybaven sedací soupravou,
stůl+židle, klimatizace, tv
- Jedna ložnice vybavena manželskou postelí,
skřín, klimatizace, tv,
- Koupelna se sprchovým koutem, WC,
- Druhá ložnice vybavena manželskou postelí,

- 2 Koupelna s vanou a WC,
- 3 Ložnice vybavena dvěma postelemi,
klimatizace
Terasa k posezení stůl+židle plus k odpočinku lehátka.
Veranda s posezením a barbecue.

Venkovní bazén.

Jsme s Vámi od výběru nemovitosti až do samé koupě apartmánu.
Rádi Vám pomůžeme při výběru.
Zajištujeme veškerý právnický servis.
Naši makléři jsou přímo na místě ve Španělsku, hovoří i česky.

Jsme tu pro Vás pondělí-neděle 8:00-22:00
Volejte, pište.

Parametry domu

Cena
199 990 € /za nemovitost
Aktualizováno
13. 12. 2025
Adresa
Torrevieja
ID
2053
Stavba
Skeletová
Stav objektu
Velmi dobrý
Vybaveno
Ano
Druh objektu
Řadový
Užitná plocha
58 m2
Zastavěná plocha
150 m2
Podlahová plocha
58 m2
Plocha pozemku
100 m2
Plocha zahrady
50 m2
Elektřina
230V
Topení
Lokální elektrické
Komunikace
Betonová
Telekomunikace
Internet, Kabelová televize
Doprava
Silnice, MHD, Autobus
Bezbarierový přístup

Kontaktovat makléře

Máte zájem o tento dům?

Tímto, v souladu s nařízením Evropského parlamentu a Rady (EU) 2016/679, v platném znění, prohlašuji, že mi je alespoň 16 let a uděluji tak svůj souhlas se zpracováním zadaných údajů (jméno, telefon, e-mail, ip adresa) společnosti B3 Technology, s.r.o., IČ: 07330600, se sídlem Novostavby 126/23, 435 11 Lom (správce dat), za účelem předání dotazu z tohoto formuláře Vámi vybranému inzerentovi a zpětného kontaktování mé osoby. Osobní údaje bude správce zpracovávat manuálně i automaticky přímo prostřednictvím svých zaměstnanců. Informace předané tímto formulářem budou uloženy v databázi správce maximálně po dobu 10 let. Odvolání souhlasu s uložením a zpracováním poskytnutých dat lze e-mailem na info@videobydleni.cz. V případě podezření na neoprávněné použití Vámi poskytnutých údajů máte právo předat podnět k šetření Úřadu pro ochranu osobních údajů. Více informací
Chystáte se prodat nemovitost?
Pomůžeme Vám!

Inzerát si prohlédlo 1 lidí

Prodejce

Lenka   Háková (Koleva)

Lenka Háková (Koleva)

Hlídací pes

Chcete dostávat emailem podobné nabídky prodeje rodinných domů?

Podobné nemovitosti


Nevyhovuje Vám typ domu? Podívejte se na jiné kategorie domů.


Vybrané články z našeho blogu