Prodej rodinného domu, Bernartice - Svatkovice, 104 m2

Bernartice, Svatkovice

5 490 000 Kč /za nemovitost HYPOTÉKA od 24 537 Kč /za měsíc
Prémioví partneři v Bernarticích

Výkup a prodej starého nábytku

Pojištění a finance

Informace k domu

Prodej rodinného domu, 104 m², Svatkovice, Bernartice

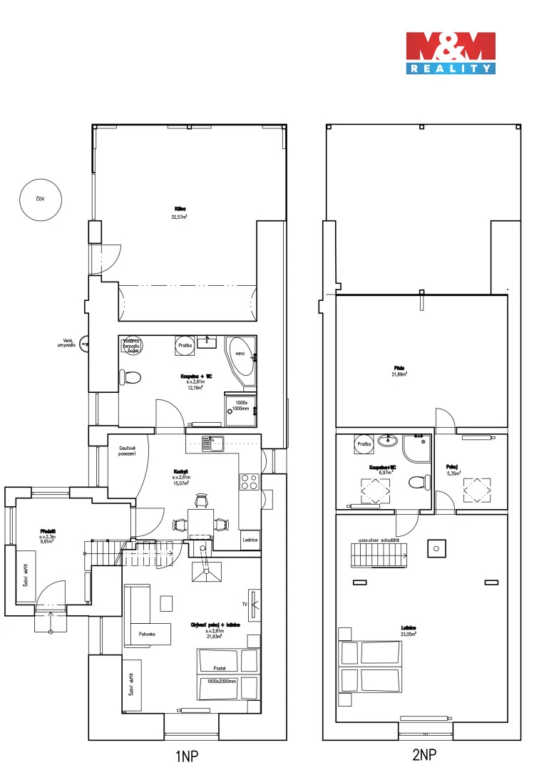
Nabízíme k prodeji zrekonstruovaný patrový rodinný dům v klidné části obce Svatkovice u Bernartic. Tento slunný dům je ideální pro rodiny hledající komfort a klid. Dispozice 2+1 s další malou místností, v každém NP je koupelna s WC, obytná plocha je 104 m². Dům je vytápěný krbovými kamny s výměníkem a rozvodem do radiátorů. K domu náleží okrasná slunná zahrada o rozloze 511 m² s altánkem, ideální pro relaxaci. Voda je zajištěna z vlastní studny, odpad přes domácí ČOV, v obci je naplánovaná výstavba veřejného vodovodu. Energetická náročnost zatepleného domu je třídy B a zaručuje nízké provozní náklady. Možnost rozšíření o další pokoje v obou podlažích, na vyžádání poskytneme 3D vizualizaci s návrhem změny dispozice. Celková plocha pozemku činí 690 m². Nepropásněte tuto jedinečnou příležitost bydlení v klidné obci Svatkovice.

Parametry domu

Cena
5 490 000 Kč /za nemovitost Spočítat hypotéku
Aktualizováno
17. 3. 2026
Adresa
Bernartice, Svatkovice
ID
928500
Stavba
Smíšená
Stav objektu
Velmi dobrý
Vybaveno
Ano
Druh objektu
Samostatný
Lokalita objektu
Klidná část obce
Vlastnictví
Osobní
Užitná plocha
104 m2
Plocha pozemku
690 m2

Kontaktovat makléře

Realitní kancelář

Logo M&M reality

M&M reality

ulice Krakovská 583/9, Praha

Chystáte se prodat nemovitost?
Pomůžeme Vám!

Máte zájem o tento dům?

Tímto, v souladu s nařízením Evropského parlamentu a Rady (EU) 2016/679, v platném znění, prohlašuji, že mi je alespoň 16 let a uděluji tak svůj souhlas se zpracováním zadaných údajů (jméno, telefon, e-mail, ip adresa) společnosti B3 Technology, s.r.o., IČ: 07330600, se sídlem Novostavby 126/23, 435 11 Lom (správce dat), za účelem předání dotazu z tohoto formuláře Vámi vybranému inzerentovi a zpětného kontaktování mé osoby. Osobní údaje bude správce zpracovávat manuálně i automaticky přímo prostřednictvím svých zaměstnanců. Informace předané tímto formulářem budou uloženy v databázi správce maximálně po dobu 10 let. Odvolání souhlasu s uložením a zpracováním poskytnutých dat lze e-mailem na info@videobydleni.cz. V případě podezření na neoprávněné použití Vámi poskytnutých údajů máte právo předat podnět k šetření Úřadu pro ochranu osobních údajů. Více informací
Chystáte se prodat nemovitost?
Pomůžeme Vám!
Theleadway banner

Inzerát si prohlédlo 12 lidí

Prodejce

Petr Török

Petr Török

Hlídací pes

Chcete dostávat emailem podobné nabídky prodeje rodinných domů v Bernarticích (okr. Písek)?

Podobné nemovitosti


Nevyhovuje Vám typ domu? Podívejte se na jiné kategorie domů.


Vybrané články z našeho blogu