Soccer reality

Prodej bytu 3+1, Praha - Prosek, Lovosická, 67 m2 (ID: 4131915)

Lovosická, Praha 9, Prosek

Rezervováno
7 900 000 Kč /za nemovitost HYPOTÉKA od 35 308 Kč /za měsíc

(Včetně provize i právních služeb)

Prémioví partneři v Praze 9

Stěhovací služby

Výkup a prodej starého nábytku

Informace k bytu

Adresa: Lovosická 656/11, Praha 9 Střížkov
Cena: 7 900 000 Kč
Podlaží: 3. NP

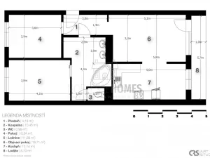
Nabízíme světlý a prakticky řešený byt 3+1 ve vyhledávané lokalitě Prahy 9, jen pár minut chůze od metra C Střížkov. Byt je v původním stavu, takže je ideální pro ty, kteří si chtějí rekonstrukcí vytvořit bydlení přesně podle svých představ a zároveň získat nemovitost s dlouhodobou hodnotou.

Hlavní výhody:

Dispozice 3+1 vhodné pro rodinu, i jako investice

Velký potenciál rekonstrukce možnost moderního řešení a lepšího využití prostoru

K bytu náleží sklepní kóje (úložný prostor).

Centrální vytápění a centrální ohřev teplé vody.

3. patro s výtahem pohodlný přístup a příjemné světlo v bytě.

Klidný dům v upraveném sídlištním prostředí.

Výborná dopravní dostupnost metro, MHD, rychlé spojení do centra.

Kompletní občanská vybavenost v okolí školy, školky, obchody, lékaři, sportoviště, parky.

Byt prodáváme exkluzivně, což zajišťuje transparentní, rychlý a bezpečný průběh prodeje.
Pro více informací a domluvení prohlídky nás neváhejte kontaktovat.

Parametry bytu

Stav
Rezervováno
Cena
7 900 000 Kč /za nemovitost Spočítat hypotéku
Poznámka k ceně
Včetně provize i právních služeb
Aktualizováno
27. 2. 2026
Adresa
Lovosická, Praha 9, Prosek
ID
44
Stavba
Panelová
Stav objektu
Před rekonstrukcí
Patro
3. z 8
Vybaveno
Částečně
Typ objektu
Patrový
Vlastnictví
Osobní
Užitná plocha
67 m2
Podlahová plocha
68 m2
Třída energetické náročnosti
G - Mimořádně nehospodárná
Elektřina
230V
Plyn
Plynovod
Odpad
Veřejná kanalizace
Topení
Ústřední dálkové
Komunikace
Asfaltová
Telekomunikace
Telefon, Internet, Satelit, Kabelová televize, Kabelové rozvody
Doprava
Silnice, MHD, Autobus
Voda
Vodovod
Topné těleso
Kamna
Zdroj topení
Kamna, Ústřední dálkové
Sklep
Lodžie
Výtah
Bezbarierový přístup

Kontaktovat makléře

Máte zájem o tento byt?

Tímto, v souladu s nařízením Evropského parlamentu a Rady (EU) 2016/679, v platném znění, prohlašuji, že mi je alespoň 16 let a uděluji tak svůj souhlas se zpracováním zadaných údajů (jméno, telefon, e-mail, ip adresa) společnosti B3 Technology, s.r.o., IČ: 07330600, se sídlem Novostavby 126/23, 435 11 Lom (správce dat), za účelem předání dotazu z tohoto formuláře Vámi vybranému inzerentovi a zpětného kontaktování mé osoby. Osobní údaje bude správce zpracovávat manuálně i automaticky přímo prostřednictvím svých zaměstnanců. Informace předané tímto formulářem budou uloženy v databázi správce maximálně po dobu 10 let. Odvolání souhlasu s uložením a zpracováním poskytnutých dat lze e-mailem na info@videobydleni.cz. V případě podezření na neoprávněné použití Vámi poskytnutých údajů máte právo předat podnět k šetření Úřadu pro ochranu osobních údajů. Více informací
Chystáte se prodat nemovitost?
Pomůžeme Vám!

Inzerát si prohlédlo 70 lidí

Prodejce

Yuliia Walterova

Yuliia Walterova

Hlídací pes

Chcete dostávat emailem podobné nabídky prodeje bytů 3+1 v Praze 9?

Podobné nemovitosti


Nevyhovuje Vám typ bytu? Podívejte se na jiné kategorie bytů.


Vybrané články z našeho blogu