Pronájem skladu, Ústí nad Labem, Žižkova, 782 m2

Žižkova, Ústí nad Labem-centrum

66 470 Kč /za měsíc Získejte výhodnou HYPOTÉKU
Prémioví partneři v Ústí nad Labem

Okna a dveře

Rekonstrukce

Zámečnické práce

Informace k nemovitosti

Realitní kancelář 3P Bydlení vám ve výhradním zastoupení majitele nabízí k dlouhodobému pronájmu skladové, obchodní a kancelářské prostory na velmi frekventované komunikaci Žižkova 703, Ústí nad Labem s blízkým napojením na dálnici D8 a v širším centru Ústí nad Labem.

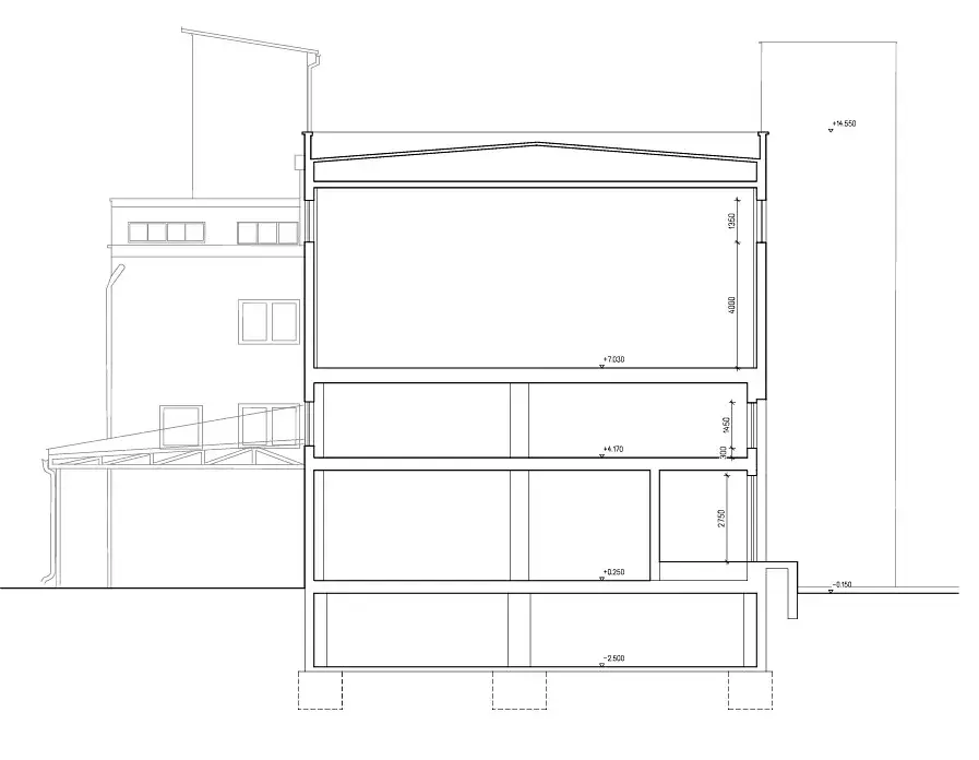
Předmětné prostory nabízí plochu až 782 m2 s výškou stropu 6m. Prostory jsou obsluhovány nákladním výtahem s nosností 2 tuny a samostatným schodištěm. K dispozici vlastní i společné WC. Možné pronajmout i kancelářské prostory.

V areálu jsou aktuálně k dispozici skladové prostory od 45Kč/m2, kancelářské od 90Kč/m2 a obchodní prostory 100 Kč/m2. K dispozici je i reklamní plocha.

Vyhrazené parkování uvnitř areálu.

Uvedené výměry jsou orientační. Veškeré zveřejněné údaje obsažené v tomto inzerátu mají pouze informativní charakter a nejsou nabídkou ve smyslu § 1731 nebo § 1732 občanského zákoníku, ani se nejedná o veřejný příslib dle § 1733 občanského zákoníku.

Parametry nemovitosti

Cena
66 470 Kč /za měsíc
Aktualizováno
14. 12. 2025
Adresa
Žižkova, Ústí nad Labem-centrum
ID
1202512149991
Stavba
Cihlová
Stav objektu
Velmi dobrý
Patro
2. z 2
Vybaveno
Ne
Lokalita objektu
Centrum obce
Užitná plocha
782 m2
Zastavěná plocha
2653 m2
Podlahová plocha
4000 m2
Třída energetické náročnosti
G - Mimořádně nehospodárná
Elektřina
230V, 400V
Odpad
Veřejná kanalizace
Komunikace
Asfaltová
Doprava
Dálnice, Silnice, Autobus
Voda
Vodovod
Parkování

Kontaktovat makléře

Máte zájem o tuto nemovistost?

Tímto, v souladu s nařízením Evropského parlamentu a Rady (EU) 2016/679, v platném znění, prohlašuji, že mi je alespoň 16 let a uděluji tak svůj souhlas se zpracováním zadaných údajů (jméno, telefon, e-mail, ip adresa) společnosti B3 Technology, s.r.o., IČ: 07330600, se sídlem Novostavby 126/23, 435 11 Lom (správce dat), za účelem předání dotazu z tohoto formuláře Vámi vybranému inzerentovi a zpětného kontaktování mé osoby. Osobní údaje bude správce zpracovávat manuálně i automaticky přímo prostřednictvím svých zaměstnanců. Informace předané tímto formulářem budou uloženy v databázi správce maximálně po dobu 10 let. Odvolání souhlasu s uložením a zpracováním poskytnutých dat lze e-mailem na info@videobydleni.cz. V případě podezření na neoprávněné použití Vámi poskytnutých údajů máte právo předat podnět k šetření Úřadu pro ochranu osobních údajů. Více informací
Chystáte se prodat nemovitost?
Pomůžeme Vám!

Inzerát si prohlédlo 0 lidí

Prodejce

Radek Vavřina

Radek Vavřina

Hlídací pes

Chcete dostávat emailem podobné nabídky pronájmu skladů v Ústí nad Labem?

Podobné nemovitosti


Nevyhovuje Vám typ nemovitosti? Podívejte se na jiné kategorie komerčních.


Vybrané články z našeho blogu