Prodej pozemku pro bydlení, Znojmo, Koželužská, 467 m2

Koželužská, Znojmo

2 400 000 Kč /za nemovitost HYPOTÉKA od 10 727 Kč /za měsíc

(- včetně právního servisu, provize realitní kanceláři i DPH)

Prémioví partneři v Znojmu

Informace k pozemku

K prodeji nabízíme exkluzivní stavební pozemek o výměře 467m2, s úžasným výhledem na řeku Dyji, na ul. Koželužská ve Znojmě.
U pozemku jsou veškeré inženýrské sítě, resp. elektřina přímo na pozemku, dále vodovod s kanalizací vede bezprostředně kolem pozemku.

Příjezd až na pozemek je po asflatové komunikaci, a je zde možné vytvořit pohodlný nájezd do garáže až pro 2 vozy.
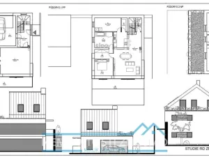
V rámci studie rodinného domu pro daný pozemek od ing. arch Evy Hyblerové (Ateliér v botanické zahradě) je navrženo:
- 2+kk v 1.PP s přímým vstupem do zahrady
- 1+kk v 1.NP (například pracovna, dětský pokoj, nebo pokoj pro hosty) a parkování 2 osobních automobilů (sjezd z ulice Koželužská)
- obytné podkroví v 2.NP
- vstup do zahrady přímo z bočního schodiště z ulice Koželužská

V rámci územního plánu spadá pozemek do kategorie B/d (plochy bydlení), tzn.:
Hlavní je využití - pro bydlení.
Přípustné je využití - související, podmiňující nebo doplňující hlavní využití (zejména využití pro veřejnou vybavenost a sport, zařízení technické a dopravní infrastruktury), které slouží obyvatelům v takto vymezené ploše.
Podmíněně přípustné - je využití, které je slučitelné s hlavním využitím za podmínky, že nesnižuje zejména svým objemem a provozem kvalitu prostředí a pohodu bydlení ve vymezené ploše, a jeho plocha je menší než plocha hlavního využití a přípustného využití dohromady (komerční vybavenost, nerušící výroba drobná a
řemeslná, služby)

Zastoupení zeleně v plochách B/d je 40 %, tzn. že je možné zde zastavit 280m2 pozemku.

Dále přikládáme i předběžnou vizualizaci dané stavby, pro lepší představu usazení na pozemku.
Pro bližší informace či termíny prohlídek, kontaktujte pana Ing. Miklíka, volat můžete kdykoliv, včetně víkendů a svátků.

Parametry pozemku

Cena
2 400 000 Kč /za nemovitost Spočítat hypotéku
Poznámka k ceně
- včetně právního servisu, provize realitní kanceláři i DPH
Aktualizováno
15. 12. 2025
Adresa
Koželužská, Znojmo
ID
337
Plocha pozemku
467 m2
Elektřina
230V, 400V
Odpad
Veřejná kanalizace
Komunikace
Asfaltová
Doprava
MHD
Voda
Vodovod
Bezbarierový přístup

Kontaktovat makléře

Máte zájem o tento pozemek?

Tímto, v souladu s nařízením Evropského parlamentu a Rady (EU) 2016/679, v platném znění, prohlašuji, že mi je alespoň 16 let a uděluji tak svůj souhlas se zpracováním zadaných údajů (jméno, telefon, e-mail, ip adresa) společnosti B3 Technology, s.r.o., IČ: 07330600, se sídlem Novostavby 126/23, 435 11 Lom (správce dat), za účelem předání dotazu z tohoto formuláře Vámi vybranému inzerentovi a zpětného kontaktování mé osoby. Osobní údaje bude správce zpracovávat manuálně i automaticky přímo prostřednictvím svých zaměstnanců. Informace předané tímto formulářem budou uloženy v databázi správce maximálně po dobu 10 let. Odvolání souhlasu s uložením a zpracováním poskytnutých dat lze e-mailem na info@videobydleni.cz. V případě podezření na neoprávněné použití Vámi poskytnutých údajů máte právo předat podnět k šetření Úřadu pro ochranu osobních údajů. Více informací
Chystáte se prodat nemovitost?
Pomůžeme Vám!

Inzerát si prohlédlo 0 lidí

Prodejce

Ing. Mgr. Gabriel  Miklík, MBA

Ing. Mgr. Gabriel Miklík, MBA

Hlídací pes

Chcete dostávat emailem podobné nabídky prodeje pozemků pro bydlení v Znojmu?

Podobné nemovitosti


Nevyhovuje Vám typ pozemku? Podívejte se na jiné kategorie pozemků.


Vybrané články z našeho blogu