Prodej bytu 2+kk, Praha - Nusle, Nuselská, 52 m2 (ID: 4133529)

Nuselská, Praha, Nusle

9 290 000 Kč /za nemovitost HYPOTÉKA od 41 521 Kč /za měsíc

(včetně poplatků, včetně provize, včetně právního servisu)

Prémioví partneři v Praze 4

Stěhovací služby

Výkup a prodej starého nábytku

Informace k bytu

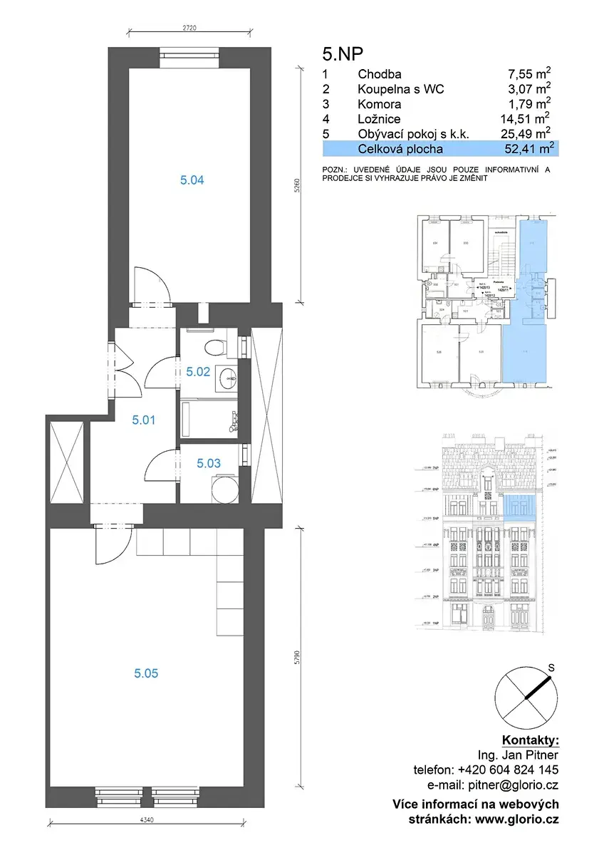
Nabízíme Vám ke koupi slunný byt v osobním vlastnictví v 5.NP s výtahem. Byt se nachází v krásném historickém domě v žádané lokalitě Praha – Nusle nedaleko parku Jezerka. Dispozičně je řešen jako 2+kk o celkové ploše 52,41m2 – obývací pokoj, ložnice, chodba, koupelna s WC a praktická komora přímo v bytě.

Byt prošel v roce 2019 kompletní nákladnou rekonstrukcí – podlahy, stěny, podhledy, elektroinstalace, interiérové dveře, koupelna, bojler, přímotopy a kuchyňská linka kompletně vybavena spotřebiči. V letošním roce byla vyměněna plovoucí podlaha za novou vinylovou podlahu a proběhla nová celková výmalba. Byt je tedy ideálně připraven k okamžitému nastěhování nebo pronajmutí. Provoz bytu není nijak nákladný – pro 3 člennou rodinu činila záloha na elektřinu 2.300Kč/měsíc (vč. topení a ohřevu teplé vody), zálohy pro SVJ 5.300Kč/měsíc.

Bytový dům je ve velmi dobrém stavu – zateplení fasády do dvora s plastovými okny, opravená historická fasáda do ulice se zdvojenými dřevěná okna do ulice Nuselská, plastová okna do vnitrobloku. Nespornou výhodou bytu je pronajaté parkovací místo přímo u výtahu ve vnitrobloku domu za 2.800Kč/měsíc. Tento pronájem od SVJ je možné po měsíci zrušit nebo prodloužit dle přání nových majitelů. Další parkování je možné v okolních ulicích na parkovacích zónách.

Jedná se o velmi zajímavou kombinace městského bydlení s kompletní vybaveností a výbornou dostupností do centra (zastávka tramvaje je přímo před domem), klidu (5.NP, ložnice s okem do vnitrobloku a nová zdvojená okna do ulice) a možnosti relaxace (park Jezerka, Havlíčkovy sady, Nuselský park). V okolí je veškerá občanská vybavenost, nedaleko zastávka vlaku Praha – Vršovice. Velkým benefitem do budoucnosti bude stanice metra linky D na náměstí Bratří Synků, které je vzdálené pouze 10 min pěšky nebo 1 stanici tramvají.

Vyřízení hypotéky je samozřejmostí. Vřele doporučuji prohlídku.

Parametry bytu

Cena
9 290 000 Kč /za nemovitost Spočítat hypotéku
Poznámka k ceně
včetně poplatků, včetně provize, včetně právního servisu
Náklady na bydlení
7600
Aktualizováno
15. 12. 2025
Adresa
Nuselská, Praha, Nusle
ID
Nuselská
Stavba
Cihlová
Stav objektu
Velmi dobrý
Patro
5. z 6
Vybaveno
Částečně
Lokalita objektu
Centrum obce
Vlastnictví
Osobní
Užitná plocha
52 m2
Třída energetické náročnosti
G - Mimořádně nehospodárná
Elektřina
400V
Odpad
Veřejná kanalizace
Voda
Vodovod
Topné těleso
Přímotop
Zdroj topení
Přímotop
Zdroj teplé vody
Bojler - elektro
Výtah
Parkování

Kontaktovat makléře

Realitní kancelář

GLORIO

Svojšická 1191, Praha

Chystáte se prodat nemovitost?
Pomůžeme Vám!

Máte zájem o tento byt?

Tímto, v souladu s nařízením Evropského parlamentu a Rady (EU) 2016/679, v platném znění, prohlašuji, že mi je alespoň 16 let a uděluji tak svůj souhlas se zpracováním zadaných údajů (jméno, telefon, e-mail, ip adresa) společnosti B3 Technology, s.r.o., IČ: 07330600, se sídlem Novostavby 126/23, 435 11 Lom (správce dat), za účelem předání dotazu z tohoto formuláře Vámi vybranému inzerentovi a zpětného kontaktování mé osoby. Osobní údaje bude správce zpracovávat manuálně i automaticky přímo prostřednictvím svých zaměstnanců. Informace předané tímto formulářem budou uloženy v databázi správce maximálně po dobu 10 let. Odvolání souhlasu s uložením a zpracováním poskytnutých dat lze e-mailem na info@videobydleni.cz. V případě podezření na neoprávněné použití Vámi poskytnutých údajů máte právo předat podnět k šetření Úřadu pro ochranu osobních údajů. Více informací
Chystáte se prodat nemovitost?
Pomůžeme Vám!

Inzerát si prohlédlo 0 lidí

Prodejce

Ing. Jan Pitner

Ing. Jan Pitner

Hlídací pes

Chcete dostávat emailem podobné nabídky prodeje bytů 2+kk v Praze 4?

Podobné nemovitosti


Nevyhovuje Vám typ bytu? Podívejte se na jiné kategorie bytů.


Vybrané články z našeho blogu