Pronájem bytu 1+kk, Jablonec nad Nisou, Krkonošská, 62 m2 (ID: 4133823)

Krkonošská, Jablonec nad Nisou, Kokonín

17 990 Kč /za měsíc Získejte výhodnou HYPOTÉKU
Prémioví partneři v Jablonci nad Nisou

Rekonstrukce

Úklidové služby

Informace k bytu

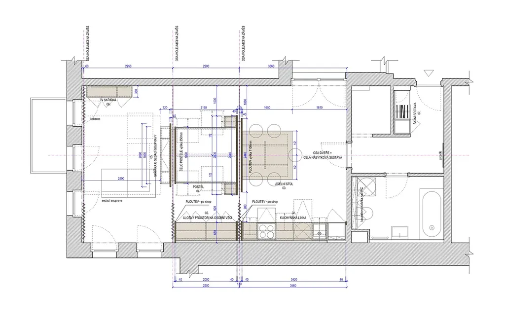
K pronájmu nabízíme velkoryse řešený byt 1+kk o celkové užitné ploše cca 70 m² (byt 61,6 m², balkon 3 m², sklep 4,9 m²). Součástí pronájmu je také parkovací stání před domem. Byt se nachází ve 2. NP právě dokončené novostavby nevšedního rezidenčního projektu na okraji Jizerských hor – Bytového domu Sklárna.

V bytě aktuálně probíhají dokončovací práce interiéru podle návrhu architekta. Prostor působí mimořádně vzdušně a nadčasově. Kombinace kvalitně zvolených materiálů a chytrého dispozičního řešení vytváří prostředí, které je nejen esteticky působivé, ale také praktické pro každodenní život. Byt se bude pronajímat částečně zařízený, což výrazně sníží počáteční náklady na nové bydlení. K dispozici bude kuchyňská linka na míru s vestavěnými spotřebiči, pračka, sušička, vestavěné šatní skříně, umyvadlová skříňka, komoda, jídelní stůl a postel.

Pro zájemce hledající klidné bydlení v přírodě s dobrou dopravní dostupností do centra města je tato nabídka ideální volbou. Budova se nachází v klidné okrajové části okresního města Jablonec nad Nisou, kde v centru naleznete veškerou občanskou vybavenost.

Dispozice bytu:
Byt se skládá z předsíně, koupelny s WC a hlavního obytného prostoru.
Hlavní obytná část je navržena jako jeden otevřený celek, který je chytře zónován pomocí nábytkové příčky a závěsů. Díky tomu nabízí jasně oddělenou obývací část, spací zónu a kuchyň s jídelním stolem, aniž by prostor působil přeplněně či uzavřeně. Velkoformátová okna zajišťují dostatek denního světla a opticky prostor zvětšují.
Postel je integrována do dřevěného rámu s úložnými prvky a je skrytá za nábytkovou příčkou a závěsem, což vytváří pocit soukromí i v otevřeném prostoru. V koupelně je vana. Kuchyňská linka zahrnuje vestavěné spotřebiče: myčku (60 cm), varnou desku, lednici s mrazákem a horkovzdušnou troubu. Orientace bytu je na západní a severní stranu. Všechna okna jsou plastová s trojsklem, podlahovou krytinu tvoří vinyl. Vytápění je řešeno centrální plynovou kotelnou, topení je podlahové.

Byt bude připraven k pronájmu v průběhu prvních týdnů roku 2026. Měsíční nájemné činí 17.990 Kč + zálohy na služby a energie. Provize 15.000 Kč. Jistota (vratná kauce) 30.000 Kč. Majitel upřednostní zájemce bez domácích mazlíčků.

Prohlídky jsou možné po domluvě. O víkendech a večerních hodinách psát pouze mail/sms. Více info u makléře.

Parametry bytu

Cena
17 990 Kč /za měsíc
Aktualizováno
16. 12. 2025
Adresa
Krkonošská, Jablonec nad Nisou, Kokonín
Stavba
Cihlová
Stav objektu
Novostavba
Patro
2.
Vybaveno
Ano
Lokalita objektu
Klidná část obce
Vlastnictví
Osobní
Užitná plocha
62 m2
Podlahová plocha
70 m2
Třída energetické náročnosti
B - Velmi úsporná
Elektřina
230V
Plyn
Plynovod
Odpad
Veřejná kanalizace
Komunikace
Dlážděná, Asfaltová
Telekomunikace
Telefon, Internet, Kabelové rozvody
Doprava
Silnice, Autobus
Voda
Vodovod
Topné těleso
Podlahové vytápění
Balkon
Sklep
Výtah
Bezbarierový přístup
Parkování

Kontaktovat makléře

Realitní kancelář

ČAPEK & MIČÁN

Bělehradská 858/23, Praha

Chystáte se prodat nemovitost?
Pomůžeme Vám!

Máte zájem o tento byt?

Tímto, v souladu s nařízením Evropského parlamentu a Rady (EU) 2016/679, v platném znění, prohlašuji, že mi je alespoň 16 let a uděluji tak svůj souhlas se zpracováním zadaných údajů (jméno, telefon, e-mail, ip adresa) společnosti B3 Technology, s.r.o., IČ: 07330600, se sídlem Novostavby 126/23, 435 11 Lom (správce dat), za účelem předání dotazu z tohoto formuláře Vámi vybranému inzerentovi a zpětného kontaktování mé osoby. Osobní údaje bude správce zpracovávat manuálně i automaticky přímo prostřednictvím svých zaměstnanců. Informace předané tímto formulářem budou uloženy v databázi správce maximálně po dobu 10 let. Odvolání souhlasu s uložením a zpracováním poskytnutých dat lze e-mailem na info@videobydleni.cz. V případě podezření na neoprávněné použití Vámi poskytnutých údajů máte právo předat podnět k šetření Úřadu pro ochranu osobních údajů. Více informací
Chystáte se prodat nemovitost?
Pomůžeme Vám!

Inzerát si prohlédlo 0 lidí

Prodejce

Petr Mičan

Petr Mičan

Hlídací pes

Chcete dostávat emailem podobné nabídky pronájmu bytů 1+kk v Jablonci nad Nisou?

Podobné nemovitosti


Nevyhovuje Vám typ bytu? Podívejte se na jiné kategorie bytů.


Vybrané články z našeho blogu